Planning application

25/01709/CLE

3F1 54 Marchmont Road Marchmont Edinburgh EH9 1HS

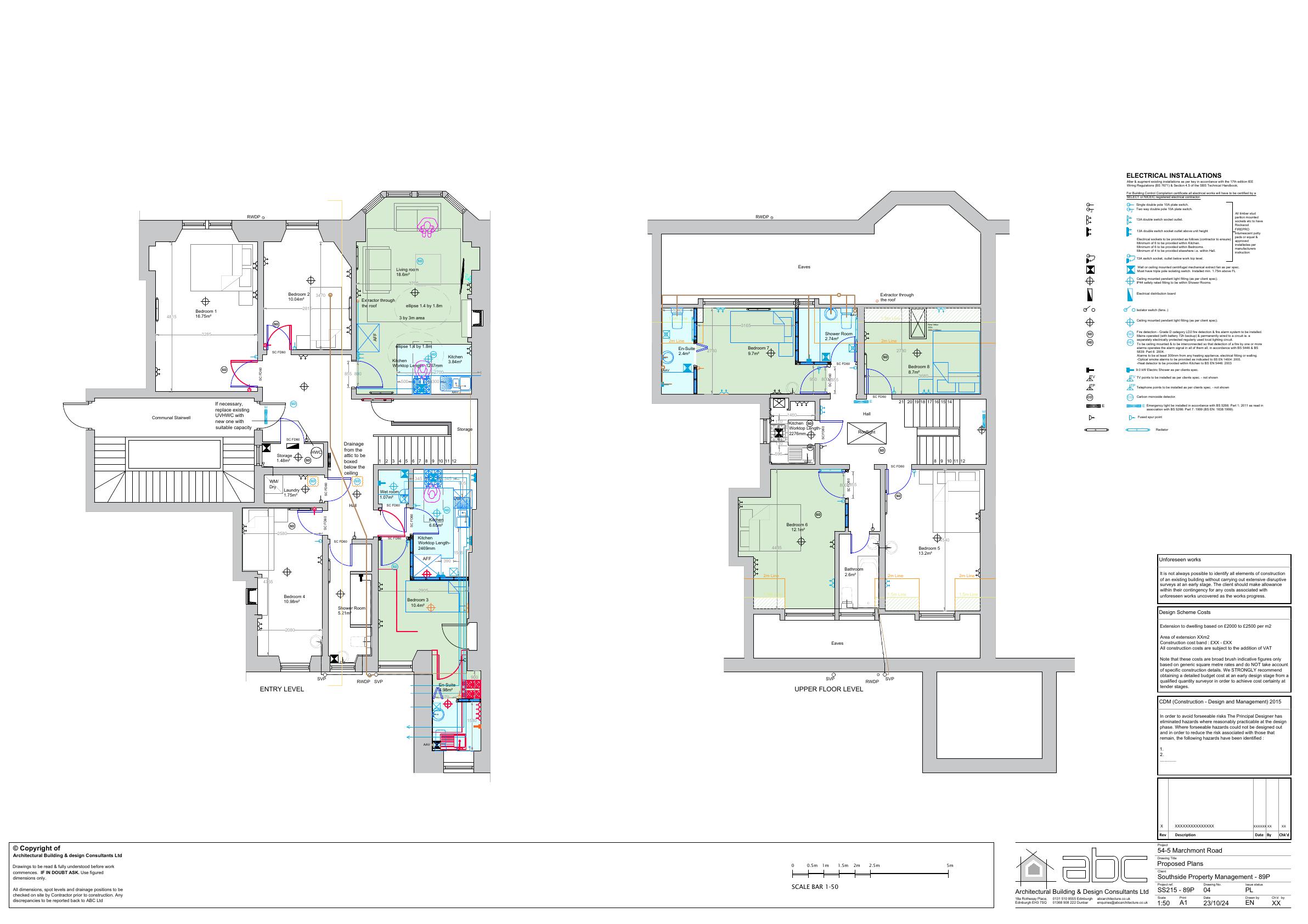
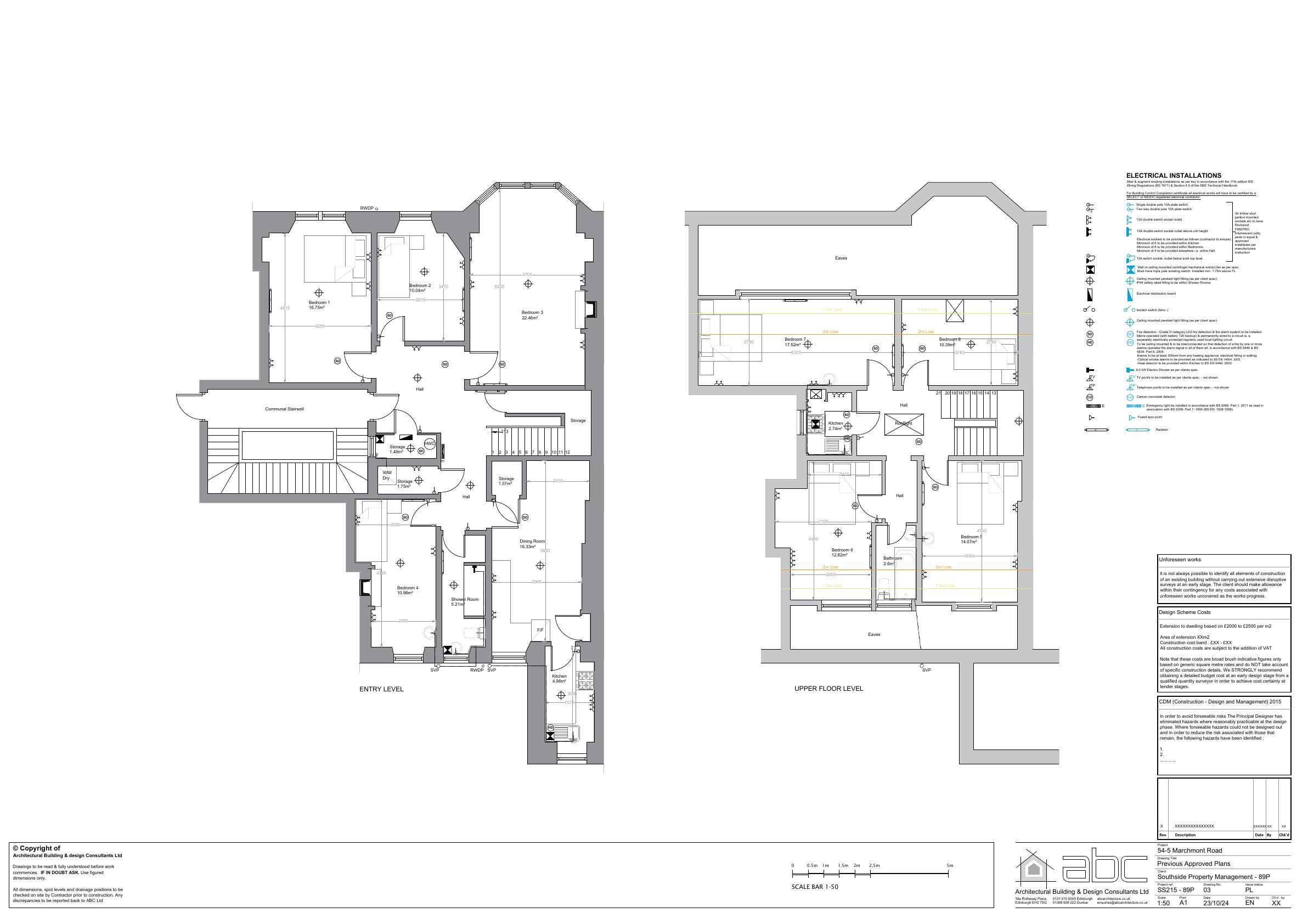
54 Marchmont Rd applies for a lawful development certificate to keep operating as a 9-person HMOno building changes involved. .

Status: Application RefusedCategory: Legal / AdministrativeReceived: 1 April 2025

Core Details

Reference
25/01709/CLE
Address
3F1 54 Marchmont Road Marchmont Edinburgh EH9 1HS
Status
Application Refused
Category
Legal / Administrative
Impact Scale
1/10

Timeline

Received
Validated
Last Scraped
Record Created

Additional Application Data

Latitude
55.9376245
Longitude
-3.1949299

Application Summary

AI Summary

54 Marchmont Rd applies for a lawful development certificate to keep operating as a 9-person HMOno building changes involved. .

Original Description

Property used as HMO for 10 people since 1979. Existing continuous HMO licence for the past 10 years. Required certificate of Lawfulness to keep using the property as HMO for 9 person occupancy.

Supporting Documents (5)