Planning application

25/01712/LBC

131 - 133 George Street Edinburgh EH2 4JS

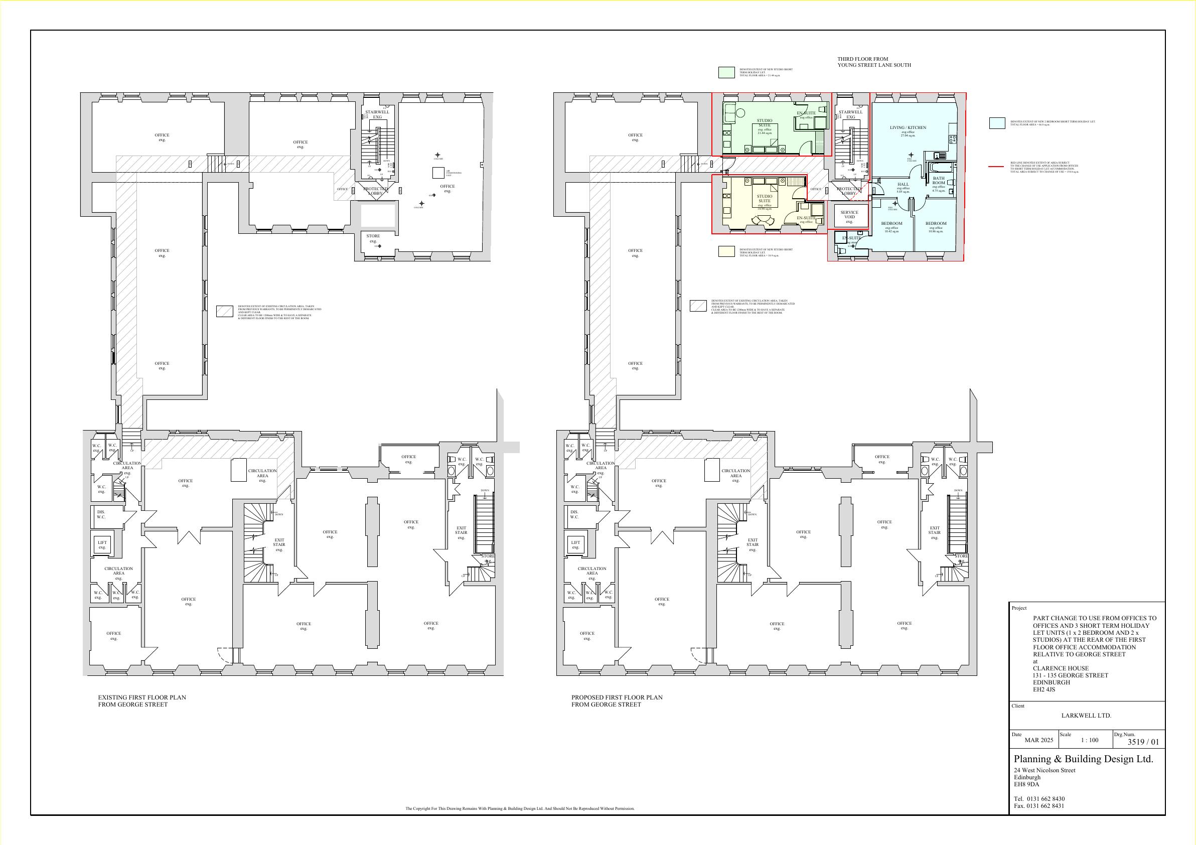
First-floor rear of 131-135 George St retains front offices, reshaped into 1 two-bed and 2 studio holiday lets with existing Young St Lane access; internal works only, faade untouched.

Status: Application GrantedCategory: Change of Use & ConversionsReceived: 1 April 2025

Core Details

Reference
25/01712/LBC
Address
131 - 133 George Street Edinburgh EH2 4JS
Status
Application Granted
Category
Change of Use & Conversions
Impact Scale
3/10

Timeline

Received
Validated
Last Scraped
Record Created

Additional Application Data

Latitude
55.9519164
Longitude
-3.2063391

Application Summary

AI Summary

First-floor rear of 131-135 George St retains front offices, reshaped into 1 two-bed and 2 studio holiday lets with existing Young St Lane access; internal works only, faade untouched.

Original Description

Part change of use from offices to offices and 3 short term holiday let units (1 x 2 bedroom and 2 x studios) at the rear of the first floor office accommodation.

Supporting Documents (4)