Planning application

25/01715/FUL

20 Blacket Place Edinburgh EH9 1RL

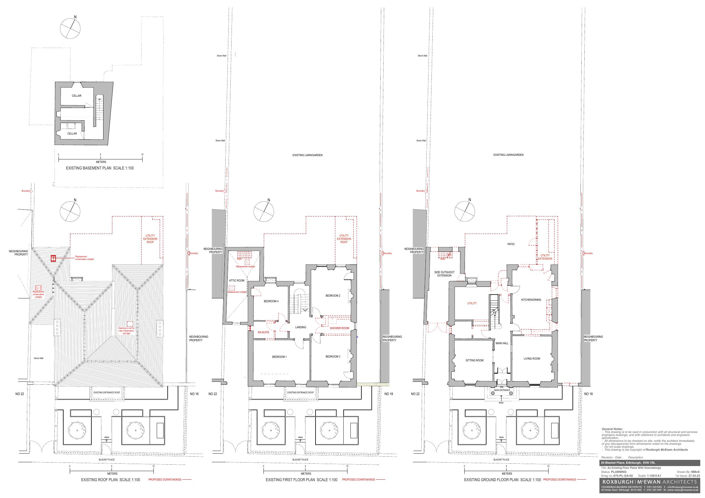
Rear single-storey kitchen/living extension with full-height glazing, detached greenhouse-garden store, compact sauna outbuilding, internal re-layout and new front railings to an existing villa. .

Status: Application GrantedCategory: Extensions & EnlargementsReceived: 1 April 2025

Core Details

Reference
25/01715/FUL
Address
20 Blacket Place Edinburgh EH9 1RL
Status
Application Granted
Category
Extensions & Enlargements
Impact Scale
5/10

Timeline

Received
1 April 2025
Validated
1 April 2025
Last Scraped
2 October 2025
Record Created
7 April 2025

Application Summary

AI Summary

Rear single-storey kitchen/living extension with full-height glazing, detached greenhouse-garden store, compact sauna outbuilding, internal re-layout and new front railings to an existing villa. .

Original Description

Alter, extend and install new green house to domestic dwelling house (as amended).

Related Applications (1)

  • 25/01699/LBCAwaiting Assessment(31 March 2025)

    Two-storey villa to add glazed single-storey rear kitchen/dining wing, small side lobby, detached greenhouse/store in garden, and internal reconfigurations; front faade and streetscape preserved. .

Supporting Documents (5)