Planning application

25/01720/FUL

93 Drum Brae Terrace Barnton Edinburgh EH4 7SG

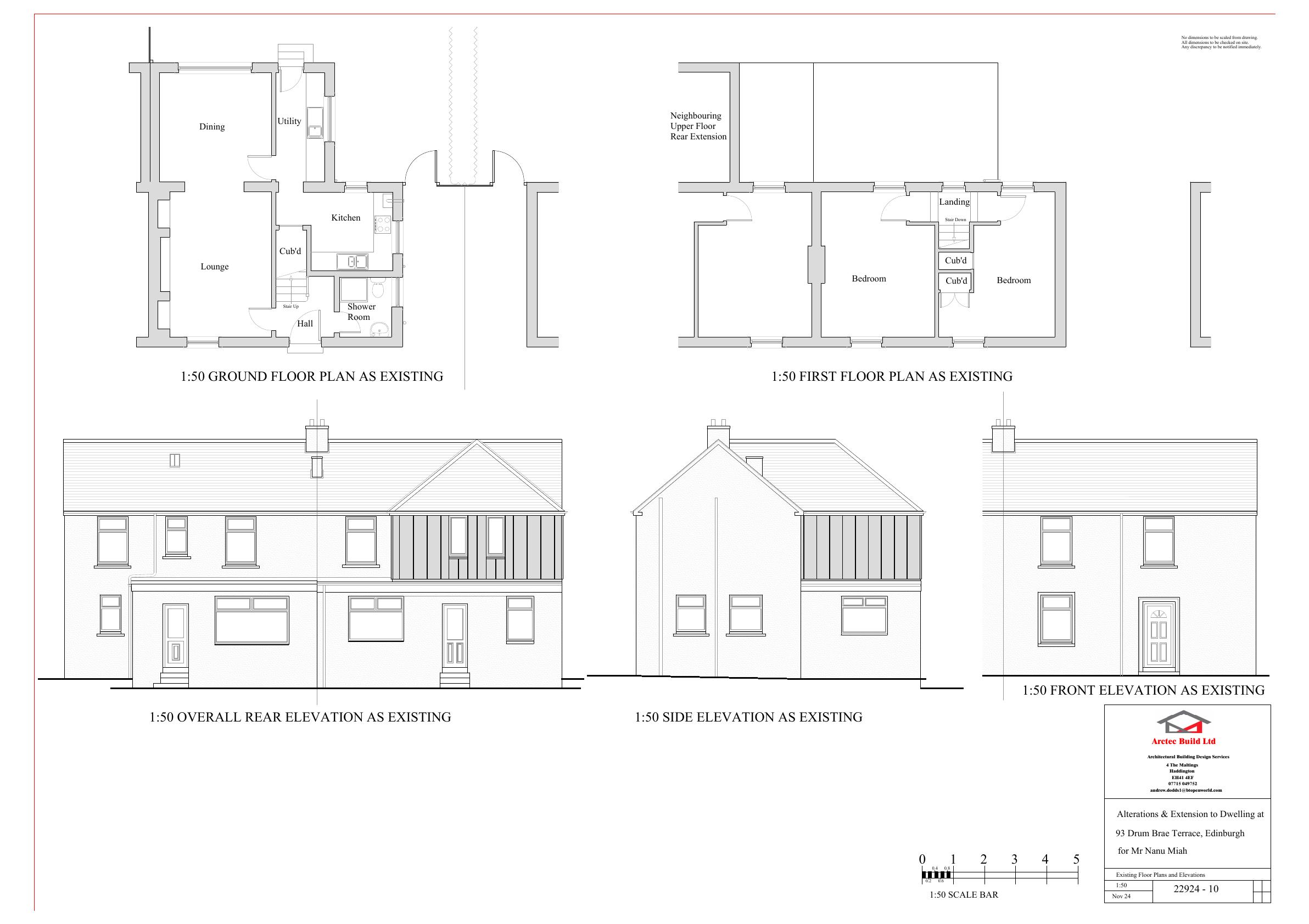
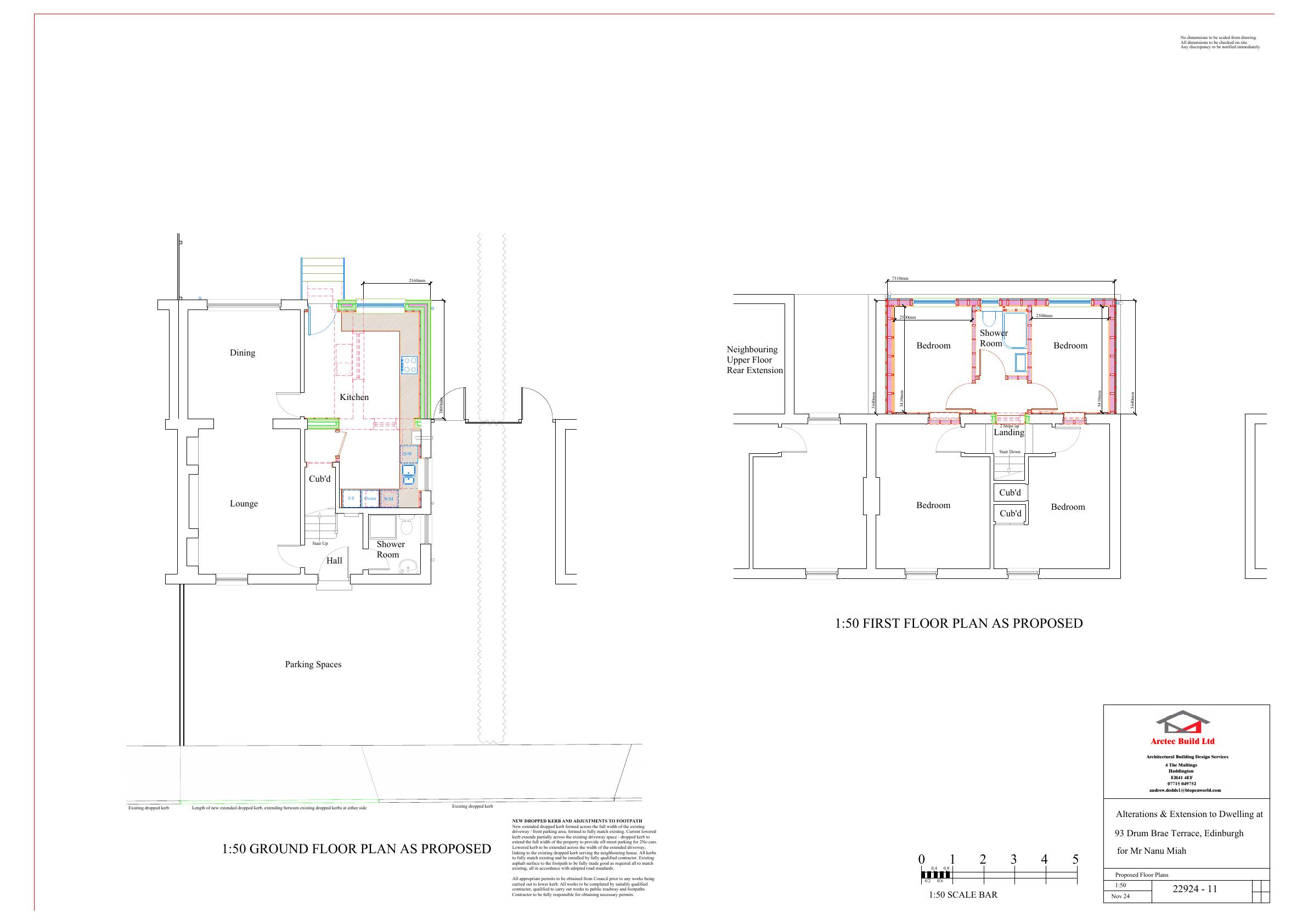
Two-storey rear infill extension flush with gable adds larger kitchen and extra bedroom/bathroom under pitched roof; widened dropped kerb improves access to on-plot parking. .

Status: Application GrantedCategory: Extensions & EnlargementsReceived: 1 April 2025

Core Details

Reference
25/01720/FUL
Address
93 Drum Brae Terrace Barnton Edinburgh EH4 7SG
Status
Application Granted
Category
Extensions & Enlargements
Impact Scale
4/10

Timeline

Received
Validated
Last Scraped
Record Created

Additional Application Data

Latitude
55.9547238
Longitude
-3.2963081

Application Summary

AI Summary

Two-storey rear infill extension flush with gable adds larger kitchen and extra bedroom/bathroom under pitched roof; widened dropped kerb improves access to on-plot parking. .

Original Description

Construction of two storey extension to rear of current house, comprising infill ground floor extension to side of existing flat roof extension, brought in line with gable wall of existing house. Thereafter construct new first floor extension, above the new ground floor extension and existing extension, formed with pitched roof. Form extended dropped kerb to front of house, to provide access to existing parking spaces.

Supporting Documents (5)