Planning application

25/01723/FUL

15 Boswall Road Edinburgh EH5 3RW

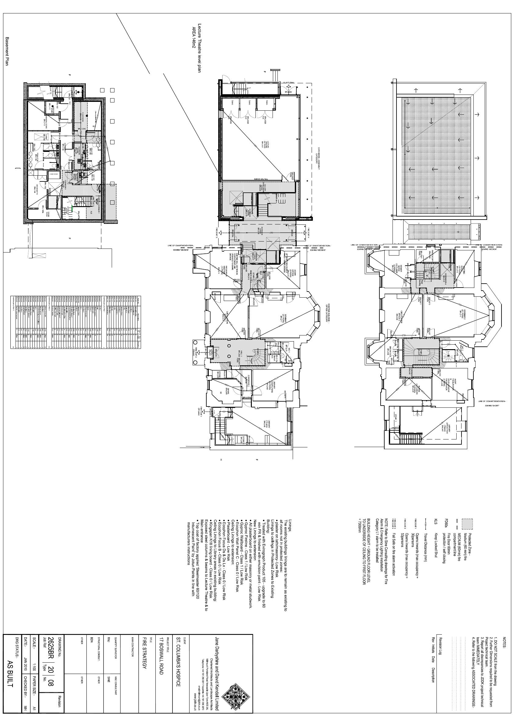
Refurbish hospice-owned villa on Boswall Rd, adding single-storey glazed wing and reconfiguring interiors; half becomes fee-paying therapy, beauty and counselling hub funding core palliative care. .

Status: Application WithdrawnCategory: Change of Use & ConversionsReceived: 1 April 2025

Core Details

Reference
25/01723/FUL
Address
15 Boswall Road Edinburgh EH5 3RW
Status
Application Withdrawn
Category
Change of Use & Conversions
Impact Scale
5/10

Timeline

Received
1 April 2025
Validated
1 April 2025
Last Scraped
2 October 2025
Record Created
7 April 2025

Application Summary

AI Summary

Refurbish hospice-owned villa on Boswall Rd, adding single-storey glazed wing and reconfiguring interiors; half becomes fee-paying therapy, beauty and counselling hub funding core palliative care. .

Original Description

Refurbishment of a hospice owned building, seeking a partial change of use for 50% of the building. This will deliver health and wellbeing services to the wider community for commercial profit. The new enterprise will offer massage, beauty, holistic therapies, counselling services. This new revenue stream sees profits reinvested directly into hospice palliative care services, enabling continued innovation and delivery of free palliative care onsite, across the community, in people's homes.

Related Applications (2)

  • 25/02931/FULApplication Granted(5 June 2025)

    Refurbishes hospice and converts half into a paid wellbeing hub for therapy, beauty and counselling, with profits channelled back into free palliative care. .

  • 25/01314/LBCApplication Granted(13 March 2025)

    Part of the hospice complex may be refurbished into a not-for-profit holistic therapy and counselling suite, gaining spa-style interiors while leaving the structure intact. .

Supporting Documents (5)