Planning application

25/01724/LBC

3C Northumberland Street South East Lane New Town Edinburgh EH3 6LP

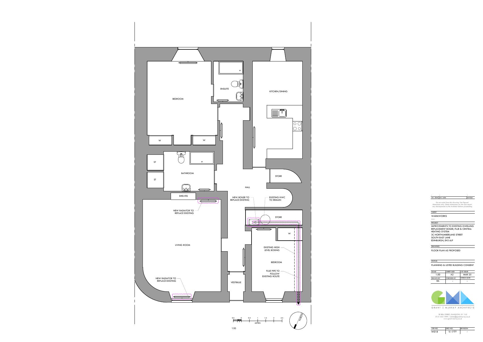
Listed flat to receive new gas boiler, replacement rear flue and two extra radiators; upgrades stay within existing service zones, no structural impact. .

Status: Permission Is Not RequiredCategory: Mechanical Plant, Flues & VentilationReceived: 1 April 2025

Core Details

Reference
25/01724/LBC
Address
3C Northumberland Street South East Lane New Town Edinburgh EH3 6LP
Status
Permission Is Not Required
Category
Mechanical Plant, Flues & Ventilation
Impact Scale
2/10

Timeline

Received
Validated
Last Scraped
Record Created

Additional Application Data

Latitude
55.9567434
Longitude
-3.1967863

Application Summary

AI Summary

Listed flat to receive new gas boiler, replacement rear flue and two extra radiators; upgrades stay within existing service zones, no structural impact. .

Original Description

Installation of a replacement gas boiler, flue and 2 no. radiators to an existing flatted dwelling within a Category A Listed building.

Supporting Documents (4)