Planning application

25/01727/FUL

14 Wester Coates Avenue Edinburgh EH12 5LS

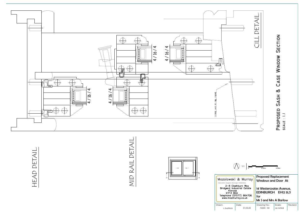
Detached villa at 14 Wester Coates Ave to receive like-for-like hardwood double-glazed sash windows and a black-painted hardwood front door; footprint and massing unchanged. .

Status: Application GrantedCategory: Windows, Doors & GlazingReceived: 1 April 2025

Core Details

Reference
25/01727/FUL
Address
14 Wester Coates Avenue Edinburgh EH12 5LS
Status
Application Granted
Category
Windows, Doors & Glazing
Impact Scale
2/10

Timeline

Received
Validated
Last Scraped
Record Created

Additional Application Data

Latitude
55.9469034
Longitude
-3.2320323

Application Summary

AI Summary

Detached villa at 14 Wester Coates Ave to receive like-for-like hardwood double-glazed sash windows and a black-painted hardwood front door; footprint and massing unchanged. .

Original Description

Installation of replacement hardwood timber sash and case windows and front door.

Supporting Documents (5)