Planning application

25/01728/CLP

4 Henderland Road Murrayfield Edinburgh EH12 6BB

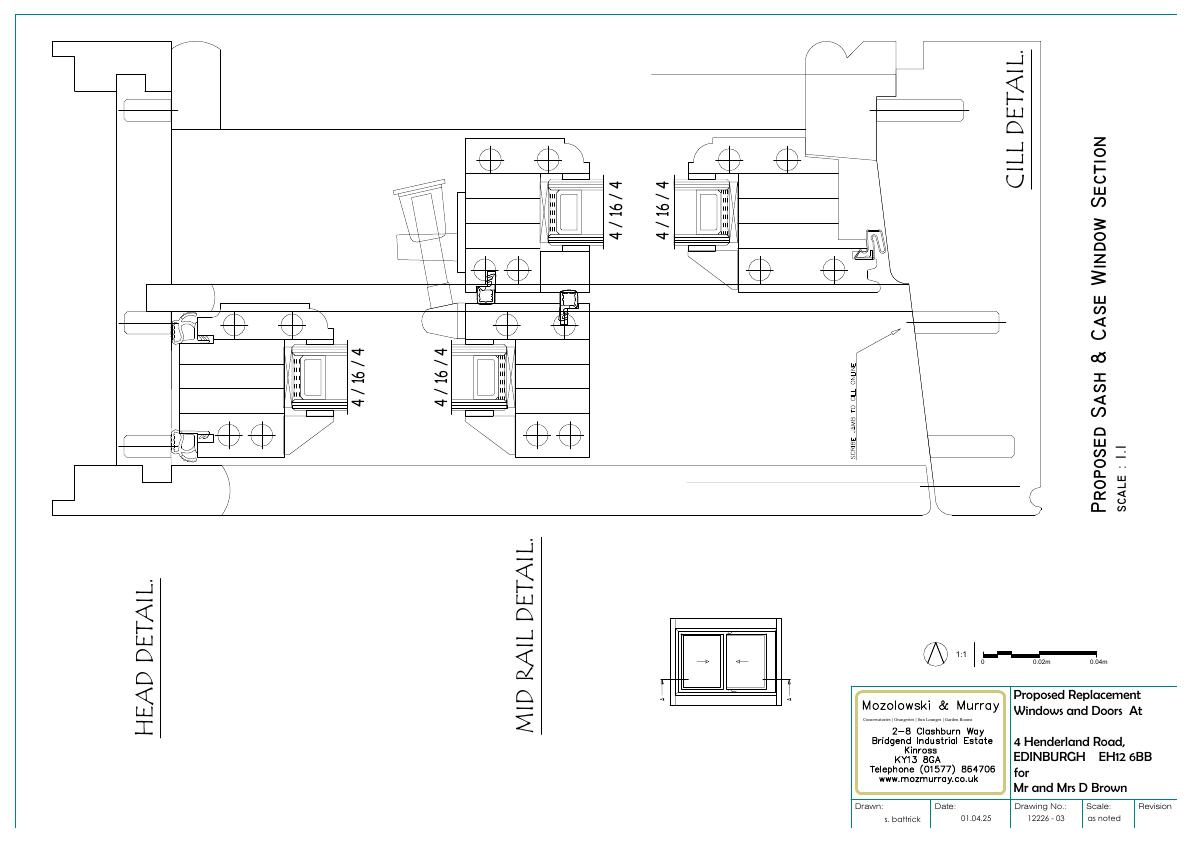
Replace all timber sash windows and two rear double doors with like-for-like hardwood double-glazed units; visual upgrade only, no structural or footprint changes.

Status: Application GrantedCategory: Windows, Doors & GlazingReceived: 1 April 2025

Core Details

Reference
25/01728/CLP
Address
4 Henderland Road Murrayfield Edinburgh EH12 6BB
Status
Application Granted
Category
Windows, Doors & Glazing
Impact Scale
2/10

Timeline

Received
Validated
Last Scraped
Record Created

Additional Application Data

Latitude
55.9486592
Longitude
-3.2361846

Application Summary

AI Summary

Replace all timber sash windows and two rear double doors with like-for-like hardwood double-glazed units; visual upgrade only, no structural or footprint changes.

Original Description

Installation of replacement hardwood timber windows and doors.

Supporting Documents (5)