Planning application

25/01730/LBC

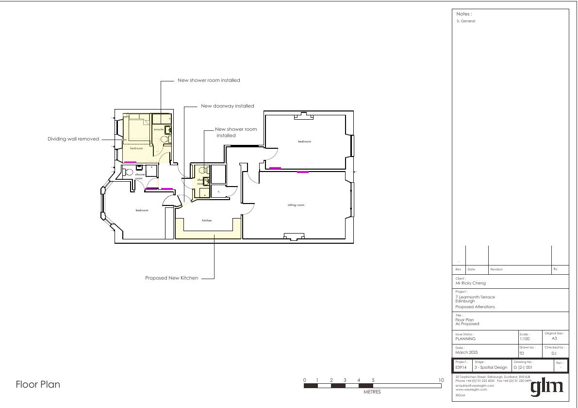
2F 7 Learmonth Terrace Edinburgh EH4 1PQ

Replans the flats interior: kitchen shifts to centre, old kitchen becomes extra bedroom and two new shower rooms; all works fully within existing walls, no external change. .

Status: Application GrantedCategory: Internal Works & AccessibilityReceived: 1 April 2025

Core Details

Reference
25/01730/LBC
Address
2F 7 Learmonth Terrace Edinburgh EH4 1PQ
Status
Application Granted
Category
Internal Works & Accessibility
Impact Scale
2/10

Timeline

Received
Validated
Last Scraped
Record Created

Additional Application Data

Latitude
55.9555834
Longitude
-3.2172574

Application Summary

AI Summary

Replans the flats interior: kitchen shifts to centre, old kitchen becomes extra bedroom and two new shower rooms; all works fully within existing walls, no external change. .

Original Description

Internal alterations comprising of relocating kitchen and creation of new bedroom and shower room.

Supporting Documents (4)