Planning application

25/01737/FUL

149 Craigleith Hill Avenue Craigleith Edinburgh EH4 2NA

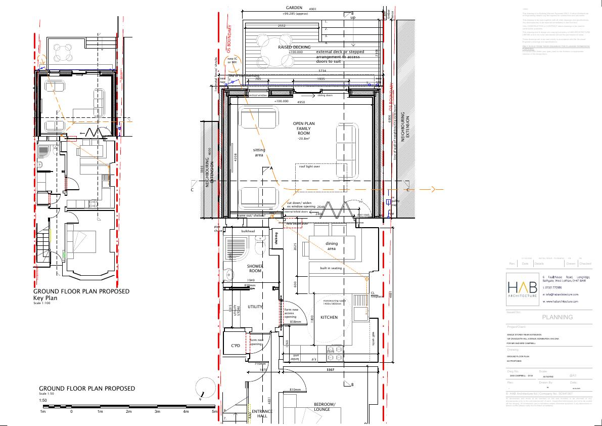
Single-storey rear addition creating open-plan family room with full-width glazing, flat roof light and composite-clad walls, plus raised garden deck; no change to front or height. .

Status: Application GrantedCategory: Extensions & EnlargementsReceived: 2 April 2025

Core Details

Reference
25/01737/FUL
Address
149 Craigleith Hill Avenue Craigleith Edinburgh EH4 2NA
Status
Application Granted
Category
Extensions & Enlargements
Impact Scale
3/10

Timeline

Received
Validated
Last Scraped
Record Created

Additional Application Data

Latitude
55.960432
Longitude
-3.2419936

Application Summary

AI Summary

Single-storey rear addition creating open-plan family room with full-width glazing, flat roof light and composite-clad walls, plus raised garden deck; no change to front or height. .

Original Description

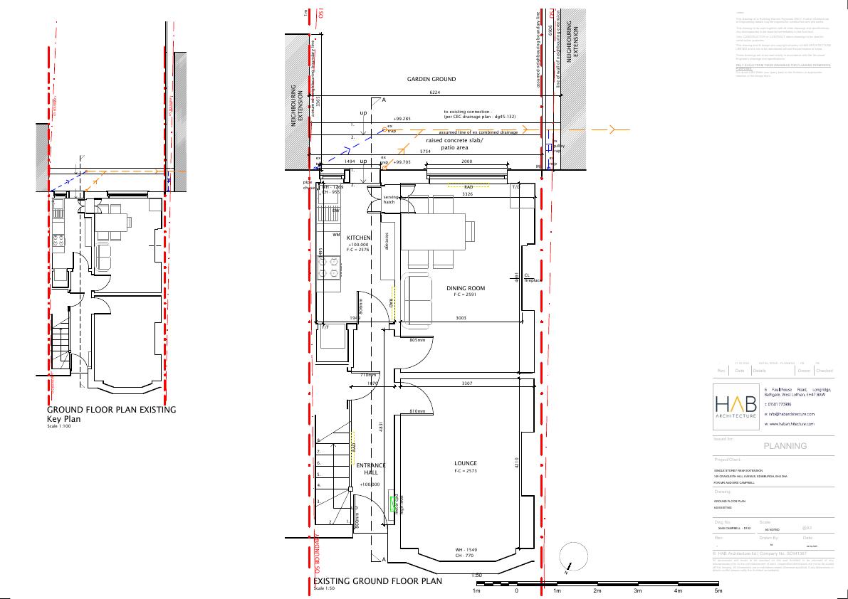
Erection of single storey rear extension with associated raised decking and internal alterations.

Supporting Documents (5)