Planning application

25/01751/FUL

17 Fillyside Avenue Craigentinny Edinburgh EH7 6QU

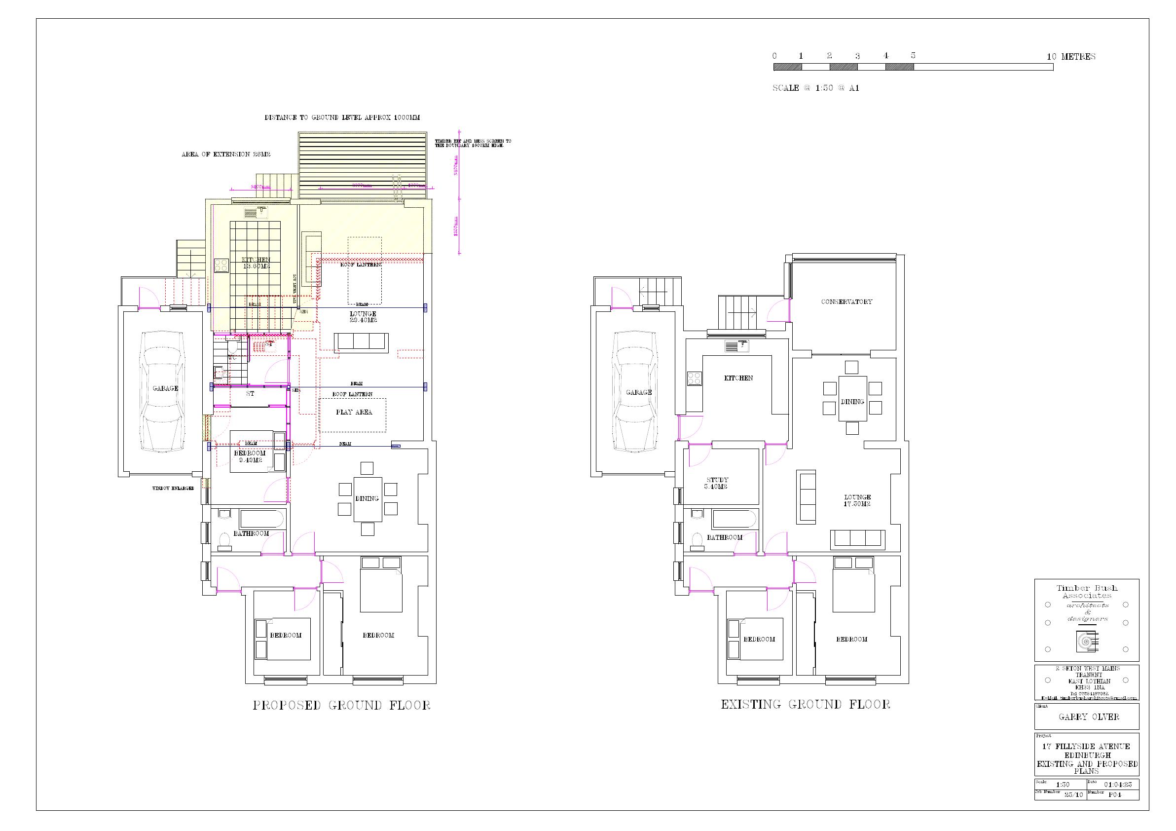
Single-storey rear extension replacing conservatory, expanding kitchen/living with full-width glazing, flat rooflights, timber cladding, plus raised deck and steps to garden. .

Status: Application GrantedCategory: Extensions & EnlargementsReceived: 2 April 2025

Core Details

Reference
25/01751/FUL
Address
17 Fillyside Avenue Craigentinny Edinburgh EH7 6QU
Status
Application Granted
Category
Extensions & Enlargements
Impact Scale
3/10

Timeline

Received
Validated
Last Scraped
Record Created

Additional Application Data

Latitude
55.9623232
Longitude
-3.1333769

Application Summary

AI Summary

Single-storey rear extension replacing conservatory, expanding kitchen/living with full-width glazing, flat rooflights, timber cladding, plus raised deck and steps to garden. .

Original Description

Take down existing conservatory and extend the living area and kitchen. Decking and access to the garden from the living area.

Supporting Documents (5)