Planning application

25/01756/FUL

Old Eastway Tap 216 - 218 Easter Road Leith Edinburgh EH7 5QH

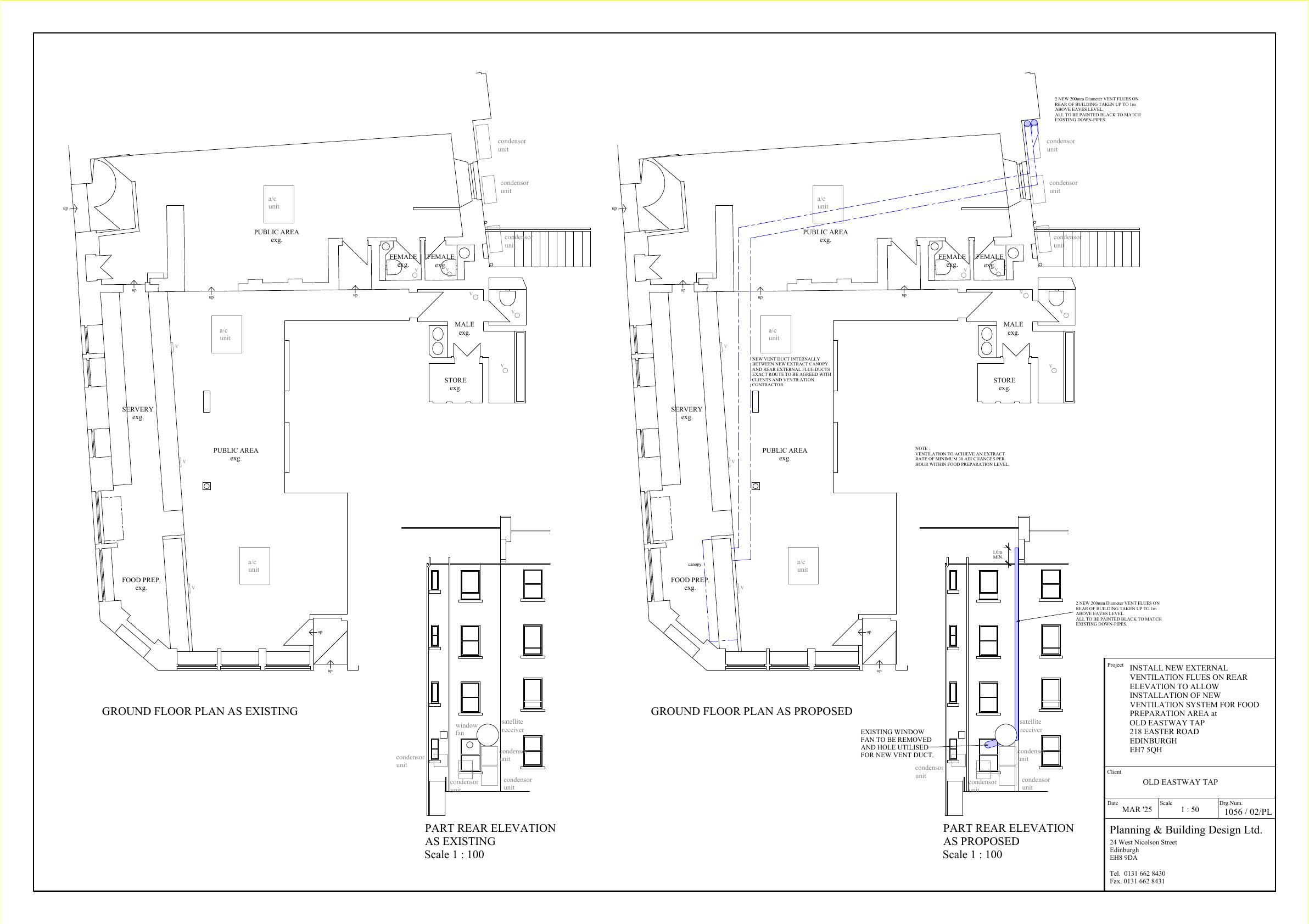
Rear of Old Eastway Tap to gain slim vertical extraction flue for kitchen, venting above eaves; fan stays inside, no other building works, negligible street-side impact.

Status: Application GrantedCategory: Mechanical Plant, Flues & VentilationReceived: 2 April 2025

Core Details

Reference
25/01756/FUL
Address
Old Eastway Tap 216 - 218 Easter Road Leith Edinburgh EH7 5QH
Status
Application Granted
Category
Mechanical Plant, Flues & Ventilation
Impact Scale
2/10

Timeline

Received
Validated
Last Scraped
Record Created

Additional Application Data

Latitude
55.9622881
Longitude
-3.1707646

Application Summary

AI Summary

Rear of Old Eastway Tap to gain slim vertical extraction flue for kitchen, venting above eaves; fan stays inside, no other building works, negligible street-side impact.

Original Description

Install new external ventilation flues on rear elevation to allow installation of new ventilation system for food preparation area, fan to be located within the existing property.

Supporting Documents (3)