Planning application

25/01760/FUL

3F2 22 Gillespie Crescent Edinburgh EH10 4HU

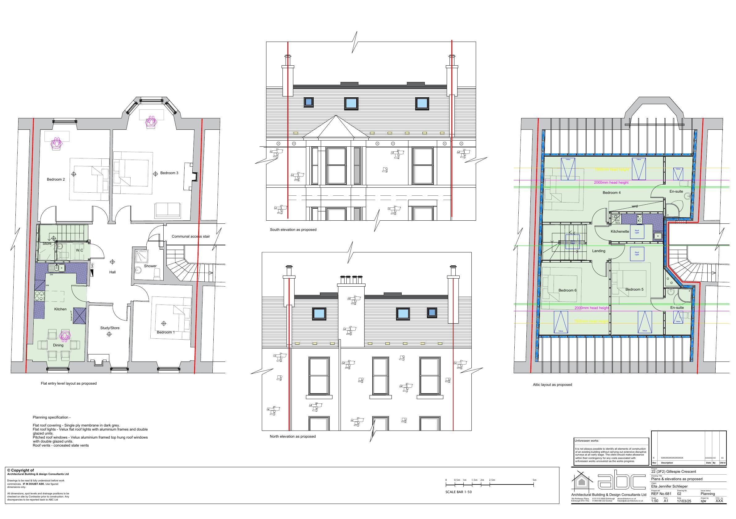
Top-floor flat on Gillespie Crescent to be reconfigured into a six-bed HMO; attic fitted with rooflights, layout reshuffled for extra bedrooms and shared spaces, external change limited to new roof openings. .

Status: Application RefusedCategory: Change of Use & ConversionsReceived: 2 April 2025

Core Details

Reference
25/01760/FUL
Address
3F2 22 Gillespie Crescent Edinburgh EH10 4HU
Status
Application Refused
Category
Change of Use & Conversions
Impact Scale
4/10

Timeline

Received
2 April 2025
Validated
9 April 2025
Last Scraped
2 October 2025
Record Created
15 April 2025

Application Summary

AI Summary

Top-floor flat on Gillespie Crescent to be reconfigured into a six-bed HMO; attic fitted with rooflights, layout reshuffled for extra bedrooms and shared spaces, external change limited to new roof openings. .

Original Description

Alterations and conversion of attic space, along with change of use to form HMO, more than 5 persons.

Related Applications (1)

  • 25/04433/FULApplication Withdrawn(28 August 2025)

    Attic refit forms new accommodation, inserting several Velux rooflights and flush vents into pitched and flat roof surfaces while retaining roof form. .

Supporting Documents (5)