Planning application

25/01761/FUL

2 East Telferton Craigentinny Edinburgh EH7 6XD

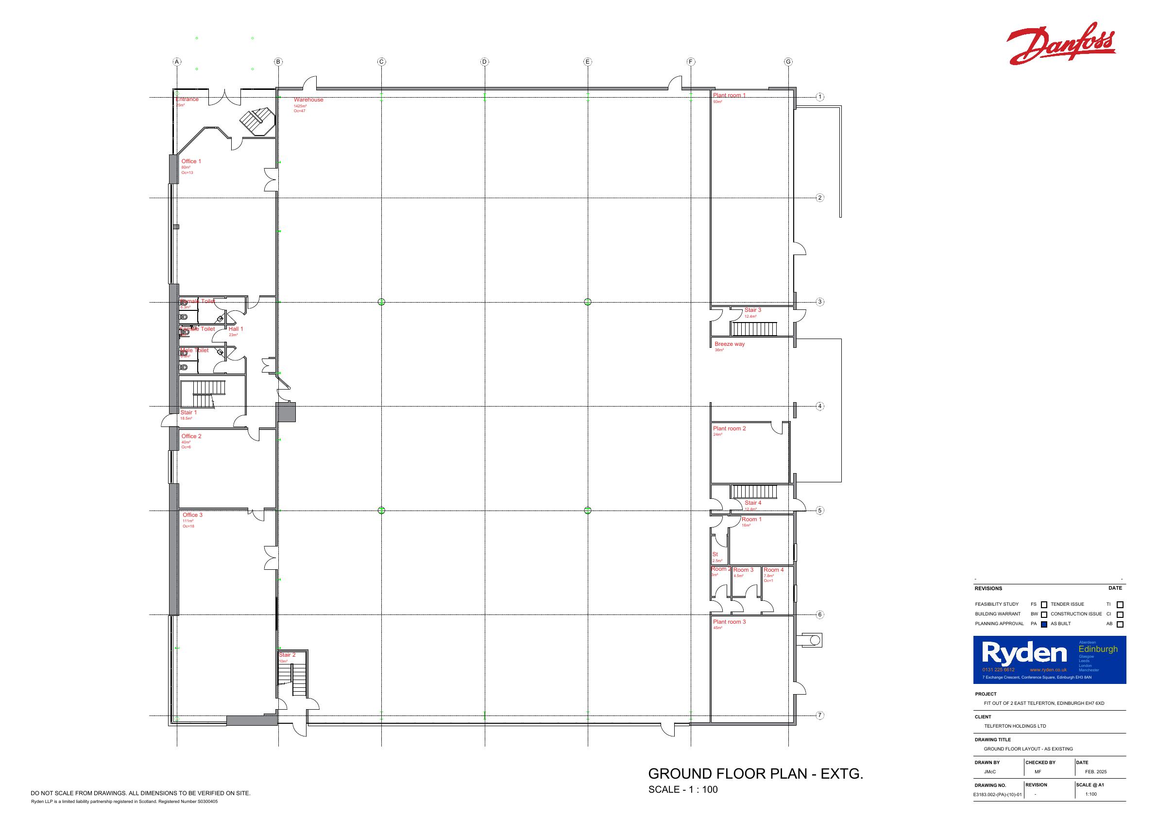
Install two glass-fronted entrance pods on south and east faades of Danfoss office, altering access only; building size, height and landscaping stay as is. .

Status: Permitted DevelopmentCategory: Windows, Doors & GlazingReceived: 2 April 2025

Core Details

Reference
25/01761/FUL
Address
2 East Telferton Craigentinny Edinburgh EH7 6XD
Status
Permitted Development
Category
Windows, Doors & Glazing
Impact Scale
2/10

Timeline

Received
2 April 2025
Validated
2 April 2025
Last Scraped
2 October 2025
Record Created
8 April 2025

Application Summary

AI Summary

Install two glass-fronted entrance pods on south and east faades of Danfoss office, altering access only; building size, height and landscaping stay as is. .

Original Description

New entrance to office.

Related Applications (1)

  • 25/05560/ADVApplication Granted(20 October 2025)

    Plans add halo-lit Danfoss logo signs to north and east faades of the East Telferton industrial unit, replacing/relocating existing branding. .

Supporting Documents (5)