Planning application

25/01769/FUL

36 Strachan Road Blackhall Edinburgh EH4 3RF

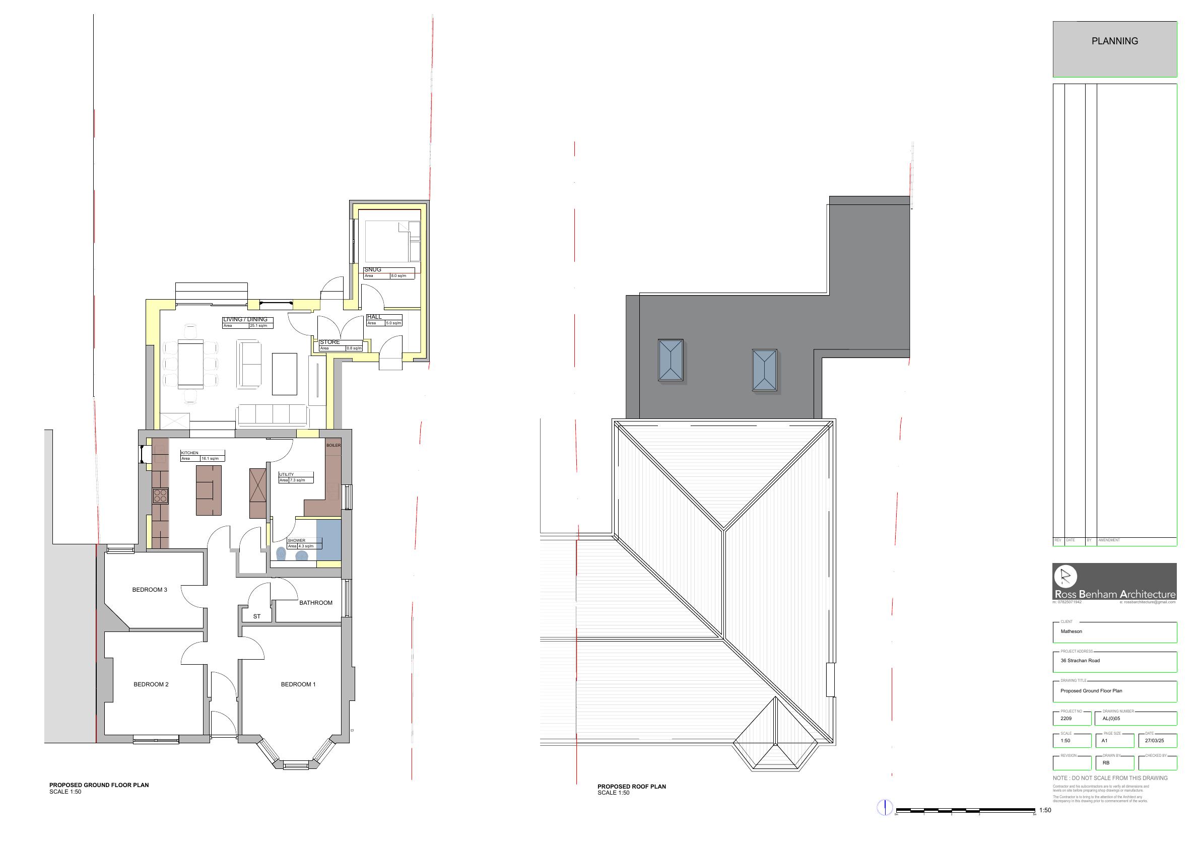
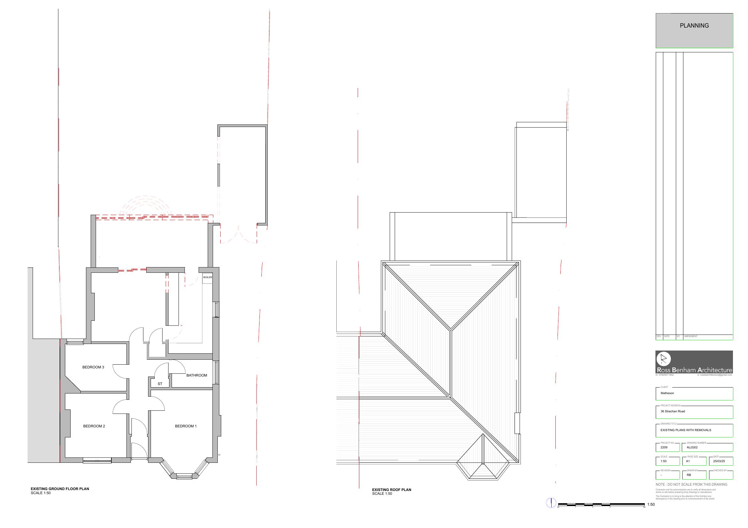
L-shaped single-storey rear extension with rooflights forms open-plan kitchen-living area; detached garage converted to utility/shower; no extra storeys, modest footprint increase. .

Status: Application GrantedCategory: Extensions & EnlargementsReceived: 3 April 2025

Core Details

Reference
25/01769/FUL
Address
36 Strachan Road Blackhall Edinburgh EH4 3RF
Status
Application Granted
Category
Extensions & Enlargements
Impact Scale
3/10

Timeline

Received
Validated
Last Scraped
Record Created

Additional Application Data

Latitude
55.9584803
Longitude
-3.2598479

Application Summary

AI Summary

L-shaped single-storey rear extension with rooflights forms open-plan kitchen-living area; detached garage converted to utility/shower; no extra storeys, modest footprint increase. .

Original Description

Proposed rear extension and garage conversion with internal alterations.

Supporting Documents (5)