Planning application

25/01837/LBC

7 Redhall House Drive Edinburgh EH14 1JE

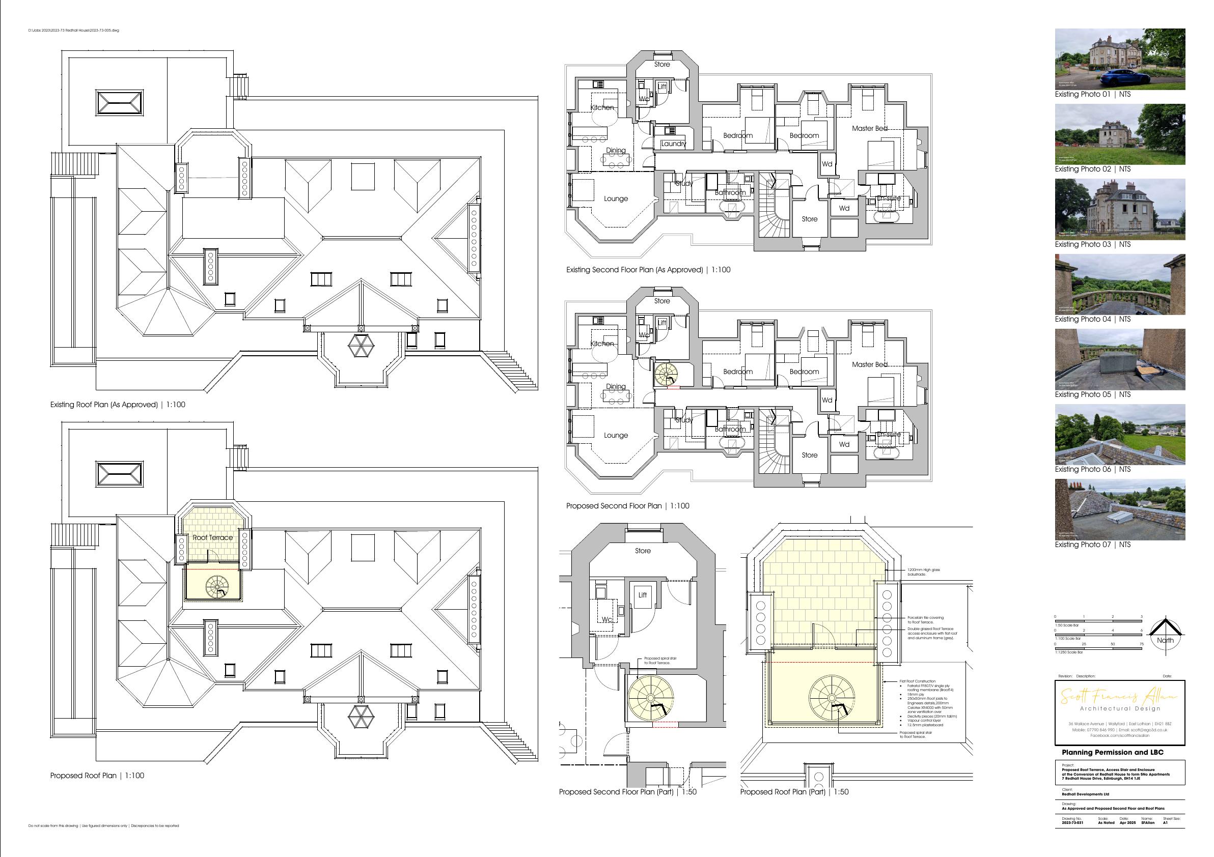
Roof terrace atop Redhall House with a small glazed stair enclosure; the rest of the Grade-listed building and its eight approved flats stay as is. .

Status: Application RefusedCategory: Roof Works & DormersReceived: 7 April 2025

Core Details

Reference
25/01837/LBC
Address
7 Redhall House Drive Edinburgh EH14 1JE
Status
Application Refused
Category
Roof Works & Dormers
Impact Scale
3/10

Timeline

Received
7 April 2025
Validated
9 April 2025
Last Scraped
2 October 2025
Record Created
15 April 2025

Application Summary

AI Summary

Roof terrace atop Redhall House with a small glazed stair enclosure; the rest of the Grade-listed building and its eight approved flats stay as is. .

Original Description

Proposed change in design (24/02495/LBC) - Proposed roof terrace with glazed access structure.

Related Applications (2)

  • 25/03628/LBCApplication Granted(11 July 2025)

    Repainting the existing rendered walls, updating the approved external finish to refresh the buildings appearance. .

  • 25/01836/FULApplication Refused(7 April 2025)

    Roof terrace with glazed stair enclosure proposed atop Redhall House apartments, refining the approved roof design to create shared outdoor space. .

Supporting Documents (5)