Planning application

25/01843/FUL

2 Merchiston Gardens Edinburgh EH10 5DD

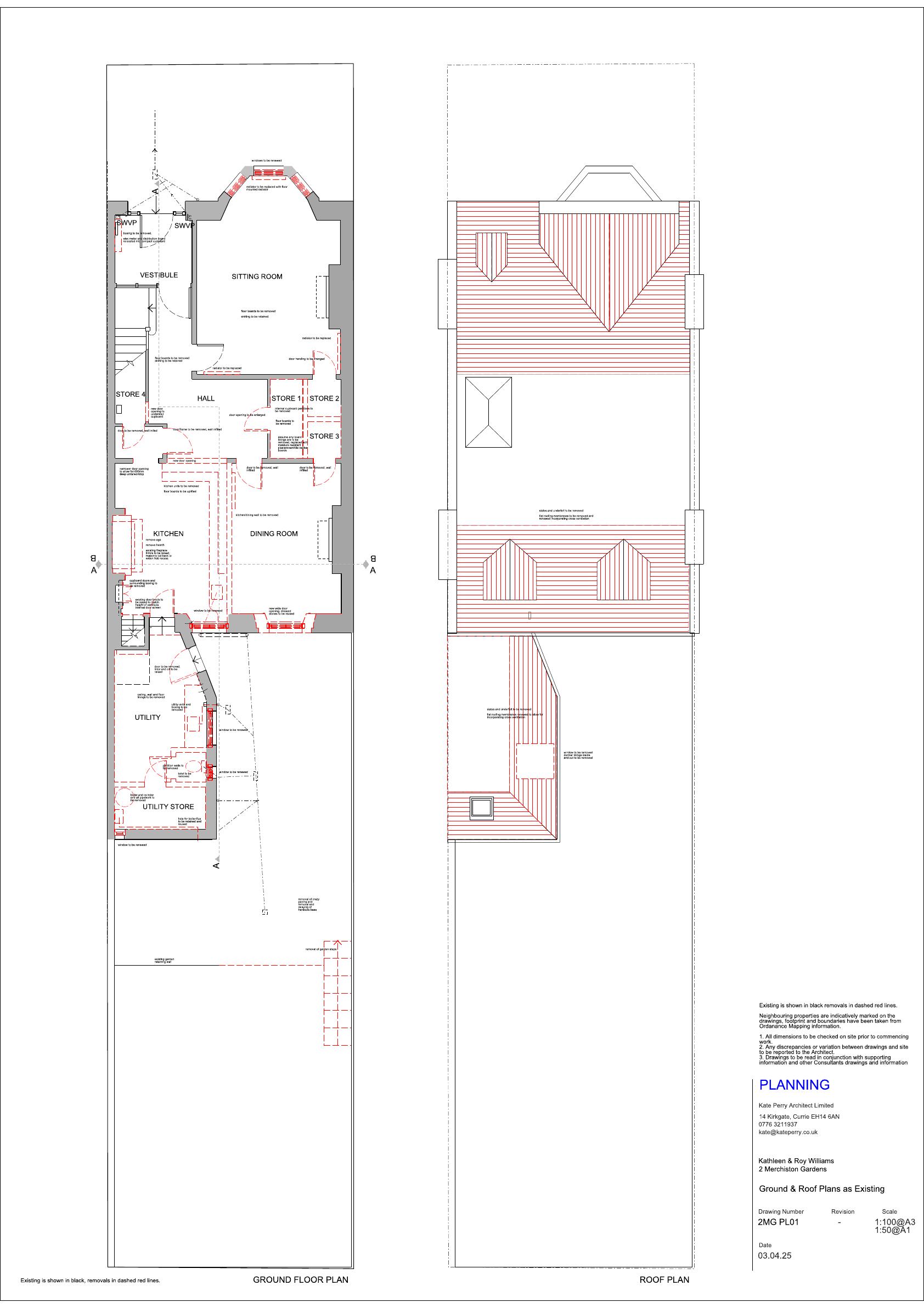
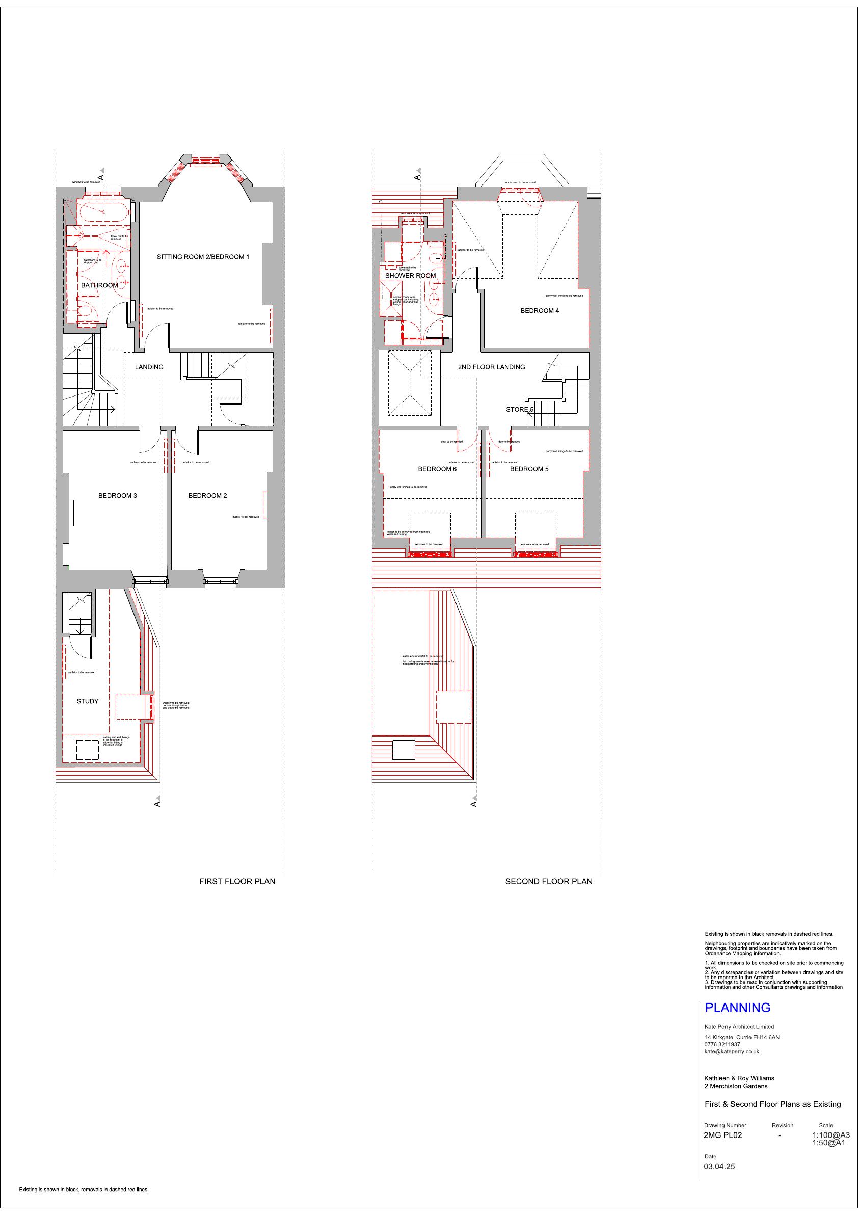
Replace all windows and doors, add French doors, renew roof coverings, fit rear extractor, plus new decking, steps and stone paving. .

Status: Application GrantedCategory: Windows, Doors & GlazingReceived: 7 April 2025

Core Details

Reference
25/01843/FUL
Address
2 Merchiston Gardens Edinburgh EH10 5DD
Status
Application Granted
Category
Windows, Doors & Glazing
Impact Scale
2/10

Timeline

Received
Validated
Last Scraped
Record Created

Additional Application Data

Latitude
55.9299093
Longitude
-3.220201

Application Summary

AI Summary

Replace all windows and doors, add French doors, renew roof coverings, fit rear extractor, plus new decking, steps and stone paving. .

Original Description

Renewal/refurbishment of windows and doors, new French doors, changes to utility window and door, new garden decking, steps + stone paving, roof coverings to be renewed, fan extract terminal to be located on rear wall.

Supporting Documents (5)