Planning application

25/01849/LBC

Tod Run 3A Lockharton Gardens Edinburgh EH14 1AU

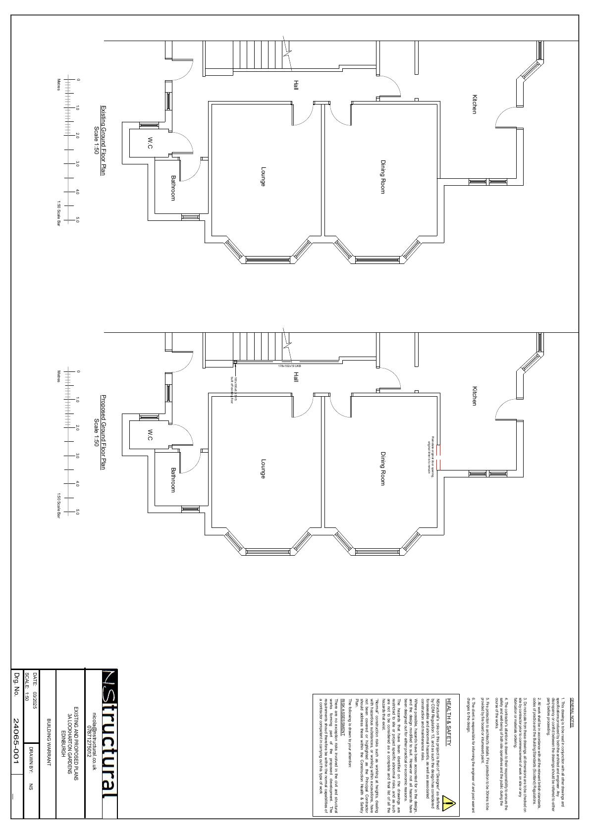
Internal revamp at 34 Lockwood Gardens removes a post-1946 stair-side wall and reopens the kitchen-dining link, restoring the original ground-floor layout without external change. .

Status: Application GrantedCategory: Internal Works & AccessibilityReceived: 8 April 2025

Core Details

Reference
25/01849/LBC
Address
Tod Run 3A Lockharton Gardens Edinburgh EH14 1AU
Status
Application Granted
Category
Internal Works & Accessibility
Impact Scale
2/10

Timeline

Received
Validated
Last Scraped
Record Created

Additional Application Data

Latitude
55.92617689999999
Longitude
-3.2328957

Application Summary

AI Summary

Internal revamp at 34 Lockwood Gardens removes a post-1946 stair-side wall and reopens the kitchen-dining link, restoring the original ground-floor layout without external change. .

Original Description

Remove internal wall beside stair at ground floor level and reinstate the opening between kitchen and dining room. The wall beside the stair at ground floor level was added as part of alterations with a building warrant application dated 1946.

Supporting Documents (4)