Planning application

25/01859/FUL

6 East Castle Road Edinburgh EH10 5AR

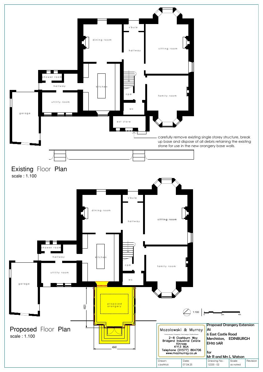
Rear single-storey hardwood-framed orangery (4.7 m 4.2 m) replaces a lean-to, adds full-height kitchen doors and reuses existing stone; subtle upgrade with no street-facing change. .

Status: Application GrantedCategory: Extensions & EnlargementsReceived: 8 April 2025

Core Details

Reference
25/01859/FUL
Address
6 East Castle Road Edinburgh EH10 5AR
Status
Application Granted
Category
Extensions & Enlargements
Impact Scale
2/10

Timeline

Received
Validated
Last Scraped
Record Created

Additional Application Data

Latitude
55.9356222
Longitude
-3.2160244

Application Summary

AI Summary

Rear single-storey hardwood-framed orangery (4.7 m 4.2 m) replaces a lean-to, adds full-height kitchen doors and reuses existing stone; subtle upgrade with no street-facing change. .

Original Description

Alteration to form access to and erection of engineered hardwood orangery extension. **NOTE - PREVIOUS APPLICATION REF: 24/02393/FUL WILL NOT BE CONSTRUCTED.

Supporting Documents (5)