Planning application

25/01869/FUL

30 Dundas Place Kirkliston EH29 9BJ

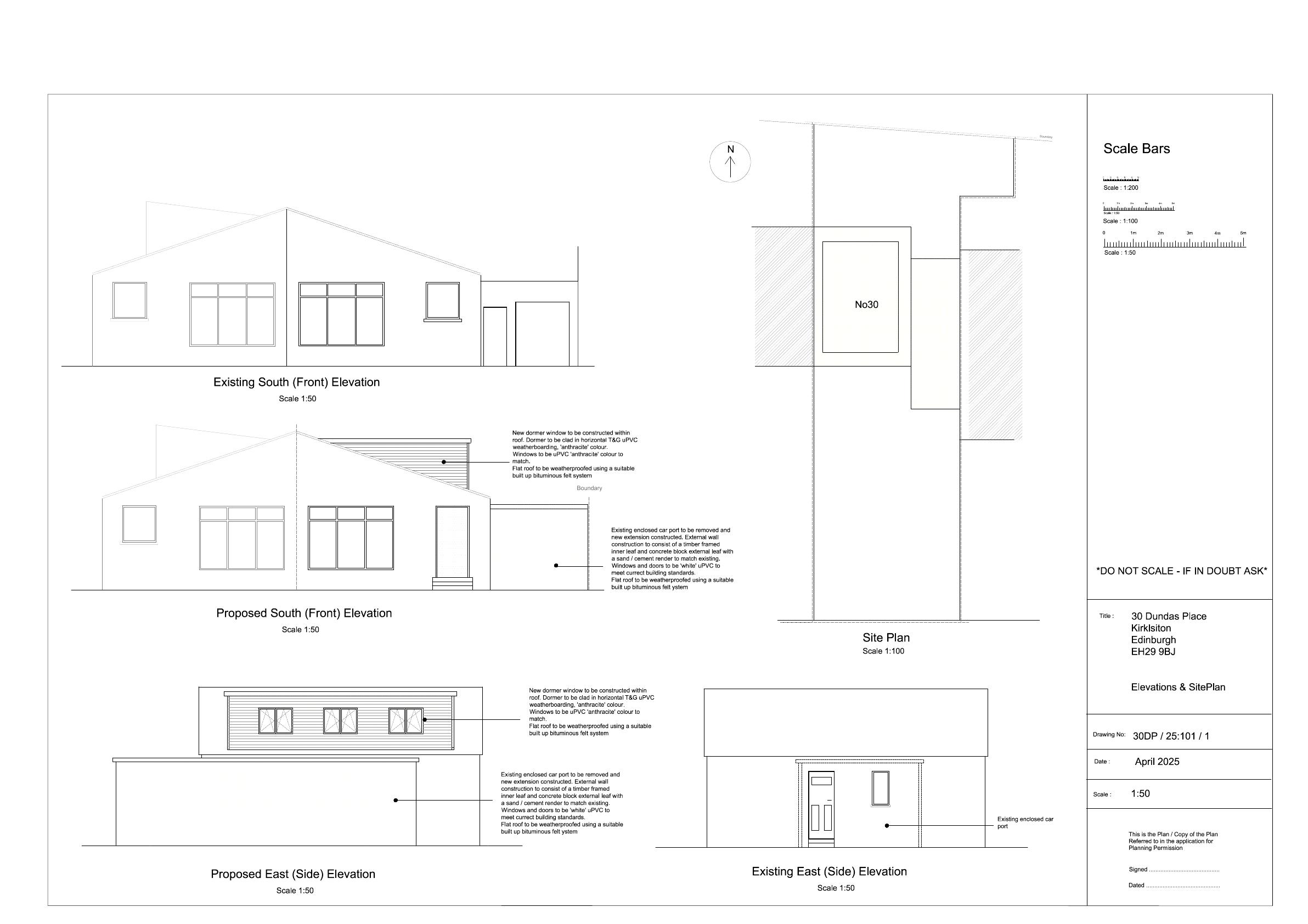
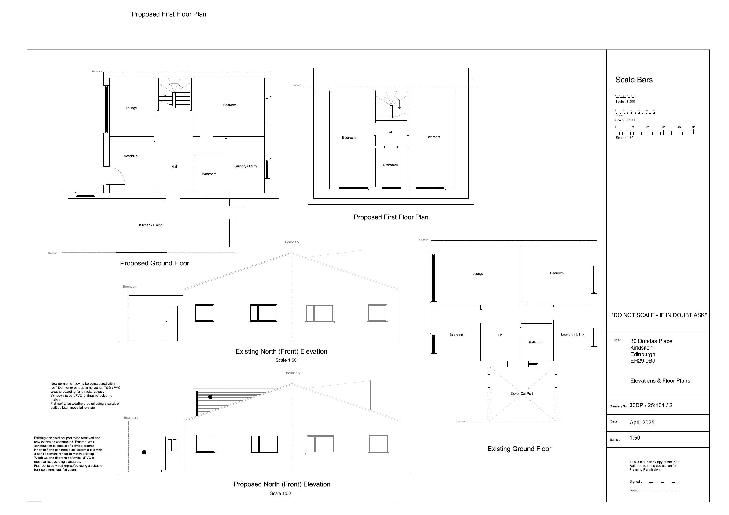
Side single-storey kitchen/dining extension plus full-width roof dormer, turning loft into three bedrooms and bathroom, modestly enlarging this Kirkliston bungalow. .

Status: Application WithdrawnCategory: Extensions & EnlargementsReceived: 8 April 2025

Core Details

Reference
25/01869/FUL
Address
30 Dundas Place Kirkliston EH29 9BJ
Status
Application Withdrawn
Category
Extensions & Enlargements
Impact Scale
3/10

Timeline

Received
8 April 2025
Validated
8 April 2025
Last Scraped
2 October 2025
Record Created
14 April 2025

Application Summary

AI Summary

Side single-storey kitchen/dining extension plus full-width roof dormer, turning loft into three bedrooms and bathroom, modestly enlarging this Kirkliston bungalow. .

Original Description

Construction of single storey extension to side elevation and construction of dormer window in main roof to facilitate conversion of the attic space

Related Applications (1)

  • 25/03043/FULApplication Granted(11 June 2025)

    Box dormer and modest single-storey side wing would enlarge the bungalow and unlock new loft rooms without altering its main roof height. .

Supporting Documents (4)