Planning application

25/01885/FUL

5 Drylaw Grove Edinburgh EH4 2BB

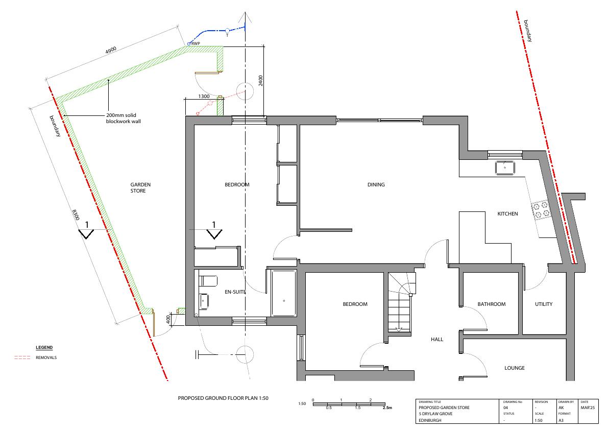
At 5 Drylaw Grove a 15 m, single-storey garden store will attach to the houses west flank, tucked behind 1.8 m fence; unchanged roofline, materials to match, negligible street impact. .

Status: Application GrantedCategory: Outbuildings & Ancillary StructuresReceived: 9 April 2025

Core Details

Reference
25/01885/FUL
Address
5 Drylaw Grove Edinburgh EH4 2BB
Status
Application Granted
Category
Outbuildings & Ancillary Structures
Impact Scale
2/10

Timeline

Received
9 April 2025
Validated
14 April 2025
Last Scraped
2 October 2025
Record Created
20 April 2025

Application Summary

AI Summary

At 5 Drylaw Grove a 15 m, single-storey garden store will attach to the houses west flank, tucked behind 1.8 m fence; unchanged roofline, materials to match, negligible street impact. .

Original Description

Proposed single storey garden store extension to side of property.

Related Applications (1)

  • 25/01886/FULApplication Granted(9 April 2025)

    Rear dormer and ridge lift create new gabled roof section, adding dressing room and en-suite to first-floor master at 5 Drylaw Grove; no footprint change, streetside elevation untouched. .

Supporting Documents (5)