Planning application

25/01886/FUL

5 Drylaw Grove Edinburgh EH4 2BB

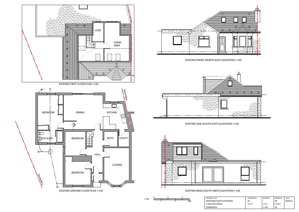
Rear dormer and ridge lift create new gabled roof section, adding dressing room and en-suite to first-floor master at 5 Drylaw Grove; no footprint change, streetside elevation untouched. .

Status: Application GrantedCategory: Roof Works & DormersReceived: 9 April 2025

Core Details

Reference
25/01886/FUL
Address
5 Drylaw Grove Edinburgh EH4 2BB
Status
Application Granted
Category
Roof Works & Dormers
Impact Scale
3/10

Timeline

Received
9 April 2025
Validated
11 April 2025
Last Scraped
2 October 2025
Record Created
17 April 2025

Application Summary

AI Summary

Rear dormer and ridge lift create new gabled roof section, adding dressing room and en-suite to first-floor master at 5 Drylaw Grove; no footprint change, streetside elevation untouched. .

Original Description

Proposed dormer/roof extension and alterations.

Related Applications (1)

  • 25/01885/FULApplication Granted(9 April 2025)

    At 5 Drylaw Grove a 15 m, single-storey garden store will attach to the houses west flank, tucked behind 1.8 m fence; unchanged roofline, materials to match, negligible street impact. .

Supporting Documents (5)