Planning application

25/01887/FUL

29 Belmont Road Juniper Green EH14 5DZ

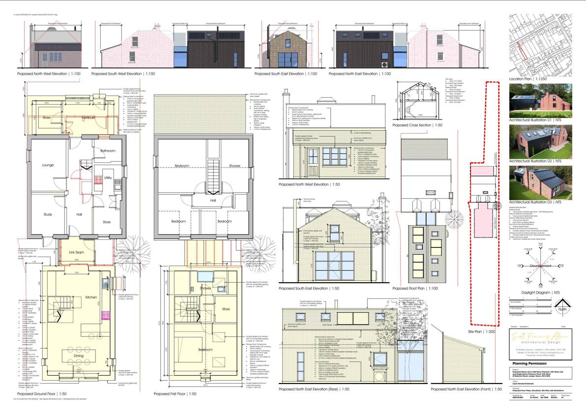
One-and-a-half-storey brick/timber rear wing linked by glazed corridor, plus new porch-store, enlarges ground-floor kitchen-diner and adds upstairs bedroom to the mid-terrace home on Belmont Rd. .

Status: Application GrantedCategory: Extensions & EnlargementsReceived: 9 April 2025

Core Details

Reference
25/01887/FUL
Address
29 Belmont Road Juniper Green EH14 5DZ
Status
Application Granted
Category
Extensions & Enlargements
Impact Scale
4/10

Timeline

Received
Validated
Last Scraped
Record Created

Additional Application Data

Latitude
55.9039887
Longitude
-3.2884585

Application Summary

AI Summary

One-and-a-half-storey brick/timber rear wing linked by glazed corridor, plus new porch-store, enlarges ground-floor kitchen-diner and adds upstairs bedroom to the mid-terrace home on Belmont Rd. .

Original Description

Proposed storey and a half rear extension with glass link and single storey entrance porch with store (as amended)

Supporting Documents (4)