Planning application

25/01904/FUL

2 Kinnear Road Edinburgh EH3 5PE

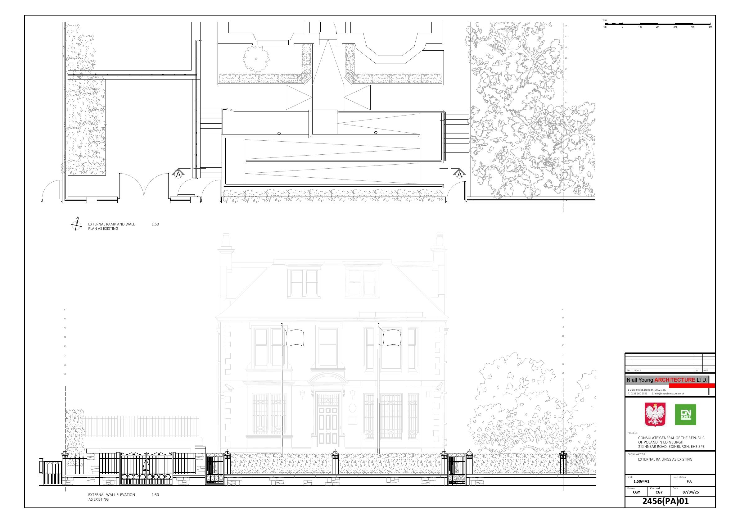
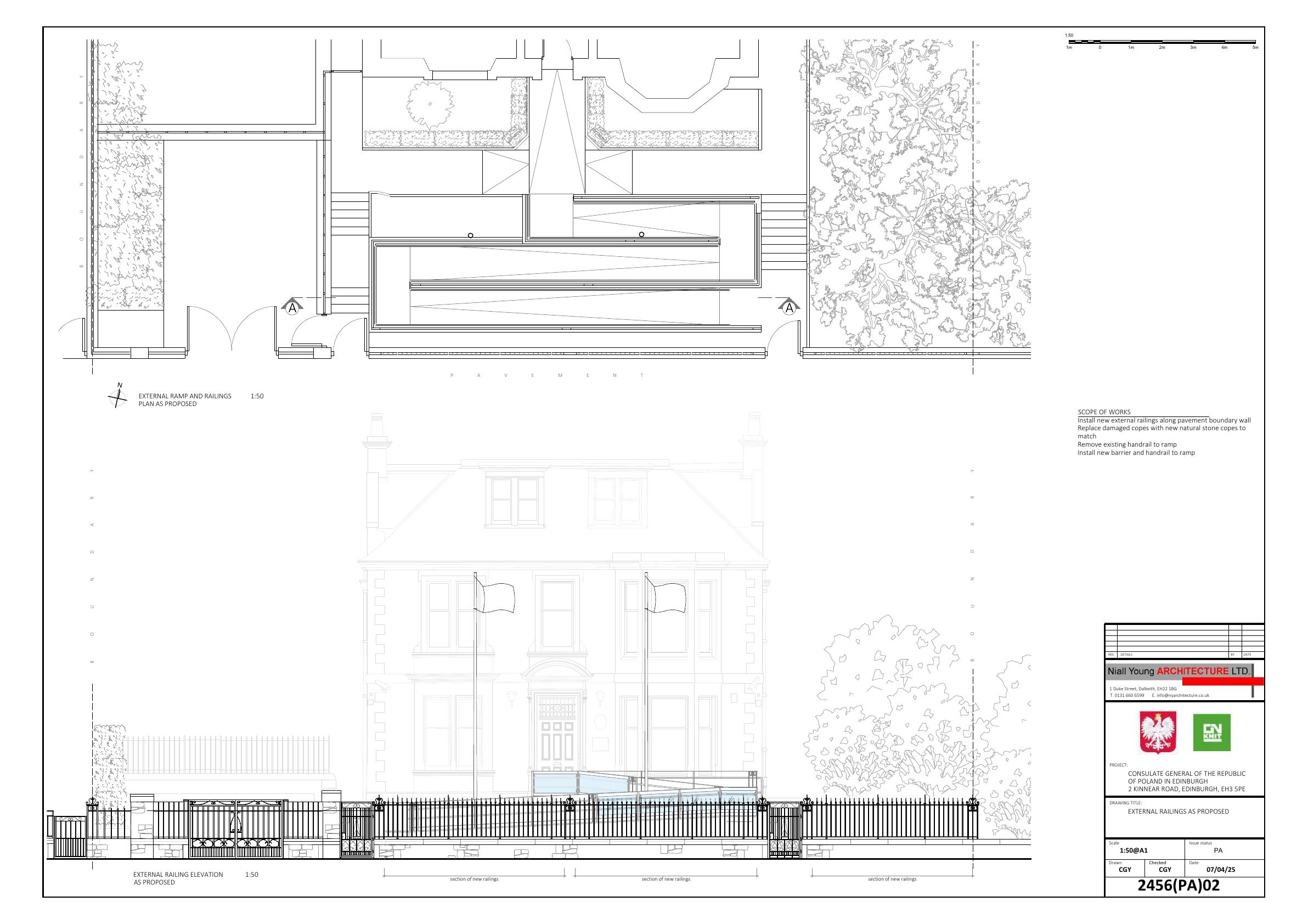
New metal railings on south boundary wall plus sleek glazed handrails to entrance ramp, replacing old rails and coping stones to boost security and accessibility at the consulates single building. .

Status: Application GrantedCategory: Landscaping, Gardens & BoundariesReceived: 10 April 2025

Core Details

Reference
25/01904/FUL
Address
2 Kinnear Road Edinburgh EH3 5PE
Status
Application Granted
Category
Landscaping, Gardens & Boundaries
Impact Scale
2/10

Timeline

Received
10 April 2025
Validated
11 April 2025
Last Scraped
23 March 2026
Record Created
17 April 2025

Application Summary

AI Summary

New metal railings on south boundary wall plus sleek glazed handrails to entrance ramp, replacing old rails and coping stones to boost security and accessibility at the consulates single building. .

Original Description

Installation of railings to South boundary wall. Removal of existing handrails to ramp access. New barrier and handrails to external ramp.

Related Applications (1)

  • 25/01904/VARYPermission has been varied(28 July 2025)

    Adds matching metal railings flanking the driveway gate, extending the boundary treatment without altering building fabric. .

Supporting Documents (4)