Planning application

25/01915/FUL

9 Provost Haugh Currie EH14 5DD

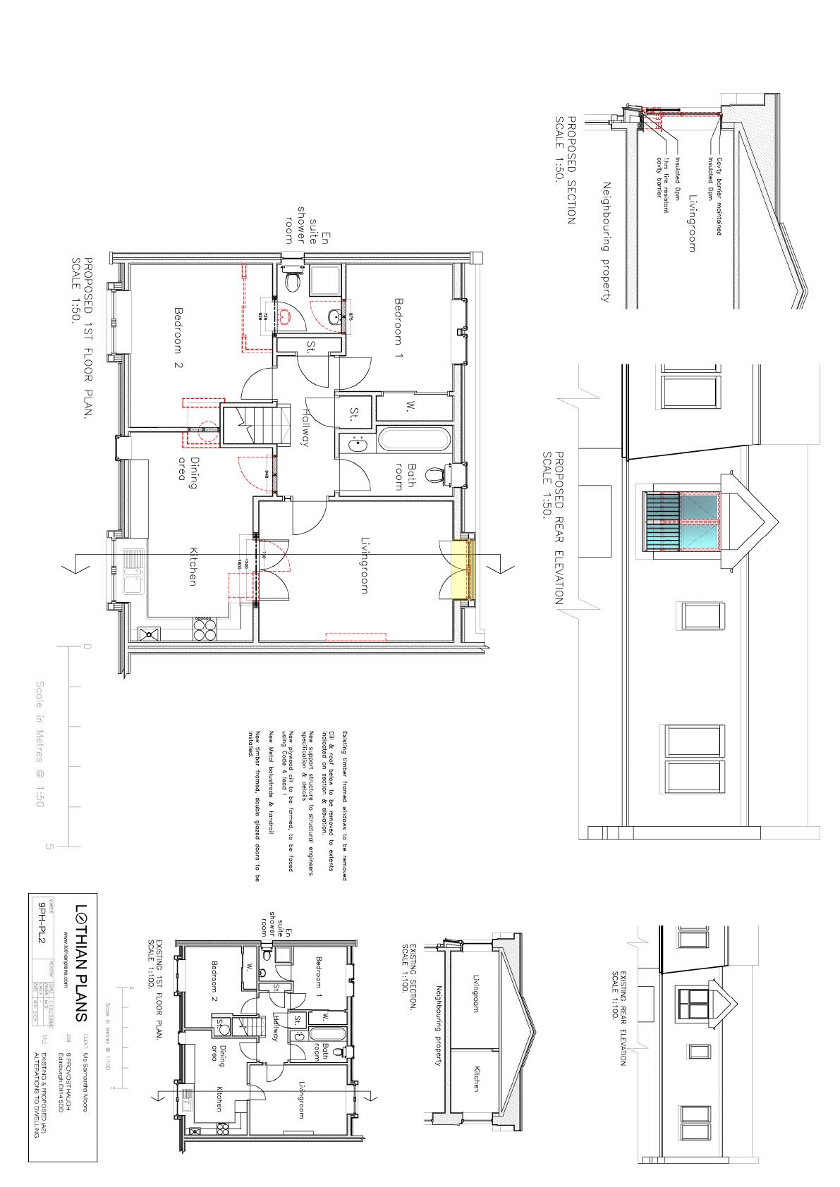
Rear first-floor window widened to French doors with slimline metal Juliet balcony, boosting light and outlook to single terraced dwelling.

Status: Application GrantedCategory: Windows, Doors & GlazingReceived: 10 April 2025

Core Details

Reference
25/01915/FUL
Address
9 Provost Haugh Currie EH14 5DD
Status
Application Granted
Category
Windows, Doors & Glazing
Impact Scale
2/10

Timeline

Received
Validated
Last Scraped
Record Created

Additional Application Data

Latitude
55.8992283
Longitude
-3.2963782

Application Summary

AI Summary

Rear first-floor window widened to French doors with slimline metal Juliet balcony, boosting light and outlook to single terraced dwelling.

Original Description

Enlarging window and adding a Juliet balcony.

Supporting Documents (3)