Planning application

25/01926/ADV

4 Piershill Place Edinburgh EH8 7EH

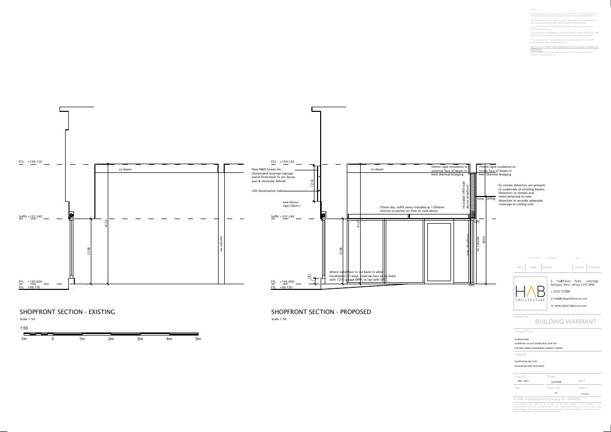
Add LED-lit fascia across existing pharmacy front and integrate a compact script-collection robot hatch; footprint and height unchanged. .

Status: Application GrantedCategory: Shopfront & SignageReceived: 11 April 2025

Core Details

Reference
25/01926/ADV
Address
4 Piershill Place Edinburgh EH8 7EH
Status
Application Granted
Category
Shopfront & Signage
Impact Scale
2/10

Timeline

Received
11 April 2025
Validated
11 April 2025
Last Scraped
2 October 2025
Record Created
17 April 2025

Application Summary

AI Summary

Add LED-lit fascia across existing pharmacy front and integrate a compact script-collection robot hatch; footprint and height unchanged. .

Original Description

Fascia sign Illumination associated with pharmacy script collection dispensing robot.

Related Applications (1)

  • 25/01924/FULApplication Granted(11 April 2025)

    Reconfigure ground-floor retail unit into full-service pharmacy: new glazed shopfront, internal treatment rooms, dispensaries, stores and an external script-dispensing machine; footprint untouched. .

Supporting Documents (4)