Planning application

25/01931/FUL

76 Easter Warriston Edinburgh EH7 4QY

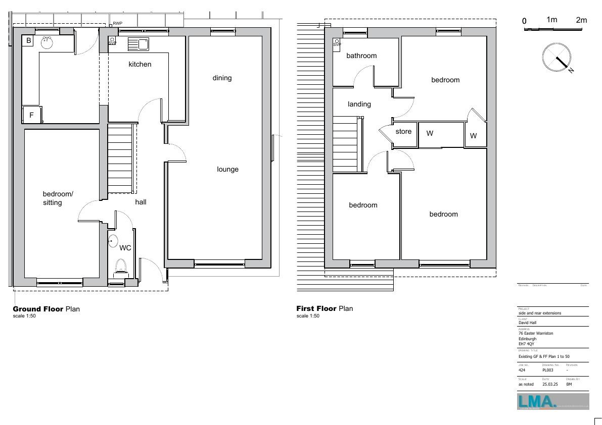
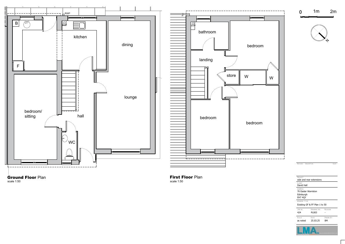
Single-storey side wing adds dressing room + en-suite; rear single-storey build creates larger sitting/dining zone, gently enlarging the footprint within the existing garden plot. .

Status: Application GrantedCategory: Extensions & EnlargementsReceived: 11 April 2025

Core Details

Reference
25/01931/FUL
Address
76 Easter Warriston Edinburgh EH7 4QY
Status
Application Granted
Category
Extensions & Enlargements
Impact Scale
3/10

Timeline

Received
Validated
Last Scraped
Record Created

Additional Application Data

Latitude
55.9705445
Longitude
-3.198455

Application Summary

AI Summary

Single-storey side wing adds dressing room + en-suite; rear single-storey build creates larger sitting/dining zone, gently enlarging the footprint within the existing garden plot. .

Original Description

proposed single storey side extension accommodating dressing room and en-suite, and single storey rear extension accommodating sitting room and dining area.

Supporting Documents (5)