Planning application

25/01940/LBC

7 Howard Place Edinburgh EH3 5JZ

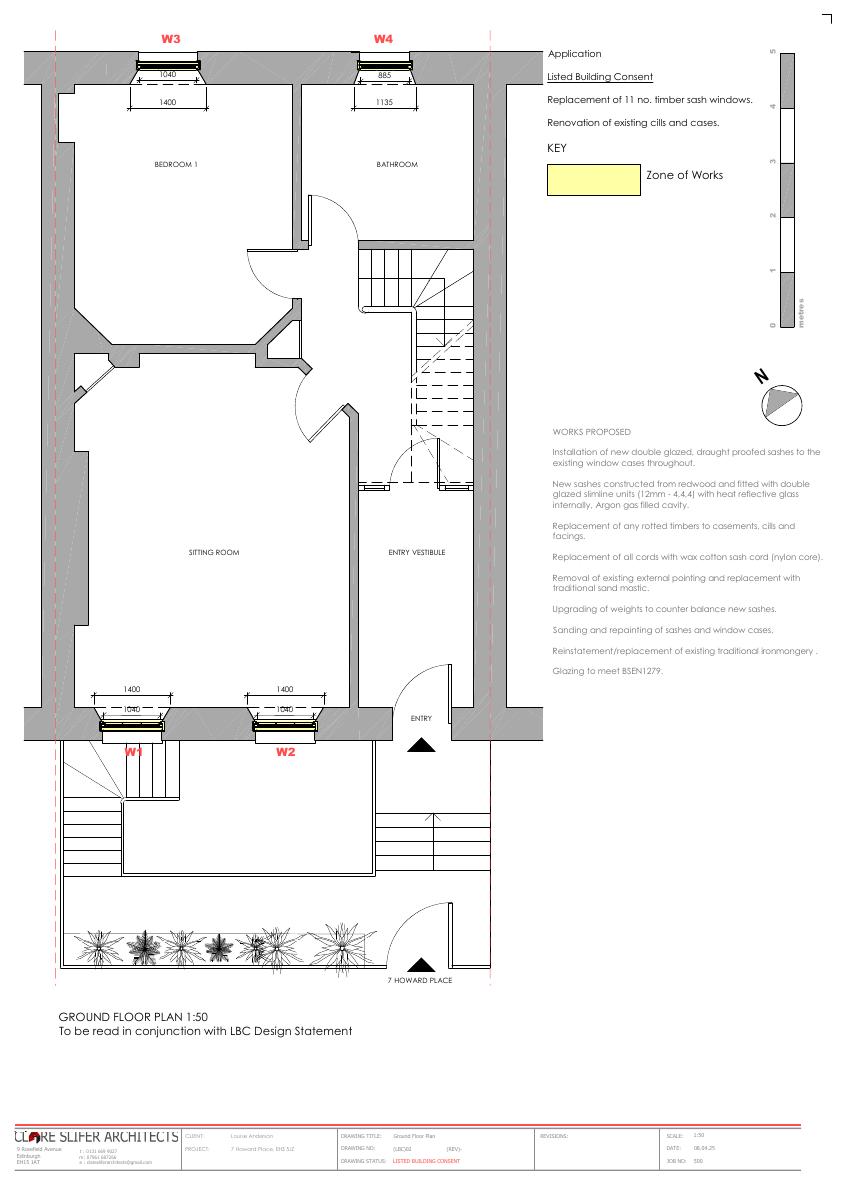
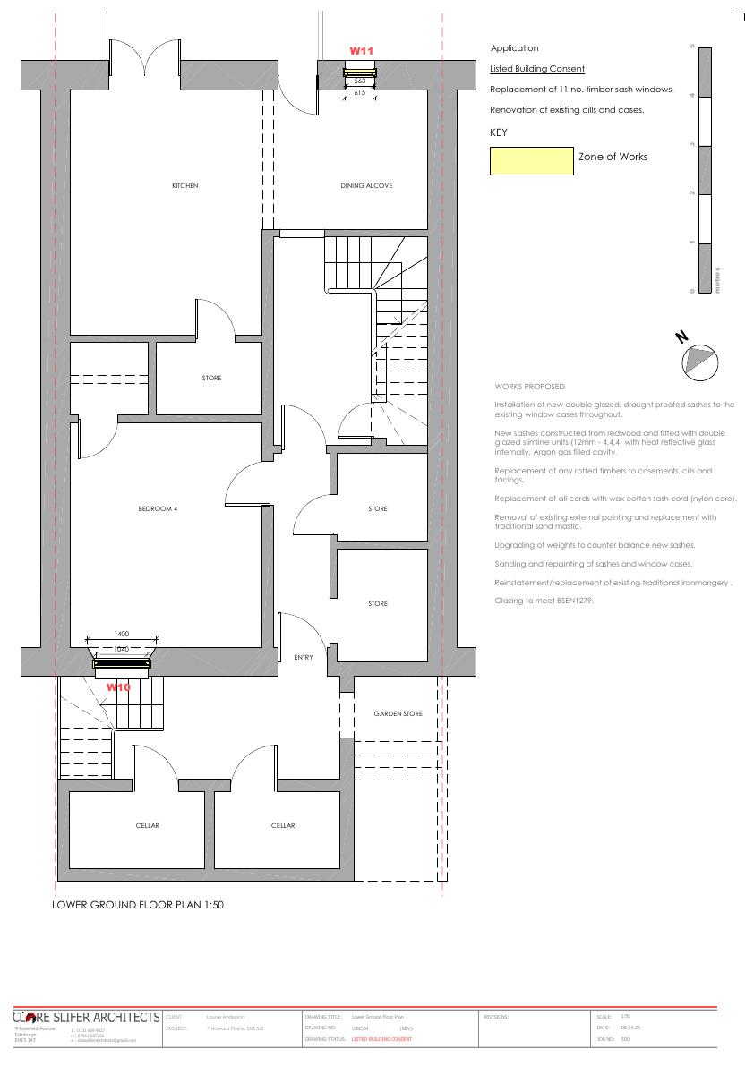
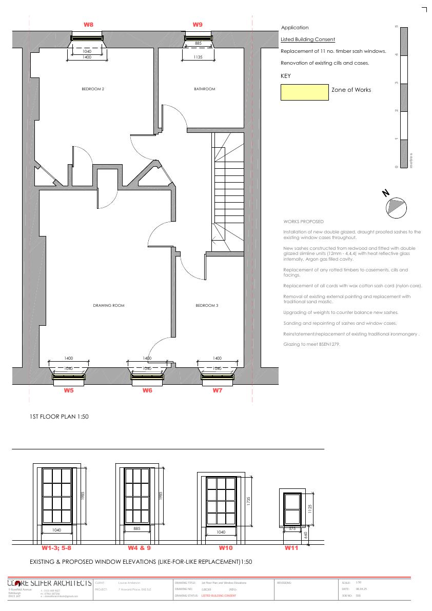
Grade-listed townhouse to replace 11 timber sash windows with slimline double-glazed replicas, preserving 6-over-6 proportions and refurbishing cills, cords and ironmongery. .

Status: Application GrantedCategory: Windows, Doors & GlazingReceived: 11 April 2025

Core Details

Reference
25/01940/LBC
Address
7 Howard Place Edinburgh EH3 5JZ
Status
Application Granted
Category
Windows, Doors & Glazing
Impact Scale
2/10

Timeline

Received
Validated
Last Scraped
Record Created

Additional Application Data

Latitude
55.9636901
Longitude
-3.2010813

Application Summary

AI Summary

Grade-listed townhouse to replace 11 timber sash windows with slimline double-glazed replicas, preserving 6-over-6 proportions and refurbishing cills, cords and ironmongery. .

Original Description

Like-for-like /replacement of 10 No. 6-over-6 format, 1 No. 1-over-1, conservation style, slimline double glazed timber sash windows.

Supporting Documents (5)