Planning application

25/01982/FUL

GF 22 Lynedoch Place New Town Edinburgh EH3 7PY

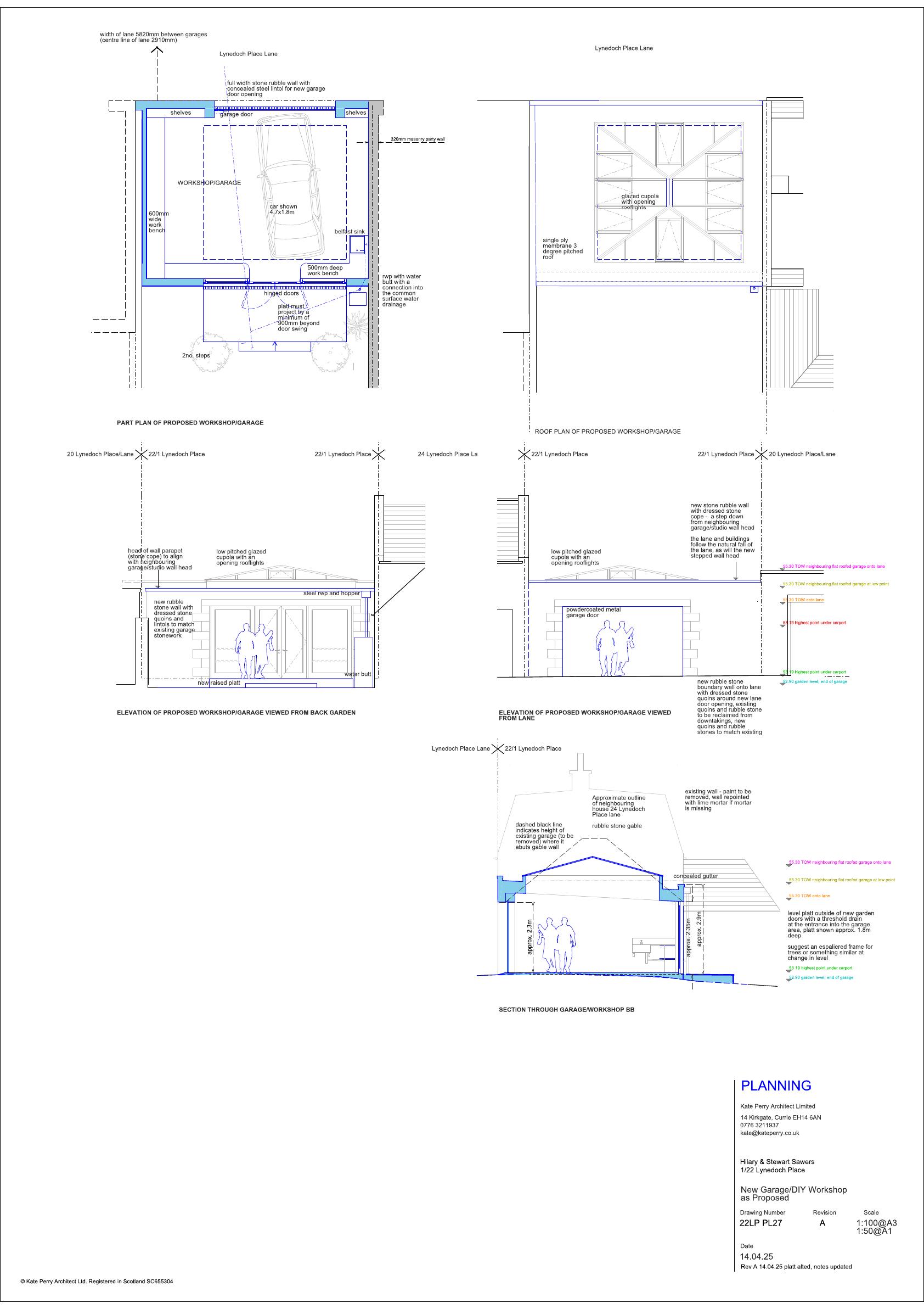
Replace outdated timber garage with single-storey stone-faced workshop/garage and rebuilt lane wall; pitched zinc roof, glazed garden doors, no change to house footprint. .

Status: Application GrantedCategory: Outbuildings & Ancillary StructuresReceived: 15 April 2025

Core Details

Reference
25/01982/FUL
Address
GF 22 Lynedoch Place New Town Edinburgh EH3 7PY
Status
Application Granted
Category
Outbuildings & Ancillary Structures
Impact Scale
3/10

Timeline

Received
15 April 2025
Validated
15 April 2025
Last Scraped
2 October 2025
Record Created
21 April 2025

Application Summary

AI Summary

Replace outdated timber garage with single-storey stone-faced workshop/garage and rebuilt lane wall; pitched zinc roof, glazed garden doors, no change to house footprint. .

Original Description

Demolition of garage and boundary wall facing onto Lynedoch Place Lane. New garage / DIY workshop and stone boundary wall is proposed.

Related Applications (6)

  • 25/01982/VARYAwaiting Assessment(5 February 2026)

    Minor tweaks: slightly taller cupola, extra rear rainwater pipe for new parapet, and slim-framed sliding glass doors replacing hinged set.

  • 25/04028/LBCApplication Granted(5 August 2025)

    Plans replace the existing garage and lane wall with a flat-roofed garage/DIY workshop, adding a side door onto the lane. .

  • 25/04029/FULApplication Granted(5 August 2025)

    Demolish garage and lane-facing wall, replace with stone-fronted garage/DIY workshop and introduce a side gate for garden access. .

  • 25/01981/LBCApplication Granted(15 April 2025)

    Replace existing garage and boundary wall with a single-storey, flat-roof garage/DIY workshop on similar footprint, adding glazed garden frontage but leaving house and lane height unchanged. .

  • 25/00031/FULApplication Refused(7 January 2025)

    Existing garage/carport removed; new single-storey garage, greenhouse and DIY workshop erected on similar footprint with rebuilt stone wall onto Lynedoch Place Lane. .

  • 25/00032/LBCApplication Refused(7 January 2025)

    Existing garage and carport on Lynedoch Place Lane to be cleared; replacement single-storey garage incorporating greenhouse and DIY workspace plus rebuilt stone lane-facing wall. .

Supporting Documents (4)