Planning application

25/02009/LBC

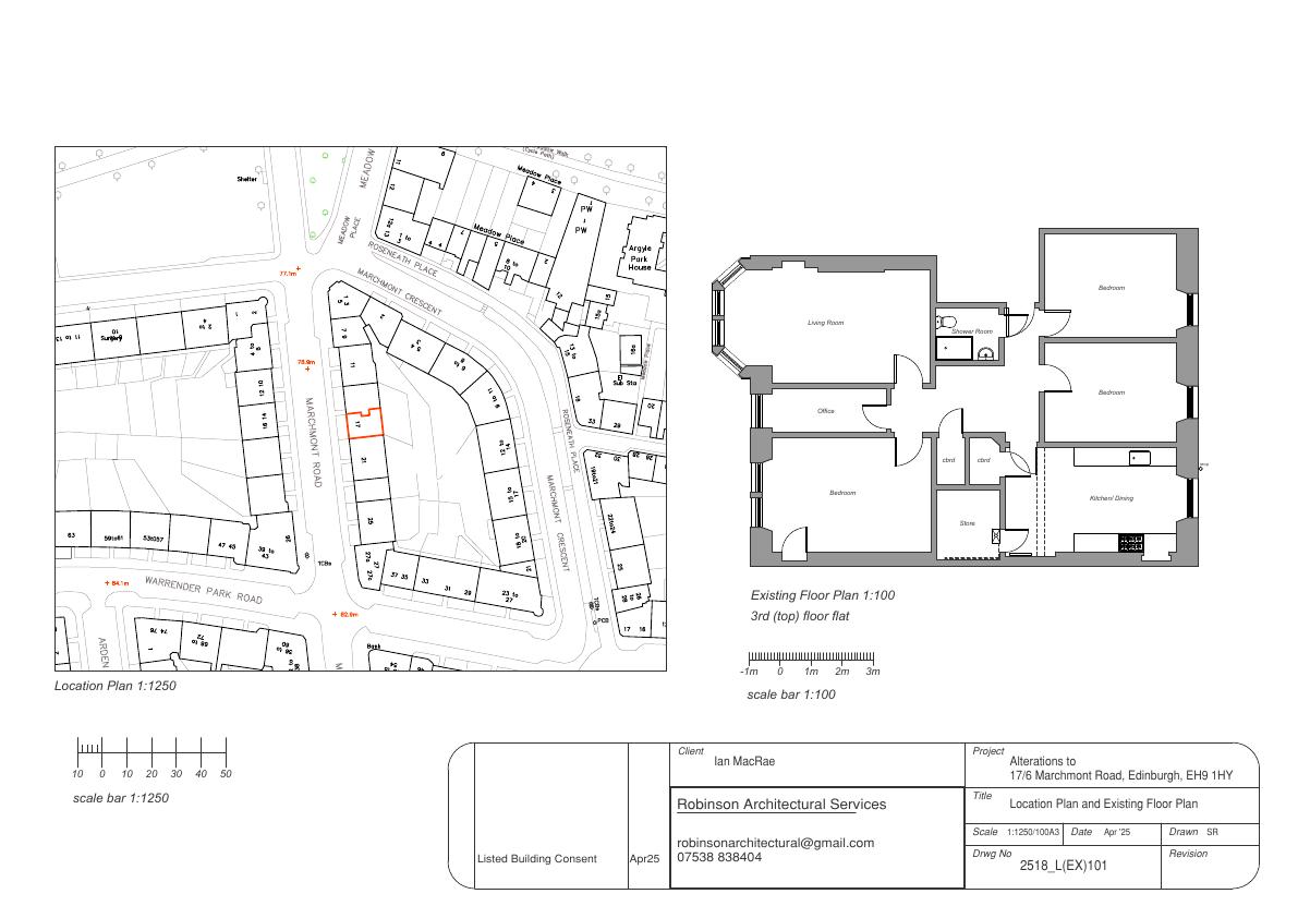
3F2 17 Marchmont Road Marchmont Edinburgh EH9 1HY

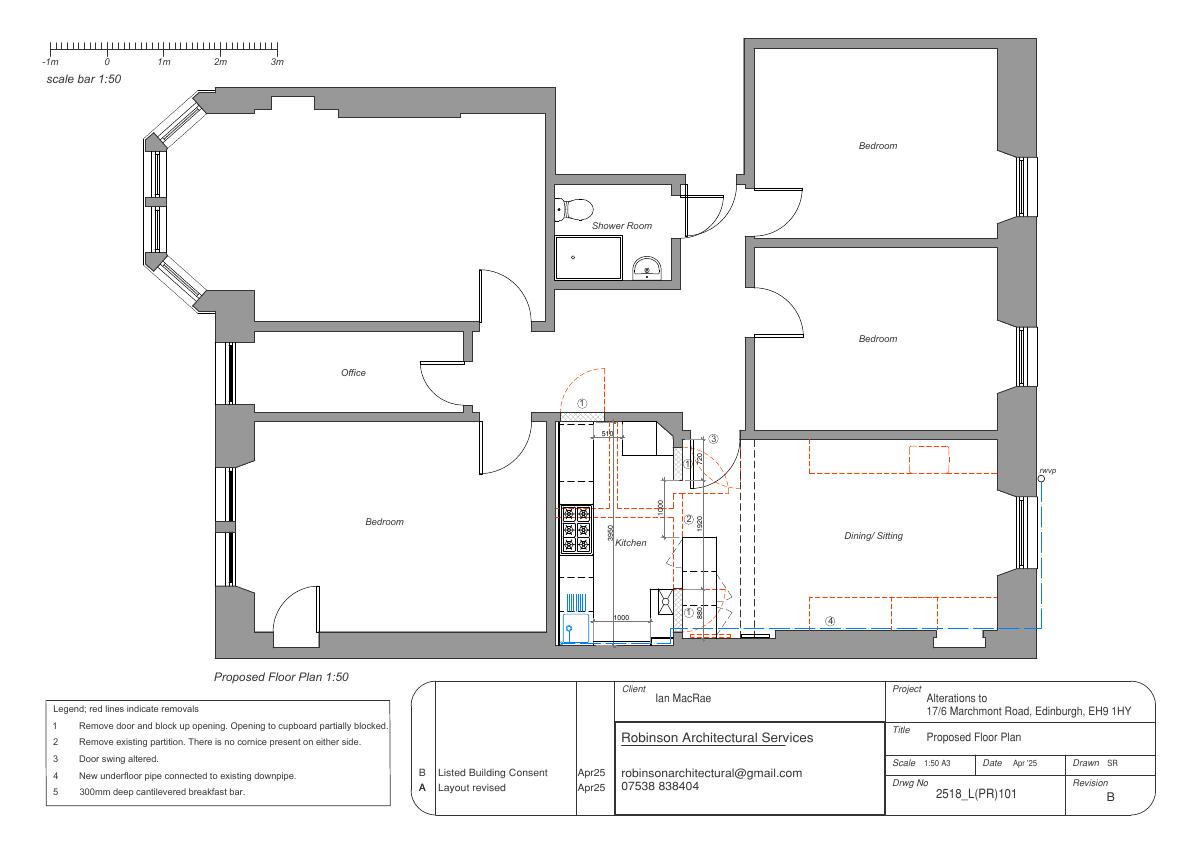
Top-floor Marchmont flat shifts kitchen to central corridor; one partition cut back, two doors blocked, layout tweakedno external works. .

Status: Permission Is Not RequiredCategory: Internal Works & AccessibilityReceived: 16 April 2025

Core Details

Reference
25/02009/LBC
Address
3F2 17 Marchmont Road Marchmont Edinburgh EH9 1HY
Status
Permission Is Not Required
Category
Internal Works & Accessibility
Impact Scale
2/10

Timeline

Received
Validated
Last Scraped
Record Created

Additional Application Data

Latitude
55.9390238
Longitude
-3.194788

Application Summary

AI Summary

Top-floor Marchmont flat shifts kitchen to central corridor; one partition cut back, two doors blocked, layout tweakedno external works. .

Original Description

Alterations to relocate kitchen in top floor flat. Remove section of existing partition. Block up door openings.

Supporting Documents (4)