Planning application

25/02014/CLE

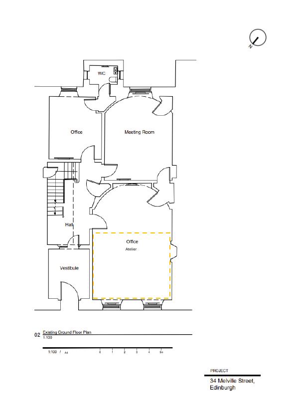
34 Melville Street New Town Edinburgh EH3 7HA

Lawful development certificate confirming ancillary Class 4 office use for existing rooms at 34 Melville St; no physical alterations involved.

Status: Application GrantedCategory: Legal / AdministrativeReceived: 17 April 2025

Core Details

Reference
25/02014/CLE
Address
34 Melville Street New Town Edinburgh EH3 7HA
Status
Application Granted
Category
Legal / Administrative
Impact Scale
1/10

Timeline

Received
Validated
Last Scraped
Record Created

Additional Application Data

Latitude
55.9500163
Longitude
-3.2127209

Application Summary

AI Summary

Lawful development certificate confirming ancillary Class 4 office use for existing rooms at 34 Melville St; no physical alterations involved.

Original Description

CLUD application for Use ancillary to Class 4.

Supporting Documents (3)