Planning application

25/02017/FUL

31 North Gyle Terrace North Gyle Edinburgh EH12 8JU

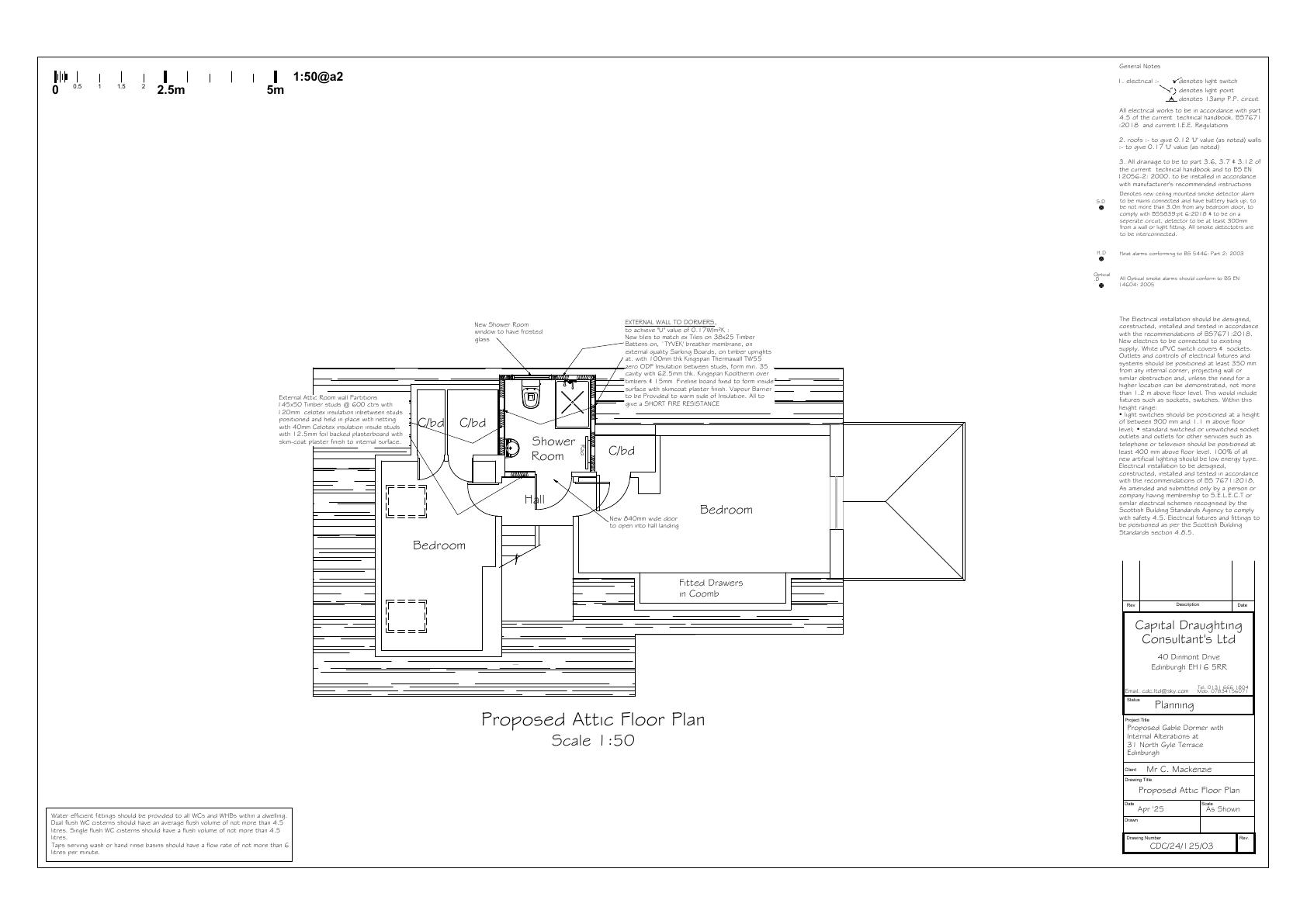
New side-gable dormer enlarges roof space to house a small first-floor shower room, leaving the bungalows footprint and streetscape largely unchanged. .

Status: Application GrantedCategory: Roof Works & DormersReceived: 17 April 2025

Core Details

Reference
25/02017/FUL
Address
31 North Gyle Terrace North Gyle Edinburgh EH12 8JU
Status
Application Granted
Category
Roof Works & Dormers
Impact Scale
2/10

Timeline

Received
Validated
Last Scraped
Record Created

Additional Application Data

Latitude
55.9417482
Longitude
-3.309377

Application Summary

AI Summary

New side-gable dormer enlarges roof space to house a small first-floor shower room, leaving the bungalows footprint and streetscape largely unchanged. .

Original Description

Proposed gable dormer to 1st floor to form new shower room.

Supporting Documents (5)