Planning application

25/02044/TELE

Proposed Telecomms Apparatus 177 Metres North West Of 16 Logie Green Road Warriston Edinburgh

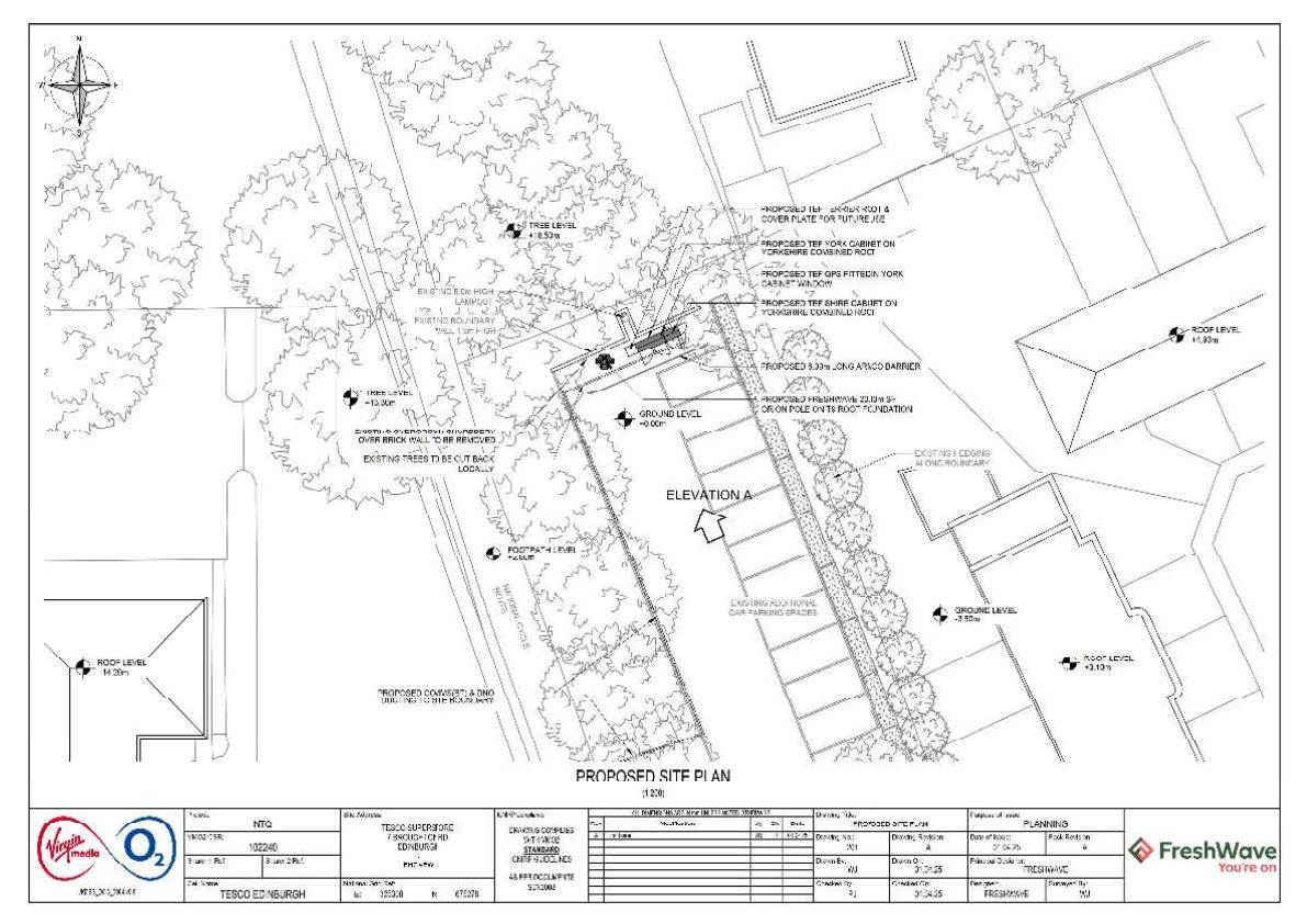
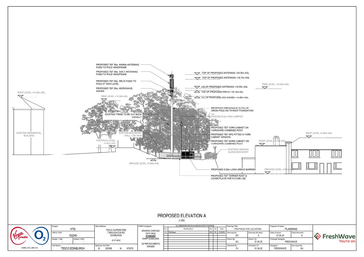
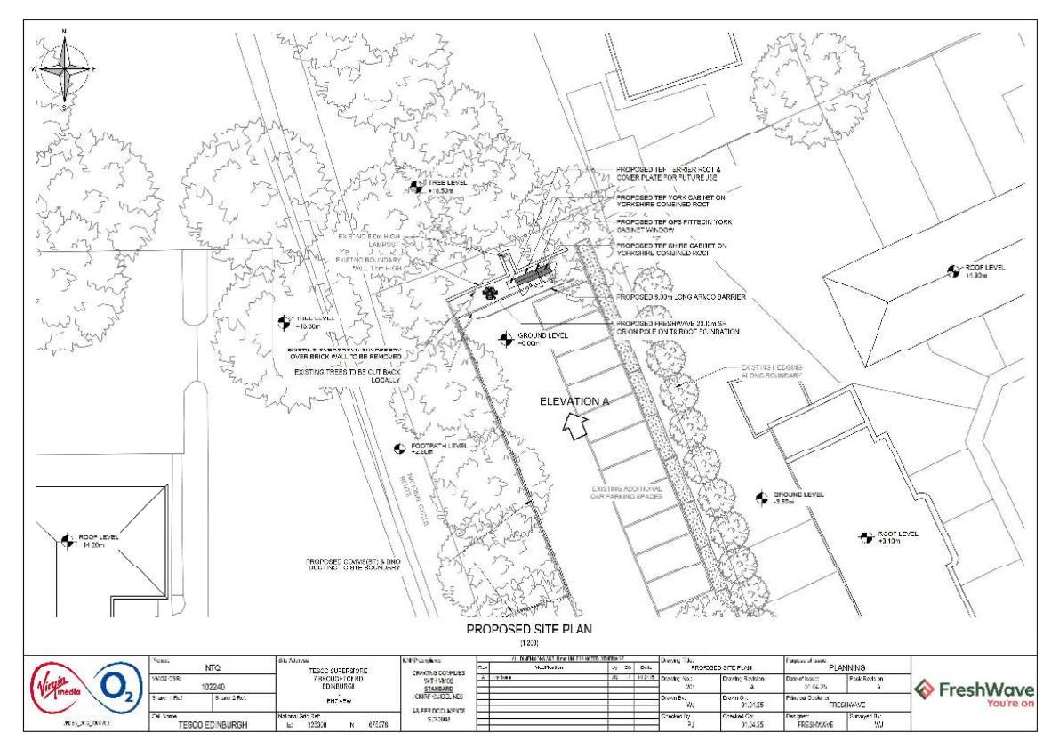
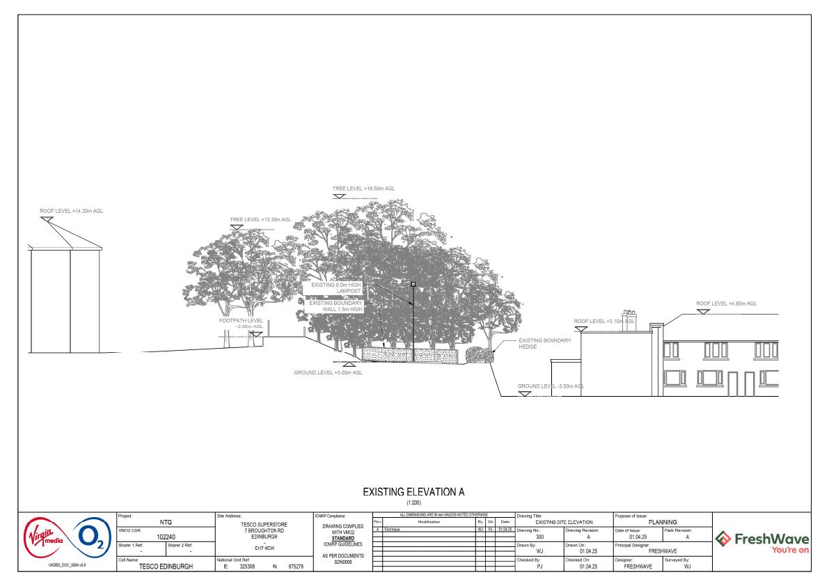
20 m slim-line 5G mast with two microwave dishes and three ground cabinets on Tesco car-park edge; only minor tree pruning and a short safety barrier added, no new buildings. .

Status: Application RefusedCategory: TelecommunicationsReceived: 22 April 2025

Core Details

Reference
25/02044/TELE
Address
Proposed Telecomms Apparatus 177 Metres North West Of 16 Logie Green Road Warriston Edinburgh
Status
Application Refused
Category
Telecommunications
Impact Scale
4/10

Timeline

Received
22 April 2025
Validated
22 April 2025
Last Scraped
23 March 2026
Record Created
28 April 2025

Application Summary

AI Summary

20 m slim-line 5G mast with two microwave dishes and three ground cabinets on Tesco car-park edge; only minor tree pruning and a short safety barrier added, no new buildings. .

Original Description

Prior notification for electronic communication code operators.

Related Applications (1)

  • 25/04334/CLPApplication Granted(21 August 2025)

    20 m telecom monopole with six antennas, two dishes and ground cabinets planned on supermarket car-park edge to boost local mobile coverage. .

Supporting Documents (6)