Planning application

25/02050/FUL

171 Mayfield Road Edinburgh EH9 3AZ

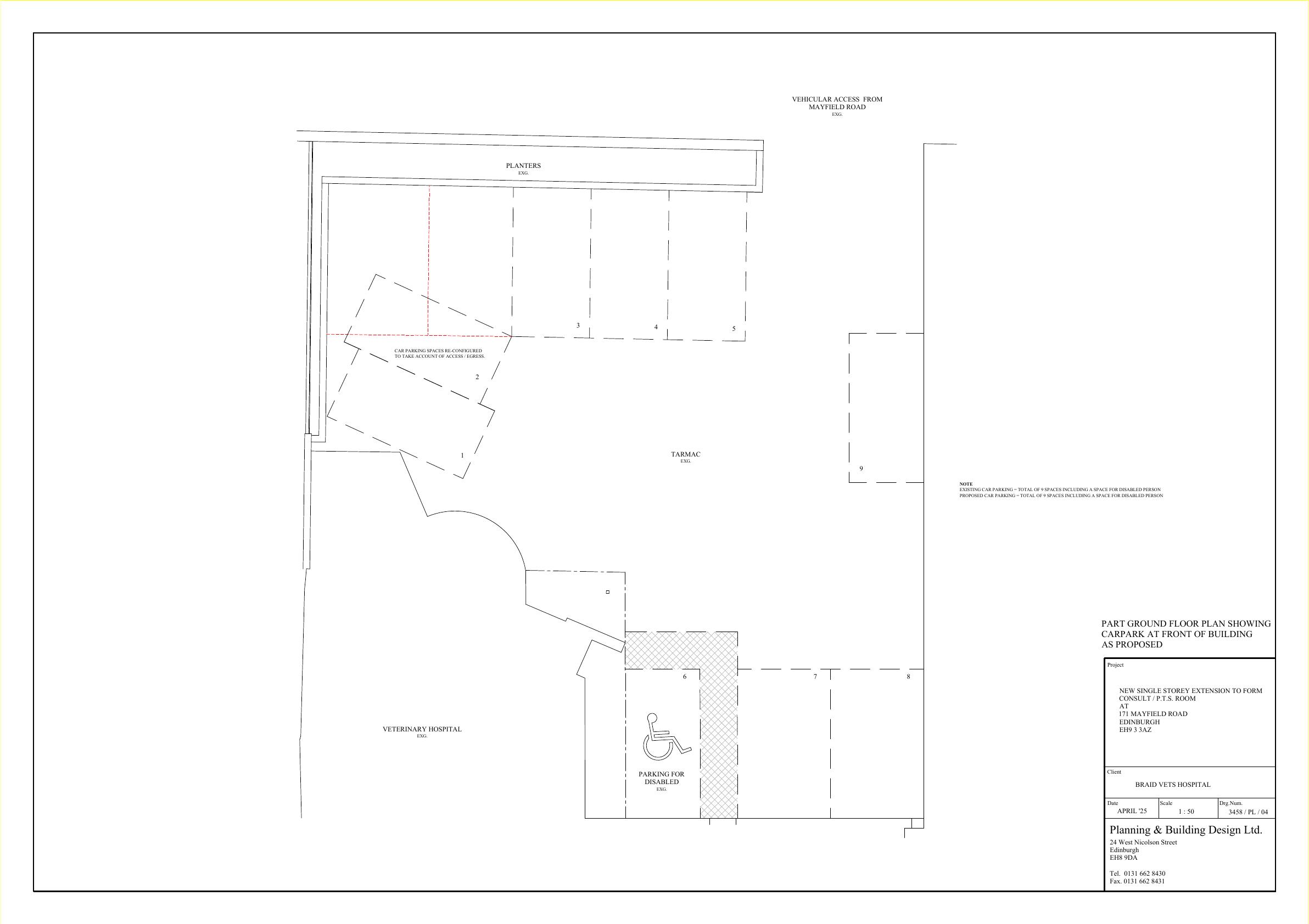
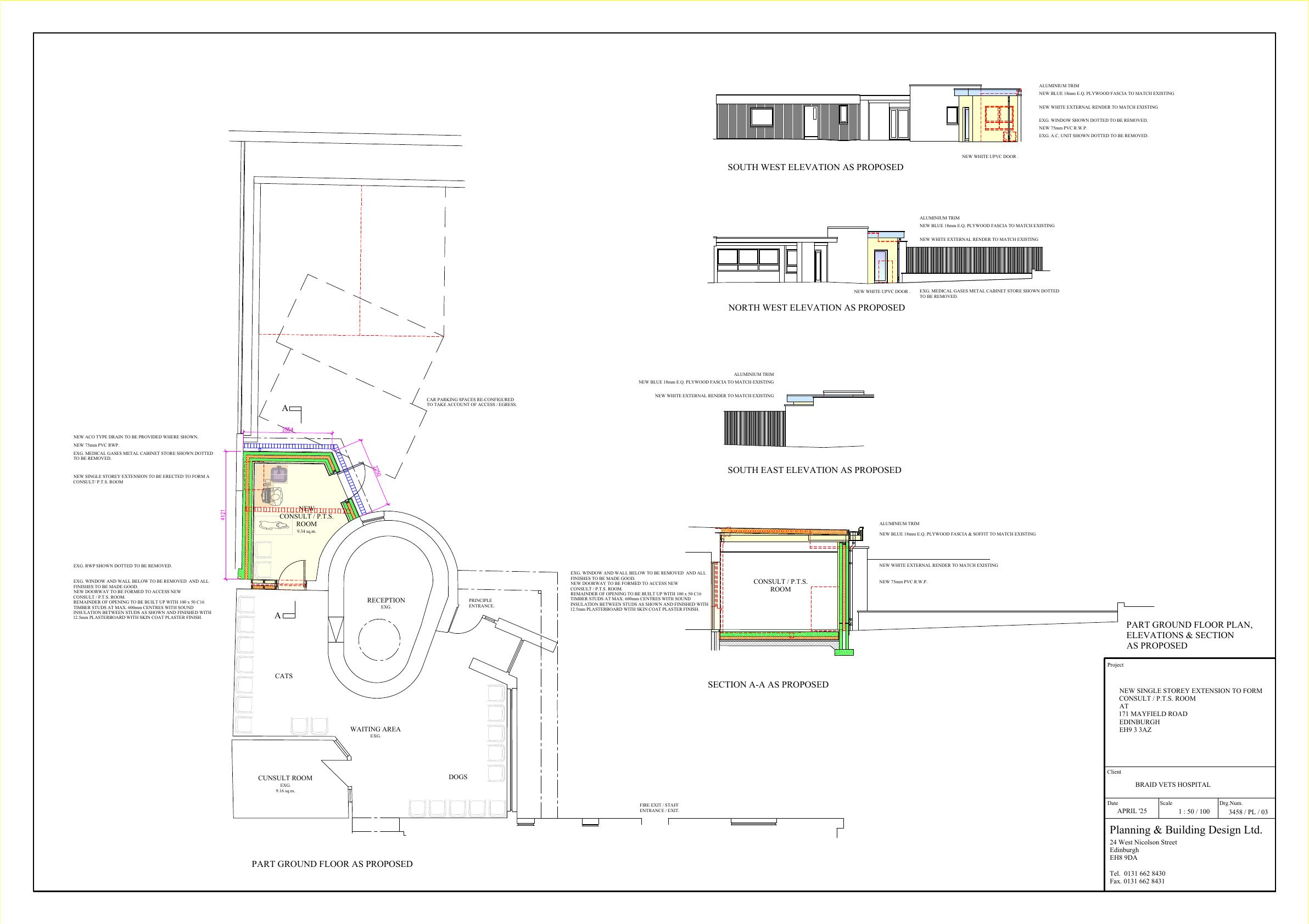
Braid Vets, 171 Mayfield Rd: add ~12 m single-storey consult/P.T.S. room off reception; flat roof, matching cladding, slight car-park tweak, no height change.

Status: Application GrantedCategory: Extensions & EnlargementsReceived: 22 April 2025

Core Details

Reference
25/02050/FUL
Address
171 Mayfield Road Edinburgh EH9 3AZ
Status
Application Granted
Category
Extensions & Enlargements
Impact Scale
2/10

Timeline

Received
Validated
Last Scraped
Record Created

Additional Application Data

Latitude
55.9327841
Longitude
-3.1775196

Application Summary

AI Summary

Braid Vets, 171 Mayfield Rd: add ~12 m single-storey consult/P.T.S. room off reception; flat roof, matching cladding, slight car-park tweak, no height change.

Original Description

New single storey extension to form consult /p.t.s. room.

Supporting Documents (5)