Planning application

25/02054/FUL

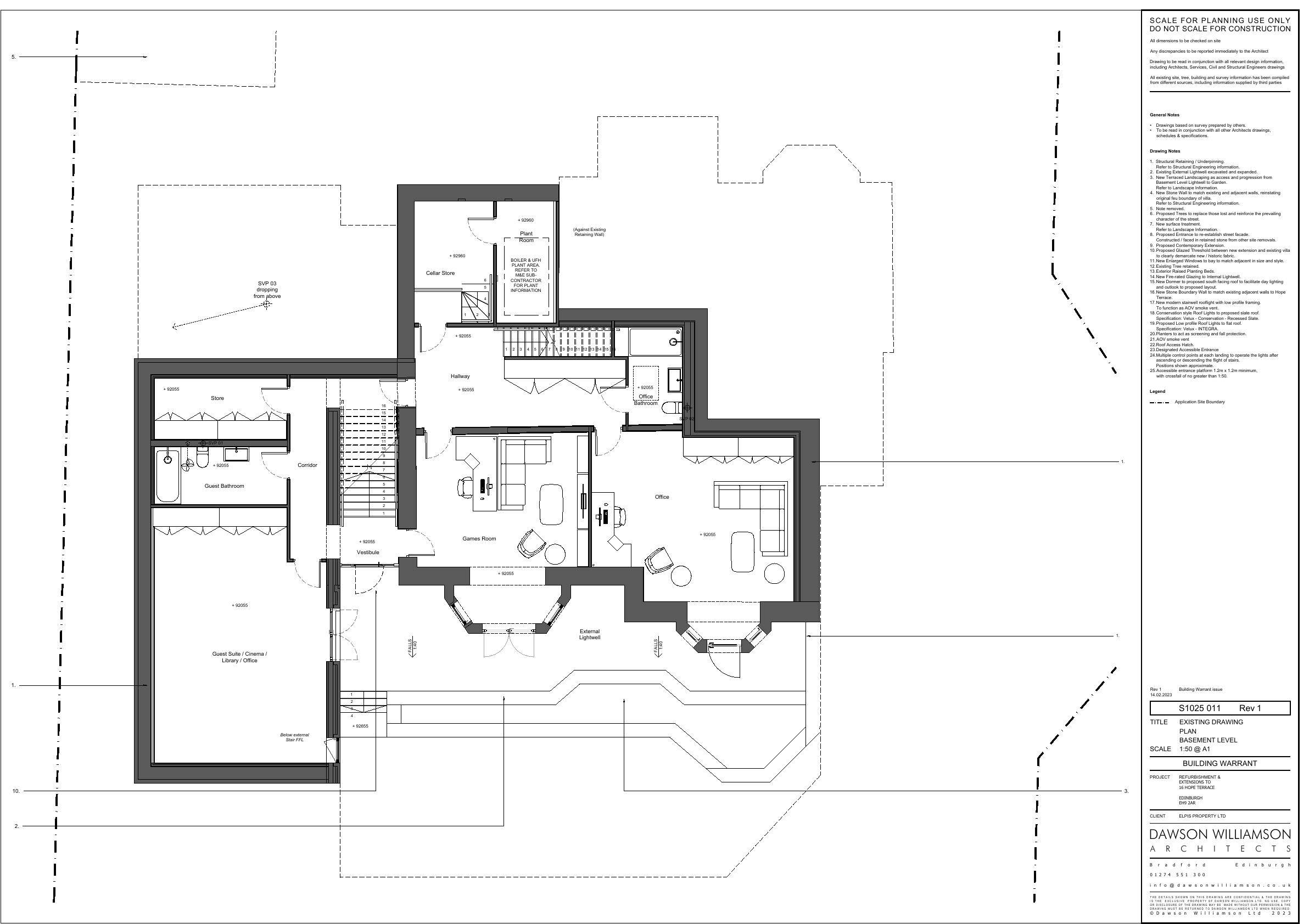
Forteviot House 16 Hope Terrace Morningside Edinburgh EH9 2AR

Tweaks to approved home remodel at 16 Hope Terrace: sleeker porch, altered west window, timber cladding dropped, lower glass link roof, tidier parapet. .

Status: Application GrantedCategory: Extensions & EnlargementsReceived: 22 April 2025

Core Details

Reference
25/02054/FUL
Address
Forteviot House 16 Hope Terrace Morningside Edinburgh EH9 2AR
Status
Application Granted
Category
Extensions & Enlargements
Impact Scale
2/10

Timeline

Received
22 April 2025
Validated
22 April 2025
Last Scraped
2 October 2025
Record Created
28 April 2025

Application Summary

AI Summary

Tweaks to approved home remodel at 16 Hope Terrace: sleeker porch, altered west window, timber cladding dropped, lower glass link roof, tidier parapet. .

Original Description

Adjust existing approval, including amendments to: front porch, window on west elevation, removal of timber cladding to West elevation, adjustment to glass link roof and adjustment to West extension parapet.

Related Applications (1)

  • 24/03976/VARYPermission has been varied(8 January 2025)

    Boundary wall between 16 and 16A Hope Terrace shifted slightly east to protect copper beech roots; existing steel-supported bridging detail over roots retained. .

Supporting Documents (5)