Planning application

25/02061/FUL

14 Kirkhill Drive Prestonfield Edinburgh EH16 5DW

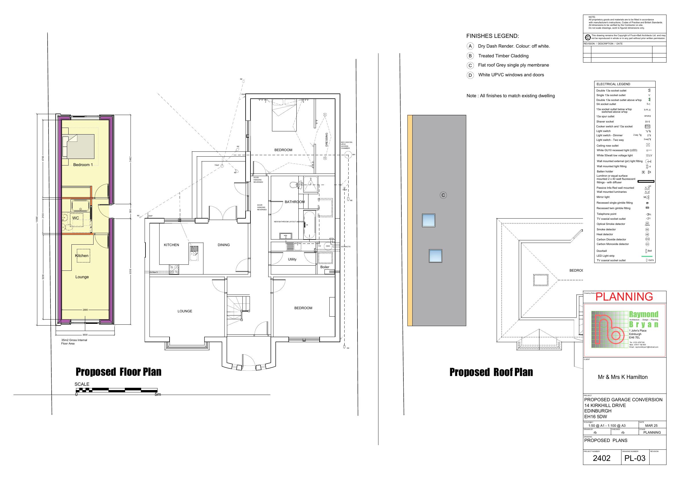
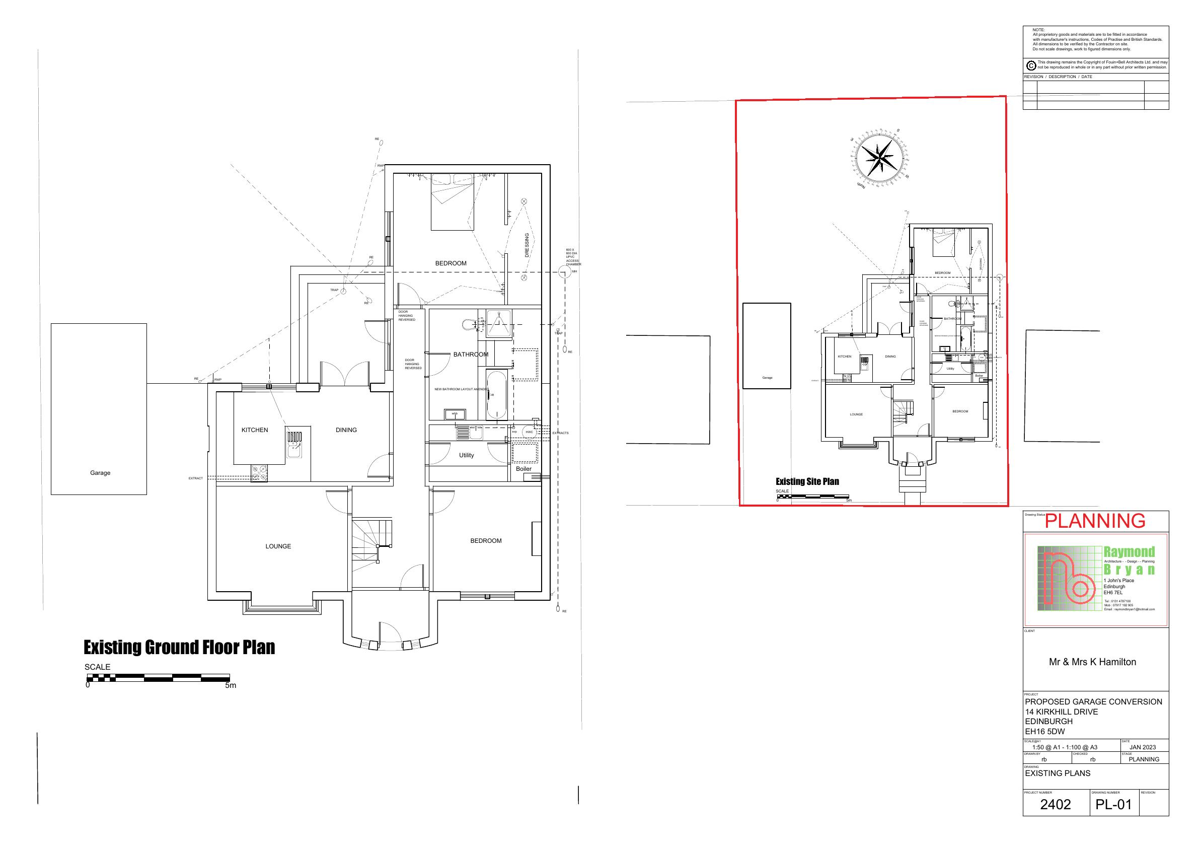
Detached garage replaced by a single-storey, flat-roof granny annex housing lounge/kitchen, WC and bedroom; timber cladding and off-white render echo the bungalow, minimal wider impact. .

Status: Application GrantedCategory: Outbuildings & Ancillary StructuresReceived: 22 April 2025

Core Details

Reference
25/02061/FUL
Address
14 Kirkhill Drive Prestonfield Edinburgh EH16 5DW
Status
Application Granted
Category
Outbuildings & Ancillary Structures
Impact Scale
4/10

Timeline

Received
Validated
Last Scraped
Record Created

Additional Application Data

Latitude
55.9343314
Longitude
-3.1642794

Application Summary

AI Summary

Detached garage replaced by a single-storey, flat-roof granny annex housing lounge/kitchen, WC and bedroom; timber cladding and off-white render echo the bungalow, minimal wider impact. .

Original Description

Remove existing garage and erect new granny annex.

Supporting Documents (5)