Planning application

25/02074/LBC

1F2 20 Bruntsfield Avenue Bruntsfield Edinburgh EH10 4EW

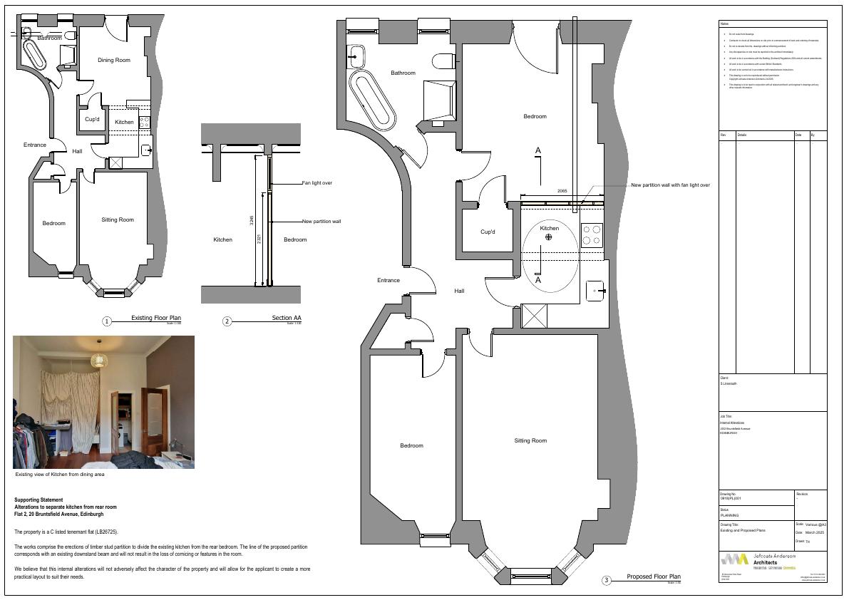
Lightweight stud wall inserted to divide open kitchen/bedroom in listed Bruntsfield tenement; purely internal, retains original fabric and leaves faade untouched. .

Status: Permission Is Not RequiredCategory: Internal Works & AccessibilityReceived: 23 April 2025

Core Details

Reference
25/02074/LBC
Address
1F2 20 Bruntsfield Avenue Bruntsfield Edinburgh EH10 4EW
Status
Permission Is Not Required
Category
Internal Works & Accessibility
Impact Scale
1/10

Timeline

Received
Validated
Last Scraped
Record Created

Additional Application Data

Latitude
55.9369466
Longitude
-3.2097445

Application Summary

AI Summary

Lightweight stud wall inserted to divide open kitchen/bedroom in listed Bruntsfield tenement; purely internal, retains original fabric and leaves faade untouched. .

Original Description

Erect new partition between kitchen and rear room.

Supporting Documents (3)