Planning application

25/02075/FUL

14 Cammo Grove Cammo Edinburgh EH4 8EX

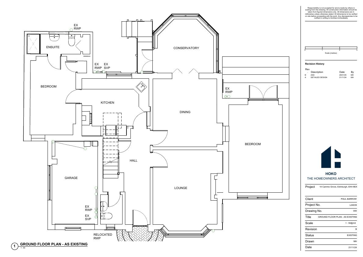
Converts attached garage to living space, reclads existing walls and slightly raises parapet for a tidier rooflineno footprint change, all within current suburban plot. .

Status: Application GrantedCategory: Change of Use & ConversionsReceived: 23 April 2025

Core Details

Reference
25/02075/FUL
Address
14 Cammo Grove Cammo Edinburgh EH4 8EX
Status
Application Granted
Category
Change of Use & Conversions
Impact Scale
2/10

Timeline

Received
Validated
Last Scraped
Record Created

Additional Application Data

Latitude
55.9597882
Longitude
-3.3162028

Application Summary

AI Summary

Converts attached garage to living space, reclads existing walls and slightly raises parapet for a tidier rooflineno footprint change, all within current suburban plot. .

Original Description

Garage conversion with new cladding added to exterior of existing external walls & raised parapet level.

Supporting Documents (5)