Planning application

25/02076/FUL

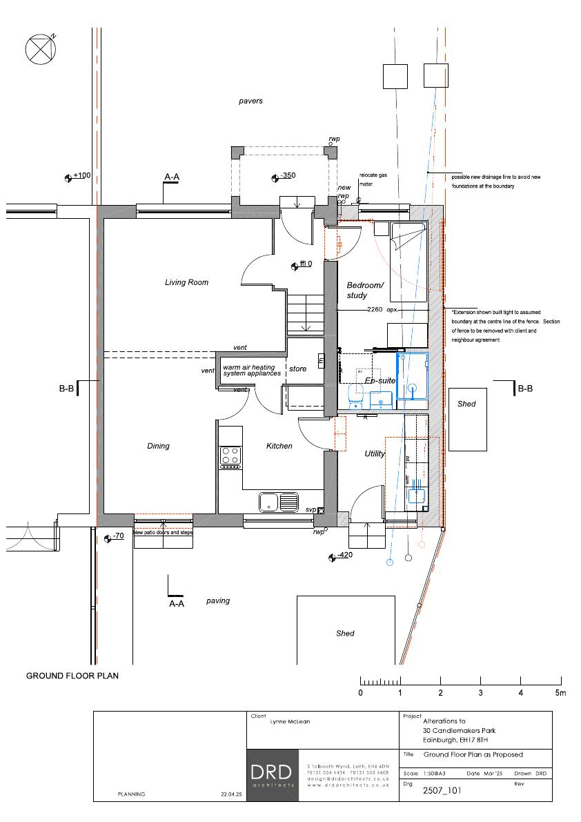
30 Candlemaker's Park Moredun Edinburgh EH17 8TH

Single-storey side wing at 30 Candlemakers Park adds ground-floor bedroom/study with en-suite and utility, matching brick/pitched roof, built on boundary with negligible street impact. .

Status: Application GrantedCategory: Extensions & EnlargementsReceived: 23 April 2025

Core Details

Reference
25/02076/FUL
Address
30 Candlemaker's Park Moredun Edinburgh EH17 8TH
Status
Application Granted
Category
Extensions & Enlargements
Impact Scale
2/10

Timeline

Received
Validated
Last Scraped
Record Created

Additional Application Data

Latitude
55.904872
Longitude
-3.1287971

Application Summary

AI Summary

Single-storey side wing at 30 Candlemakers Park adds ground-floor bedroom/study with en-suite and utility, matching brick/pitched roof, built on boundary with negligible street impact. .

Original Description

Erect single storey side extension to dwelling house.

Supporting Documents (5)