Planning application

25/02098/LBC

4 Liberton Tower Lane Edinburgh EH16 6TQ

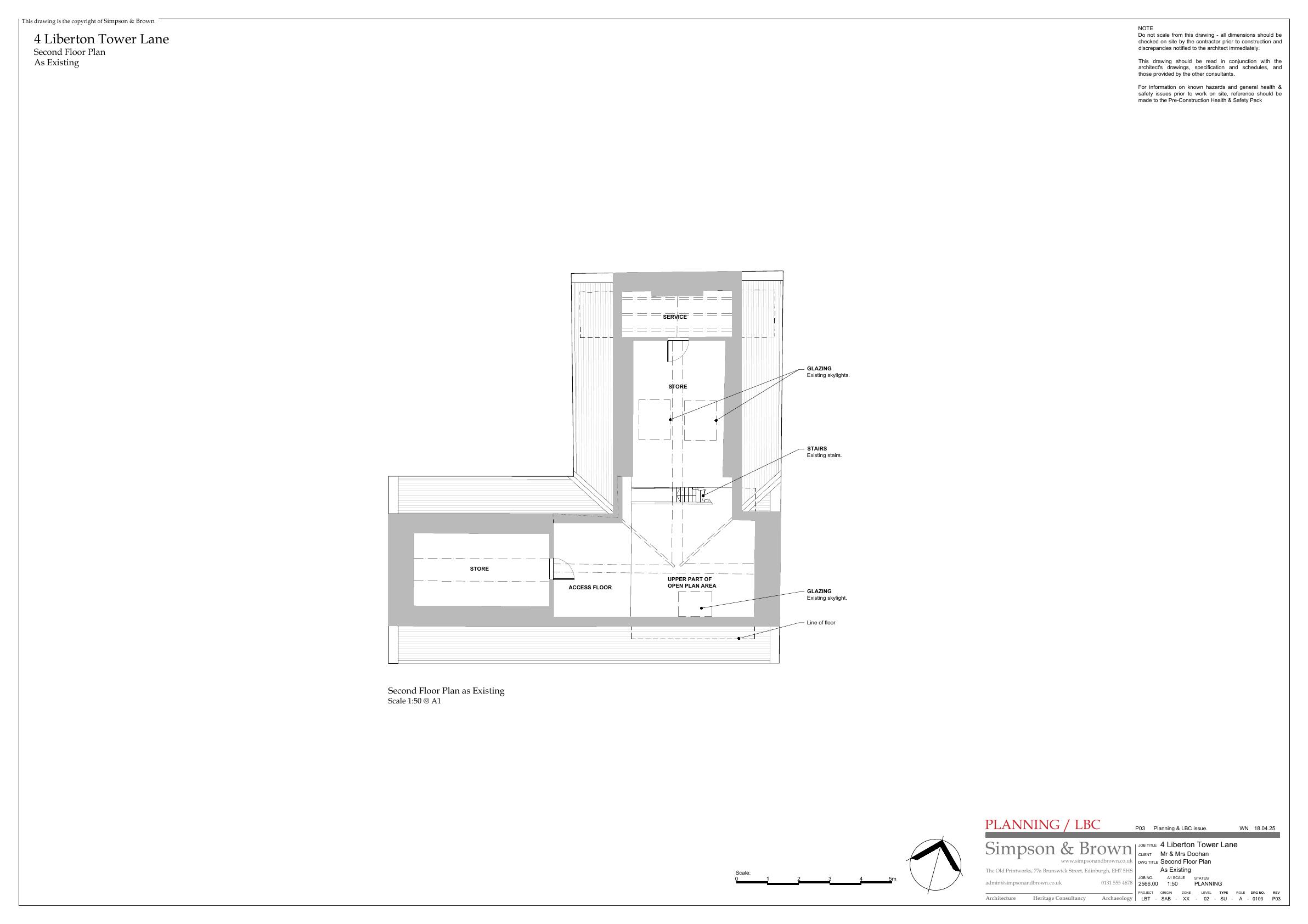
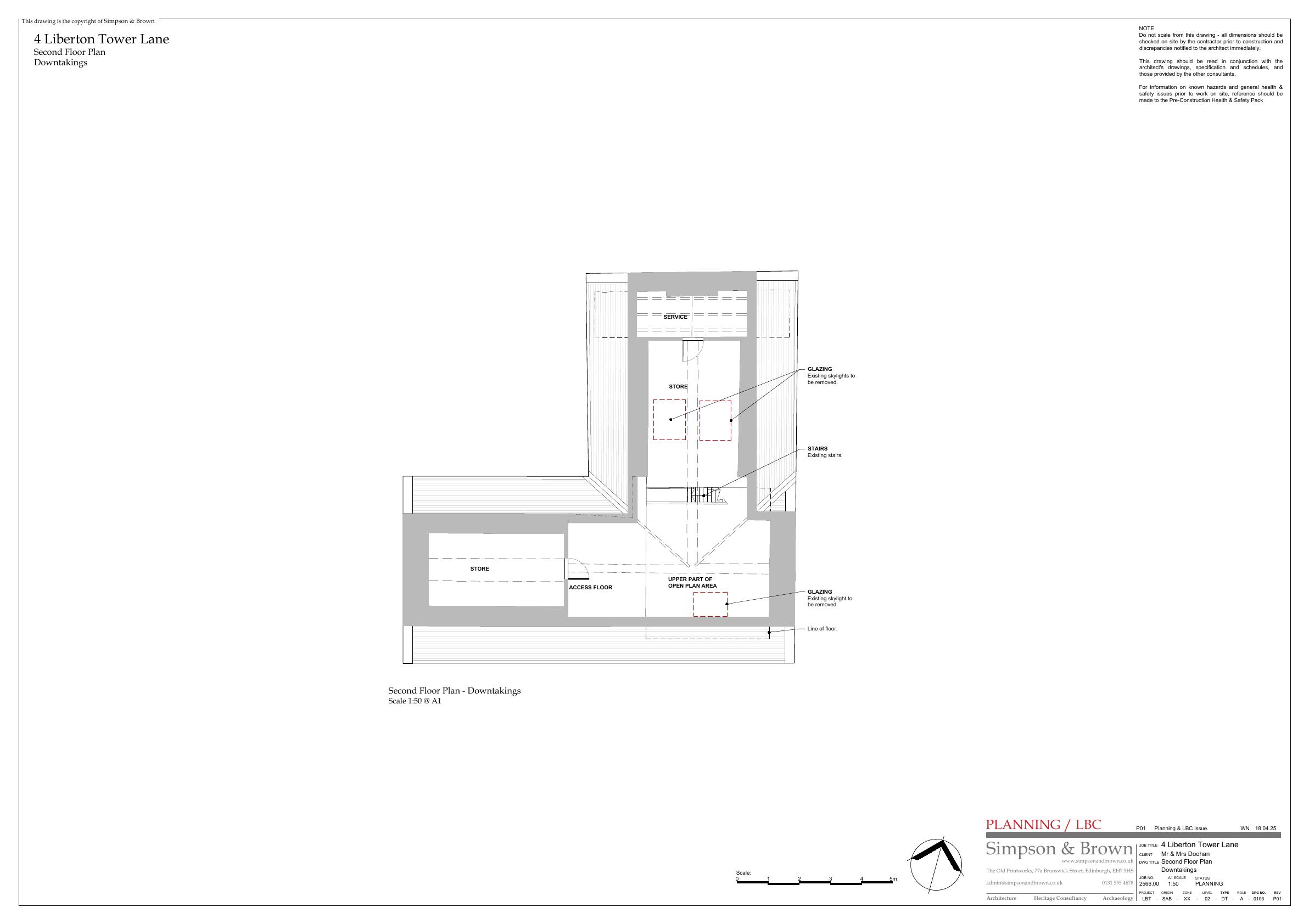
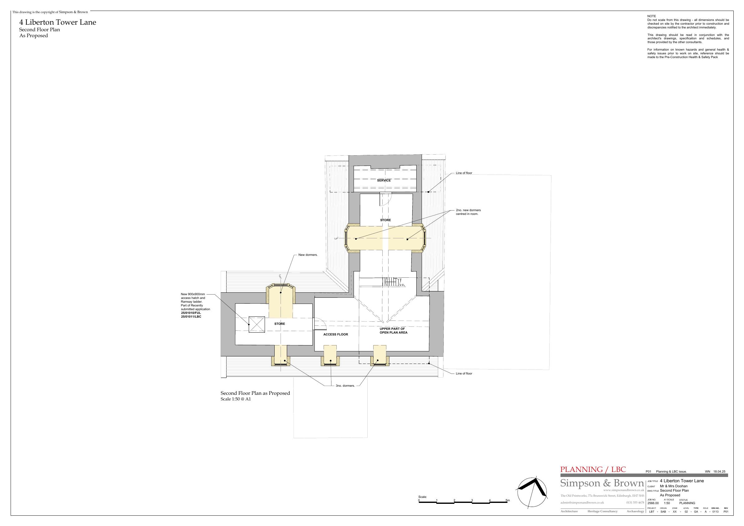
Five new slate-faced dormers on the main roof of 4 Liberton Tower Lane, enlarging loft rooms and daylight without altering footprint or ridge height. .

Status: Application GrantedCategory: Roof Works & DormersReceived: 23 April 2025

Core Details

Reference
25/02098/LBC
Address
4 Liberton Tower Lane Edinburgh EH16 6TQ
Status
Application Granted
Category
Roof Works & Dormers
Impact Scale
2/10

Timeline

Received
23 April 2025
Validated
23 April 2025
Last Scraped
2 October 2025
Record Created
29 April 2025

Application Summary

AI Summary

Five new slate-faced dormers on the main roof of 4 Liberton Tower Lane, enlarging loft rooms and daylight without altering footprint or ridge height. .

Original Description

Proposed new dormers.

Related Applications (3)

  • 25/02099/FULApplication Granted(23 April 2025)

    Add three copper-clad dormers to the roof of the detached house at 4 Liberton Tower Lane, boosting daylight and headroom without altering footprint.

  • 25/01010/FULApplication Granted(26 February 2025)

    Replaces conservatory with family-garden room, removes cement render, repairs and lime-repoints masonry, upgrades windows to heritage style and reshapes internal layout. .

  • 25/01011/LBCApplication Granted(26 February 2025)

    Replace conservatory with larger garden/family room, restore stonework using lime, remove cement render, upgrade windows to traditional style and refine internal layout. .

Supporting Documents (5)