Planning application

25/02107/FUL

1 House O'hill Road Corbiehill Edinburgh EH4 2AJ

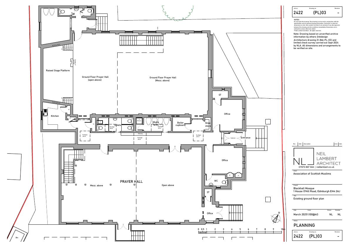
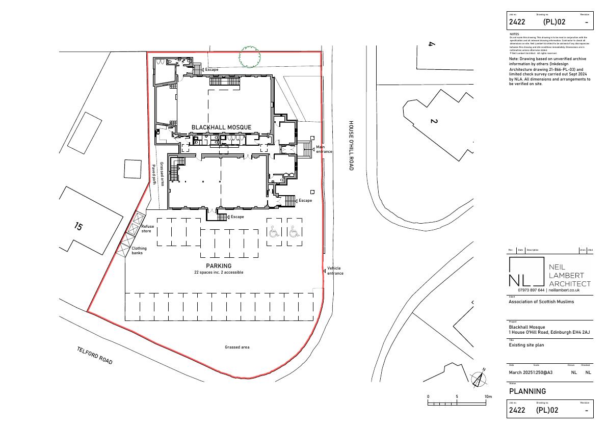
Blackhall Mosque will add a secondary west-side doorway with compact external platform and steps, improving access and fire egress. .

Status: Not Development-Permission Not RequiredCategory: Windows, Doors & GlazingReceived: 24 April 2025

Core Details

Reference
25/02107/FUL
Address
1 House O'hill Road Corbiehill Edinburgh EH4 2AJ
Status
Not Development-Permission Not Required
Category
Windows, Doors & Glazing
Impact Scale
2/10

Timeline

Received
Validated
Last Scraped
Record Created

Additional Application Data

Latitude
55.9612645
Longitude
-3.2575594

Application Summary

AI Summary

Blackhall Mosque will add a secondary west-side doorway with compact external platform and steps, improving access and fire egress. .

Original Description

Formation of new secondary access/egress doorway within existing recess to west elevation; construction of new external platt and steps to west elevation.

Supporting Documents (5)