Planning application

25/02111/FUL

150 St John's Road Edinburgh EH12 8AY

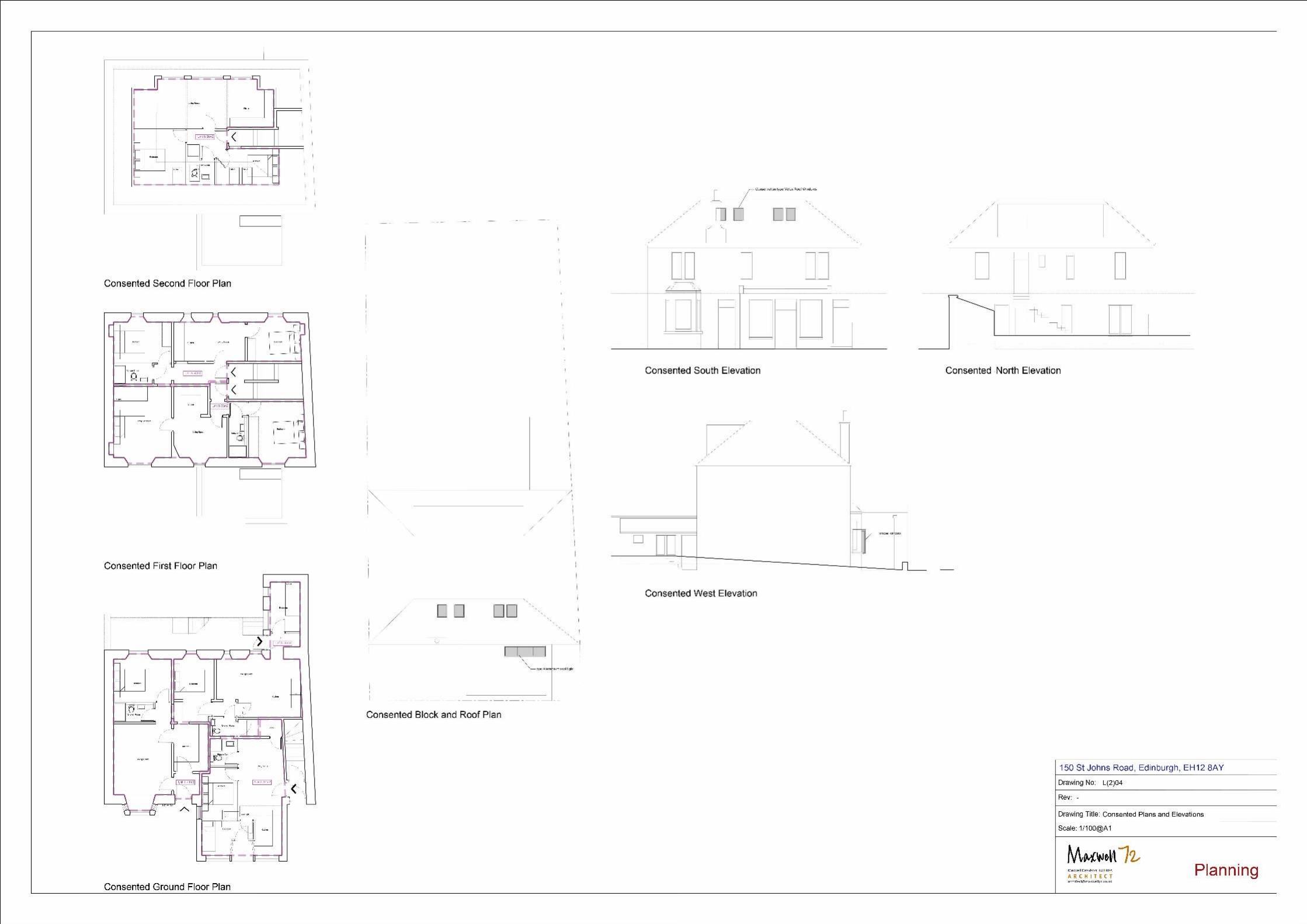
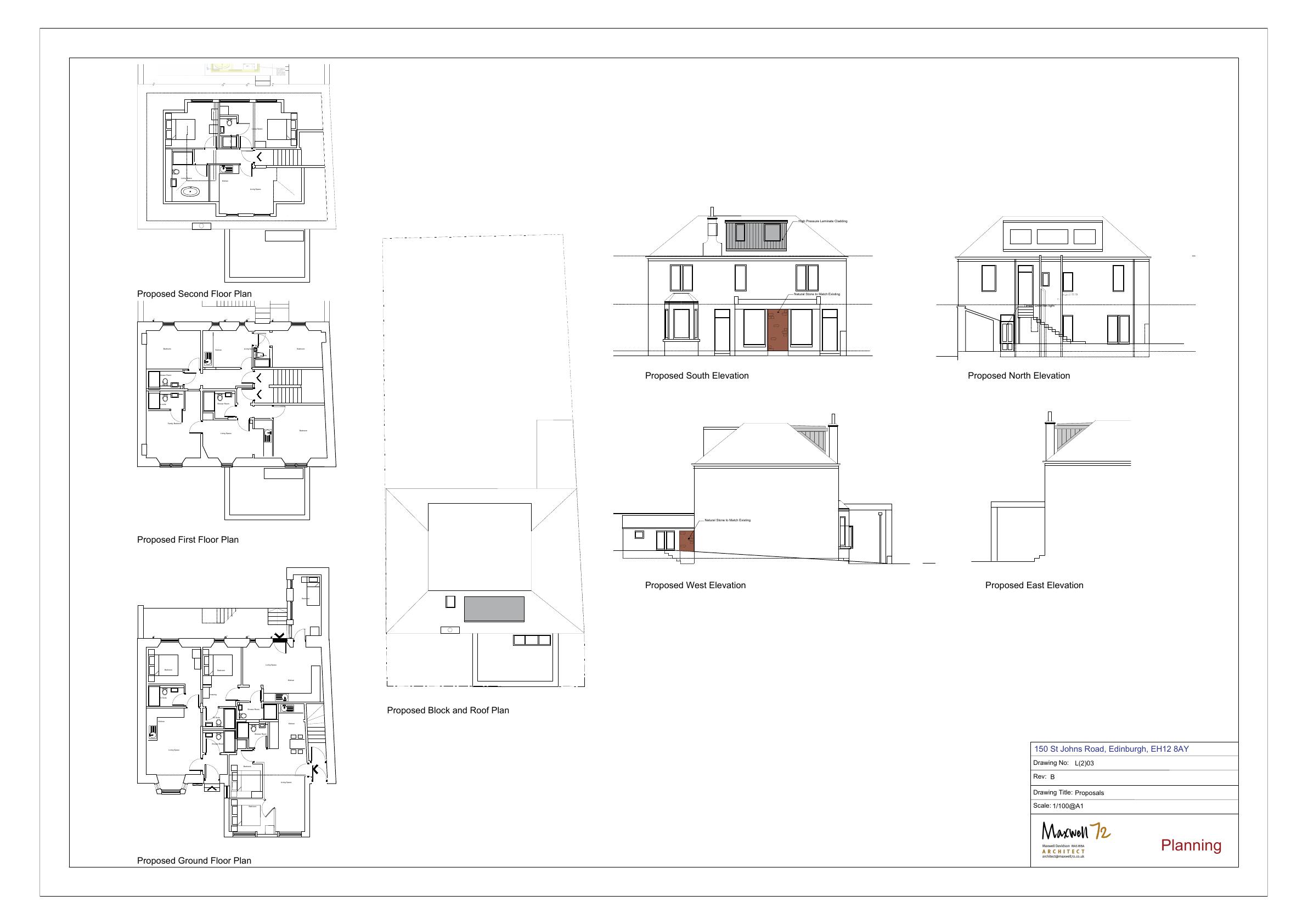
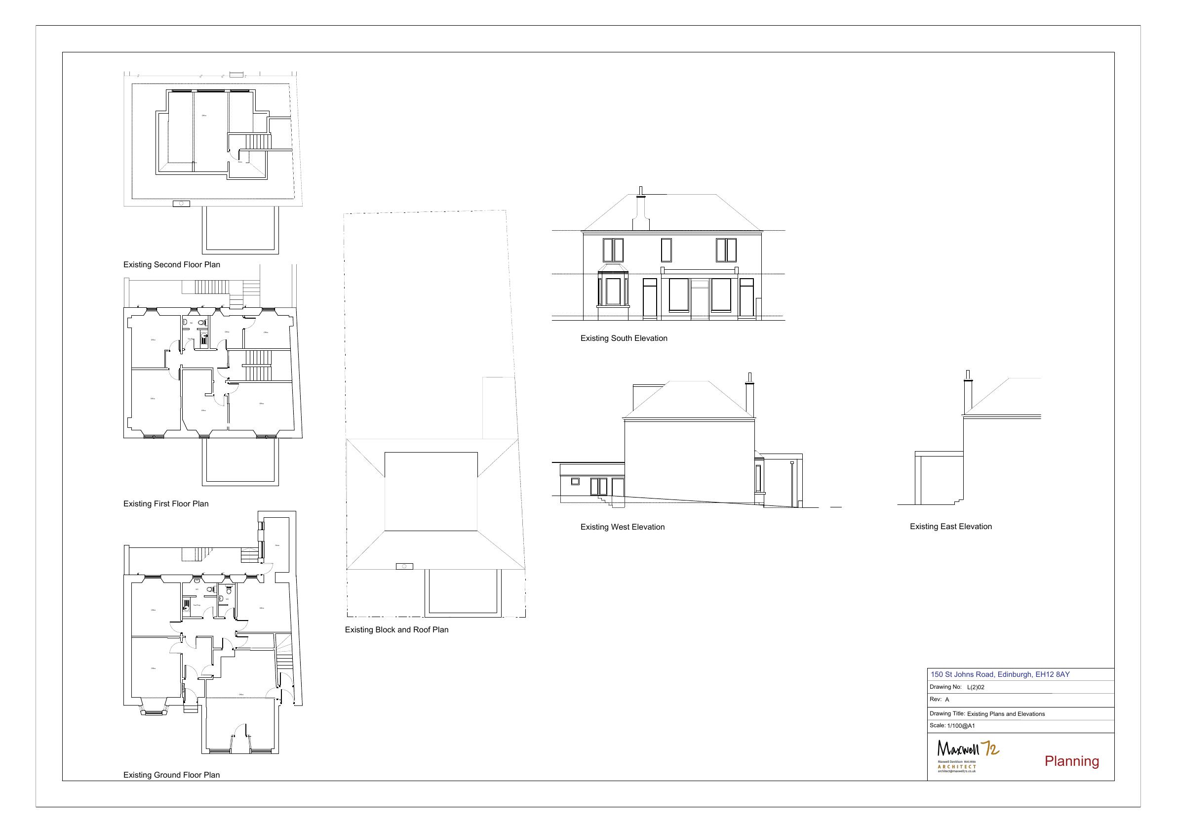
Add front roof dormer and brick-in redundant side/rear windows/doors to upgrade loft and ground-floor layout of single house on St Johns Rd; no footprint change, streetscape impact low. .

Status: Application GrantedCategory: Roof Works & DormersReceived: 24 April 2025

Core Details

Reference
25/02111/FUL
Address
150 St John's Road Edinburgh EH12 8AY
Status
Application Granted
Category
Roof Works & Dormers
Impact Scale
2/10

Timeline

Received
24 April 2025
Validated
28 April 2025
Last Scraped
2 October 2025
Record Created
4 May 2025

Application Summary

AI Summary

Add front roof dormer and brick-in redundant side/rear windows/doors to upgrade loft and ground-floor layout of single house on St Johns Rd; no footprint change, streetscape impact low. .

Original Description

New dormer and window / door infills. (AS AMENDED)

Related Applications (1)

  • 25/03819/FULApplication Refused(23 July 2025)

    Blocks redundant front doorway on south elevation, infilling with matching brickwork and inserting a new window. .

Supporting Documents (5)