Planning application

25/02141/FUL

27 Craigs Gardens Craigmount Edinburgh EH12 8HA

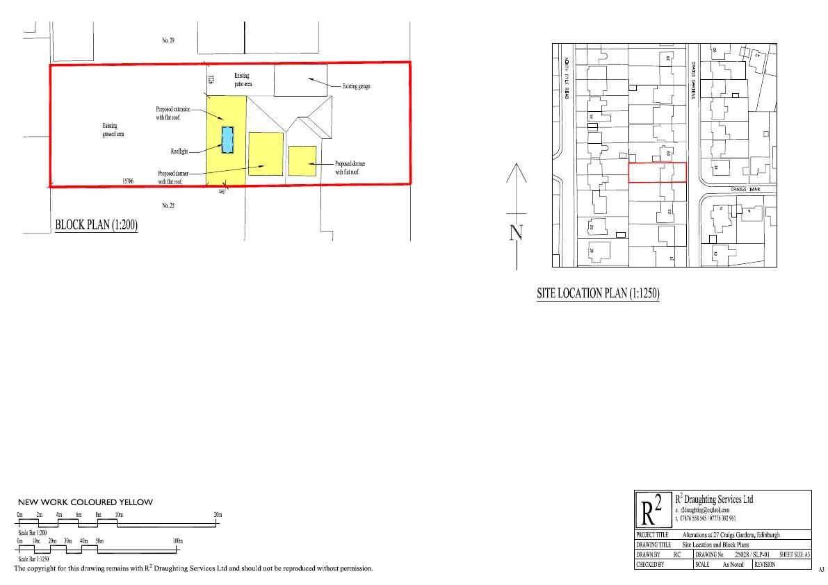
Bungalow to gain flat-roof rear extension for open-plan kitchen-diner and new front/rear dormers forming loft master suite; modest footprint increase, height only lifted at dormers. .

Status: Application GrantedCategory: Extensions & EnlargementsReceived: 25 April 2025

Core Details

Reference
25/02141/FUL
Address
27 Craigs Gardens Craigmount Edinburgh EH12 8HA
Status
Application Granted
Category
Extensions & Enlargements
Impact Scale
3/10

Timeline

Received
Validated
Last Scraped
Record Created

Additional Application Data

Latitude
55.9434331
Longitude
-3.3002173

Application Summary

AI Summary

Bungalow to gain flat-roof rear extension for open-plan kitchen-diner and new front/rear dormers forming loft master suite; modest footprint increase, height only lifted at dormers. .

Original Description

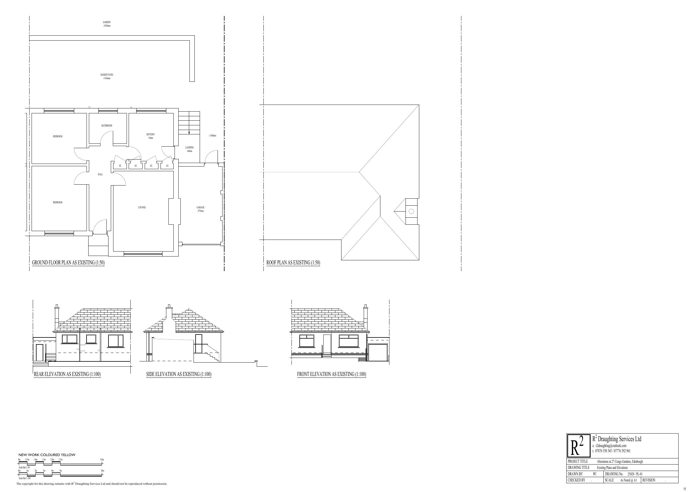
Attic conversion with dormers to front & rear elevations and single storey rear extension.

Supporting Documents (4)