Planning application

25/02143/LBC

3F1 3 Great King Street Edinburgh EH3 6QW

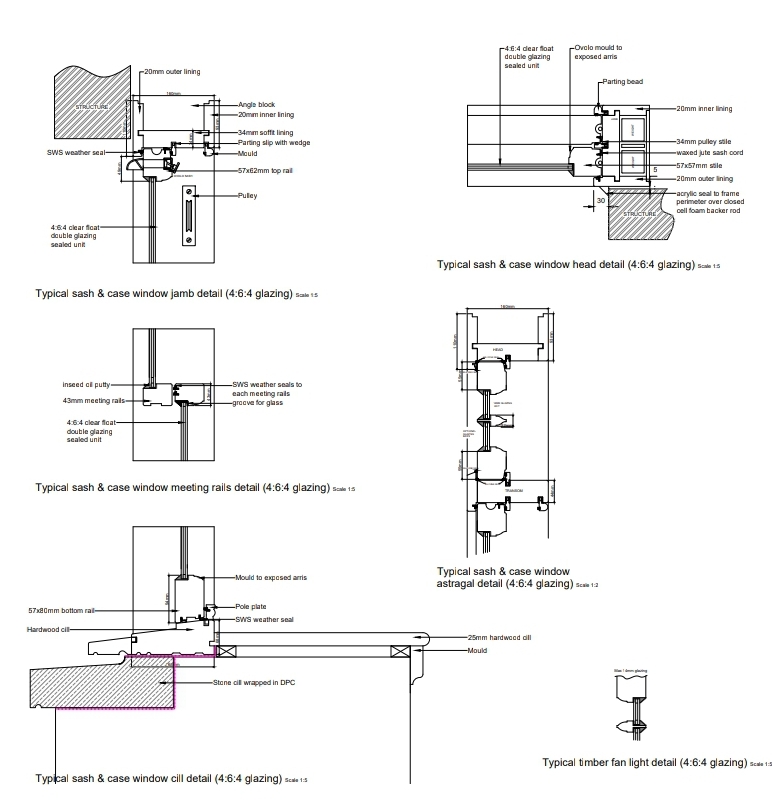
Ten timber sash-and-case windows at 3 Great King St will be replaced like-for-like, matching original profiles and glazing to halt rot while keeping the Georgian listed facade unchanged. .

Status: Application GrantedCategory: Windows, Doors & GlazingReceived: 25 April 2025

Core Details

Reference
25/02143/LBC
Address
3F1 3 Great King Street Edinburgh EH3 6QW
Status
Application Granted
Category
Windows, Doors & Glazing
Impact Scale
2/10

Timeline

Received
25 April 2025
Validated
25 April 2025
Last Scraped
2 October 2025
Record Created
1 May 2025

Application Summary

AI Summary

Ten timber sash-and-case windows at 3 Great King St will be replaced like-for-like, matching original profiles and glazing to halt rot while keeping the Georgian listed facade unchanged. .

Original Description

Alter a total of 10 No. existing window units, will be replaced due to deterioration. The existing windows are in a state with visible signs of rot and material failure. The new window units will replicate the original design, dimensions, and profiles, ensuring that the appearance and character of the building are preserved.

Related Applications (1)

  • 25/01126/LBCPermission Is Not Required(4 March 2025)

    Refurbish several sash windows with draught-proofing, new lead weights, sill repairs and selective glass replacement; no layout change. .

Supporting Documents (4)