Planning application

25/02156/FUL

33 Wardie Road Trinity Edinburgh EH5 3LJ

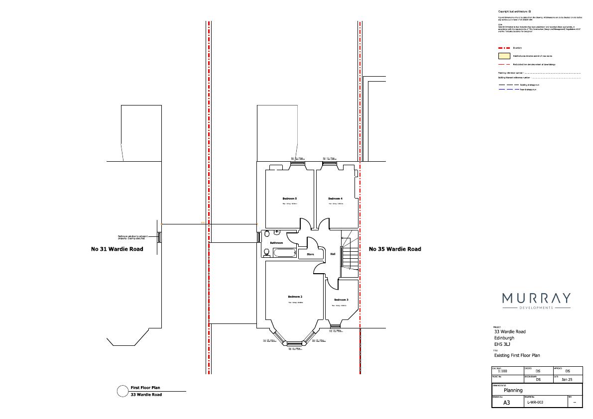
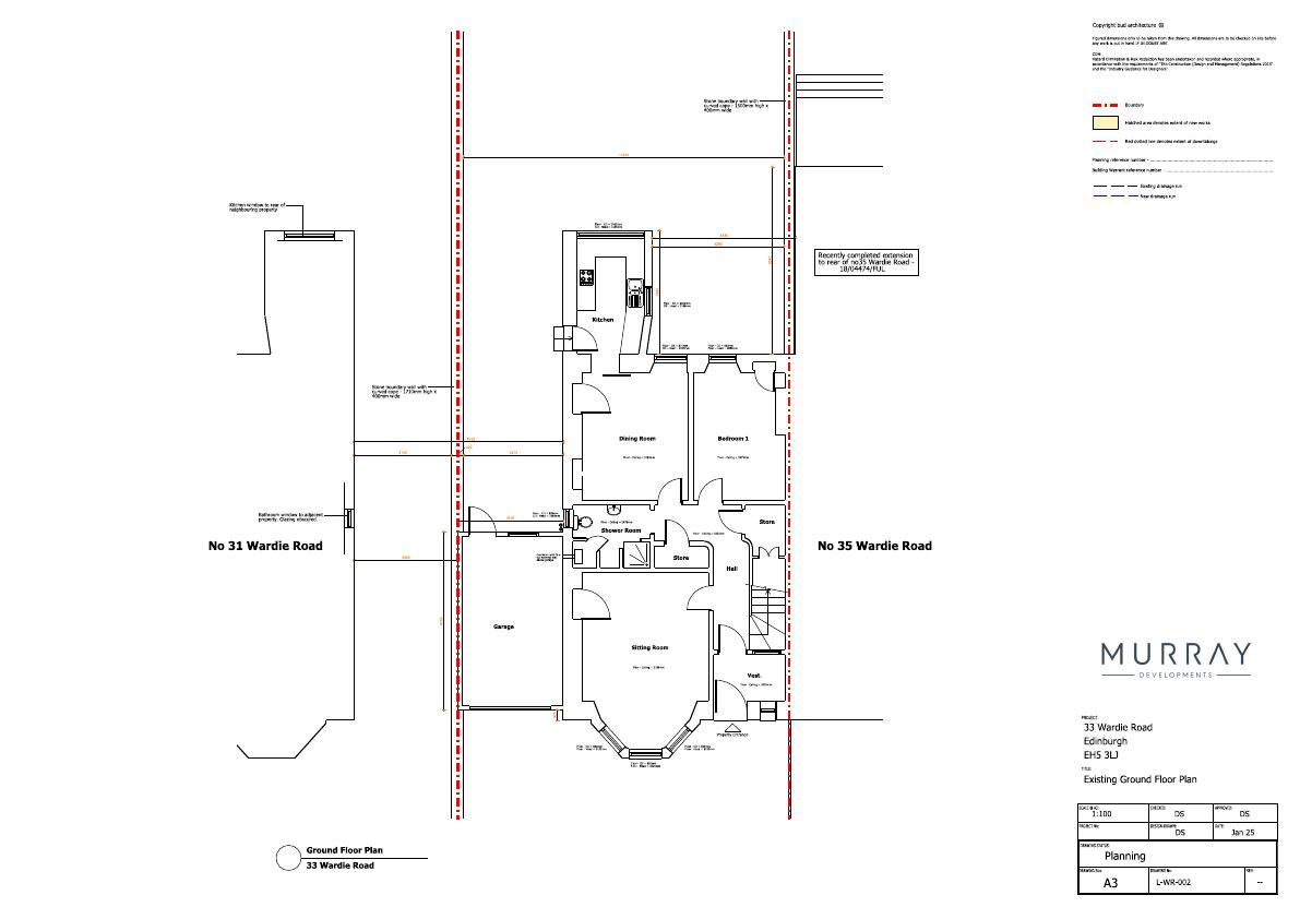
Two-storey side wing plus single-storey rear extension at 33 Wardie Rd, enlarging living areas and adding bedroom space without altering the street-facing roofline. .

Status: Application GrantedCategory: Extensions & EnlargementsReceived: 28 April 2025

Core Details

Reference
25/02156/FUL
Address
33 Wardie Road Trinity Edinburgh EH5 3LJ
Status
Application Granted
Category
Extensions & Enlargements
Impact Scale
4/10

Timeline

Received
Validated
Last Scraped
Record Created

Additional Application Data

Latitude
55.9736895
Longitude
-3.2125246

Application Summary

AI Summary

Two-storey side wing plus single-storey rear extension at 33 Wardie Rd, enlarging living areas and adding bedroom space without altering the street-facing roofline. .

Original Description

Introduction of two storey extension to side of property with further one storey extension to the rear.

Supporting Documents (5)