Planning application

25/02164/FUL

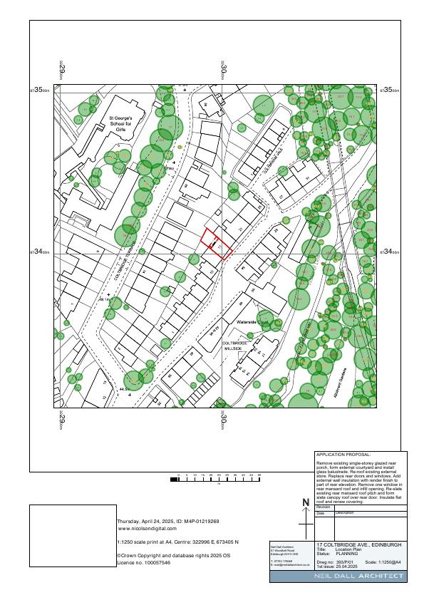
17 Coltbridge Avenue Edinburgh EH12 6AF

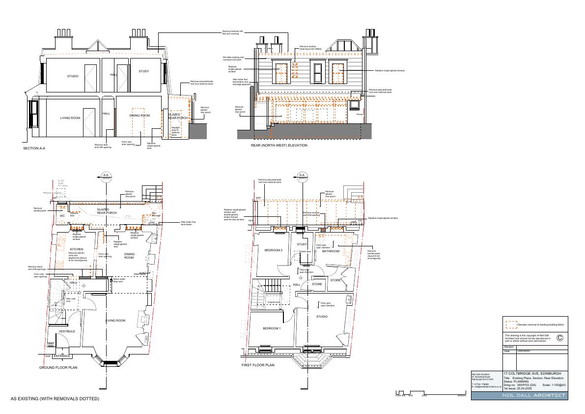
Victorian terraced home loses rear porch for an open courtyard with glass balustrade, plus insulated rendered rear wall, upgraded doors/windows and complete re-roof. .

Status: Application GrantedCategory: Roof Works & DormersReceived: 28 April 2025

Core Details

Reference
25/02164/FUL
Address
17 Coltbridge Avenue Edinburgh EH12 6AF
Status
Application Granted
Category
Roof Works & Dormers
Impact Scale
3/10

Timeline

Received
Validated
Last Scraped
Record Created

Additional Application Data

Latitude
55.9474186
Longitude
-3.2344807

Application Summary

AI Summary

Victorian terraced home loses rear porch for an open courtyard with glass balustrade, plus insulated rendered rear wall, upgraded doors/windows and complete re-roof. .

Original Description

Remove glazed rear porch, form external courtyard and install glass balustrade. Add external wall insulation with render finish to part of rear elevation. Replace rear doors and windows, and carry out re-roofing works.

Supporting Documents (5)