Planning application

25/02165/LBC

1F 11 Strathearn Place Edinburgh EH9 2AL

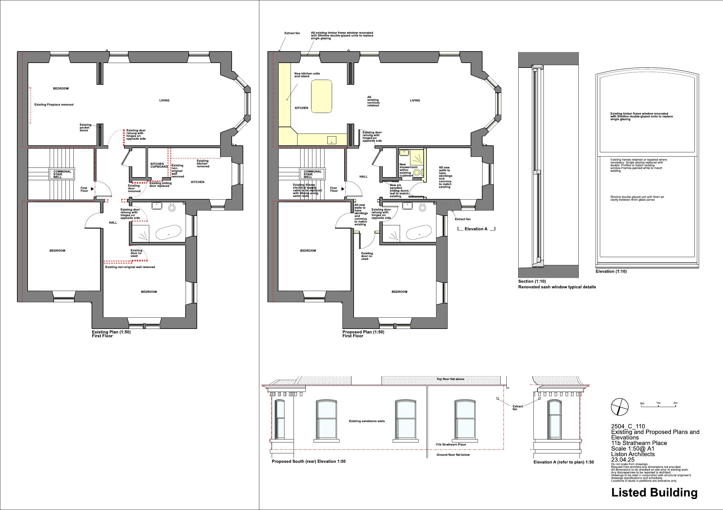
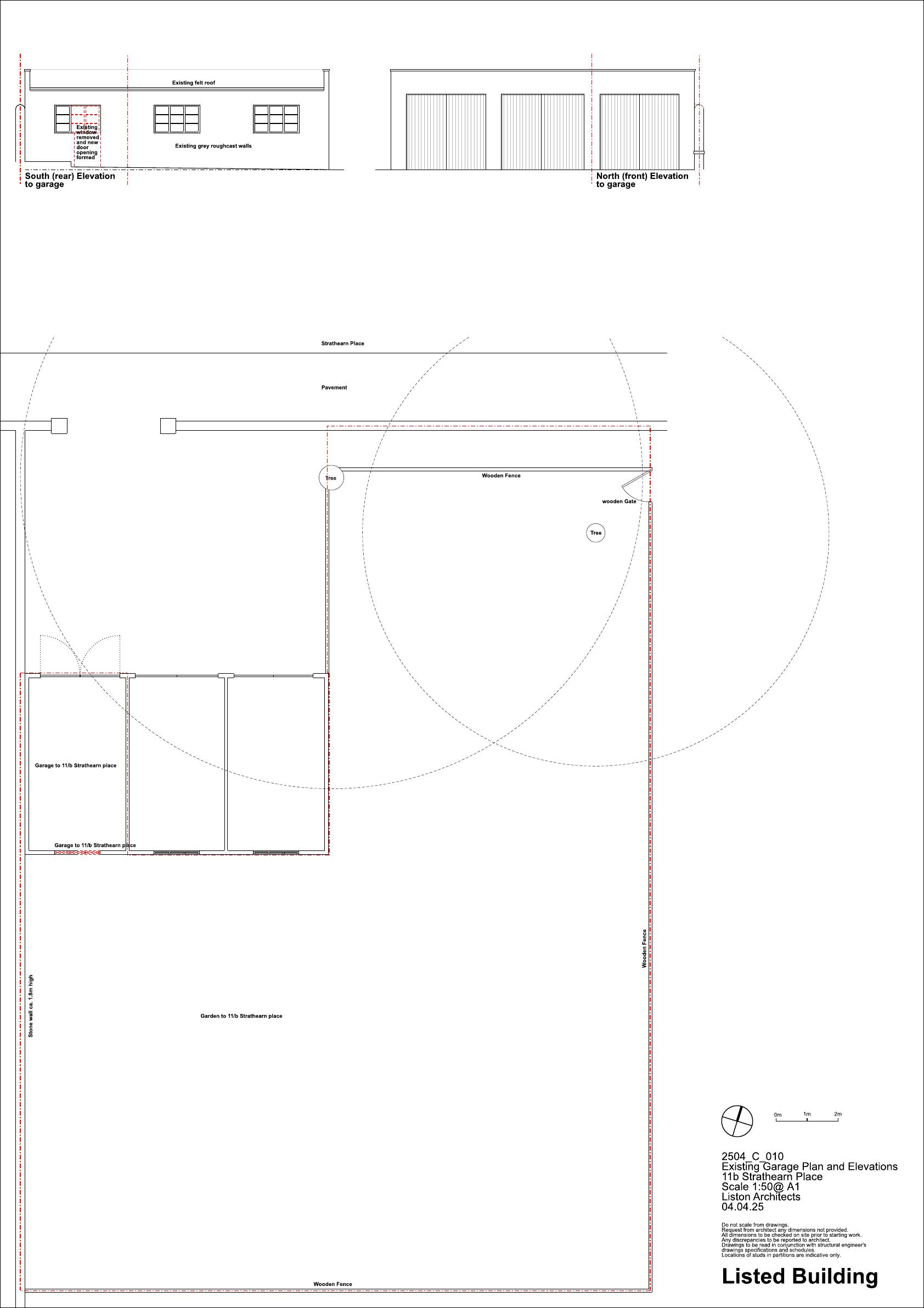
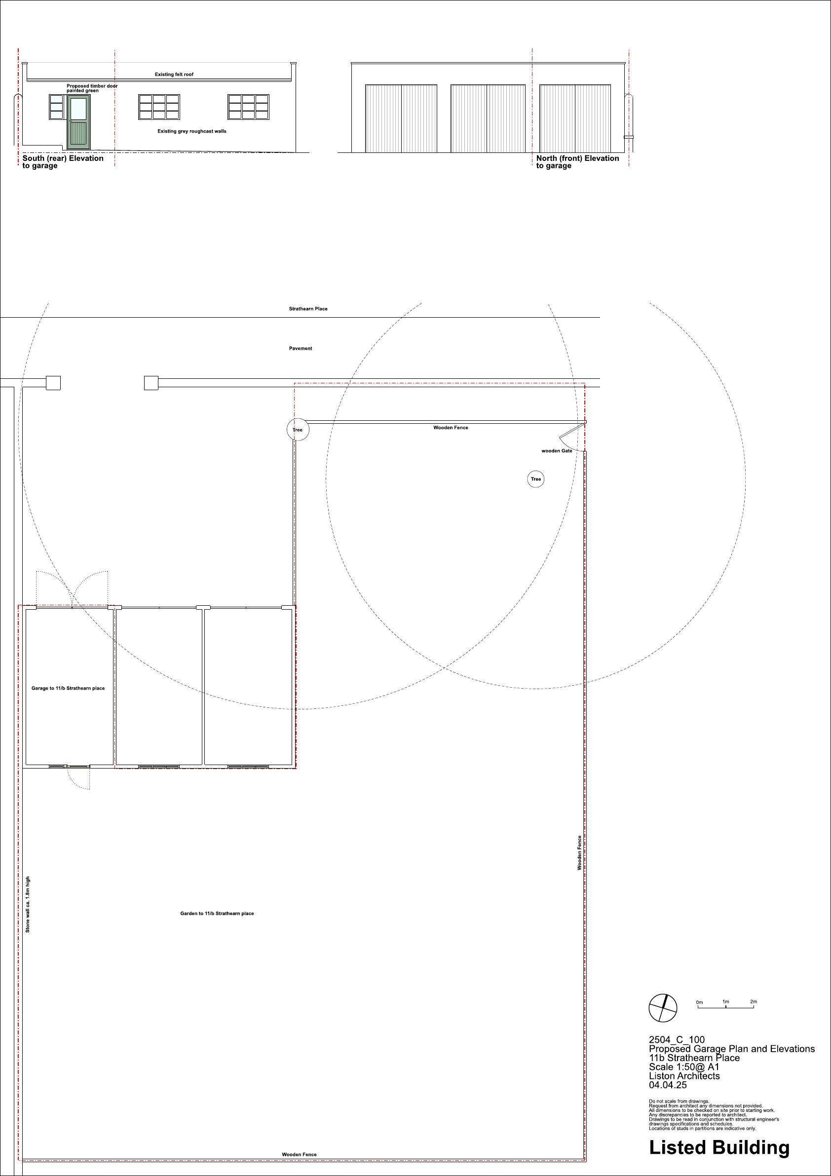
Listed flat gains restored sash windows, reworked internal layout and services; rear of three-bay garage fitted with one new access door, leaving footprint and street view unchanged. .

Status: Application GrantedCategory: Internal Works & AccessibilityReceived: 28 April 2025

Core Details

Reference
25/02165/LBC
Address
1F 11 Strathearn Place Edinburgh EH9 2AL
Status
Application Granted
Category
Internal Works & Accessibility
Impact Scale
2/10

Timeline

Received
Validated
Last Scraped
Record Created

Additional Application Data

Latitude
55.9333676
Longitude
-3.2021718

Application Summary

AI Summary

Listed flat gains restored sash windows, reworked internal layout and services; rear of three-bay garage fitted with one new access door, leaving footprint and street view unchanged. .

Original Description

Replace windows and internal alterations. New back door to garage.

Supporting Documents (5)