Planning application

25/02174/FUL

56 Gordon Road Corstorphine Edinburgh EH12 6LU

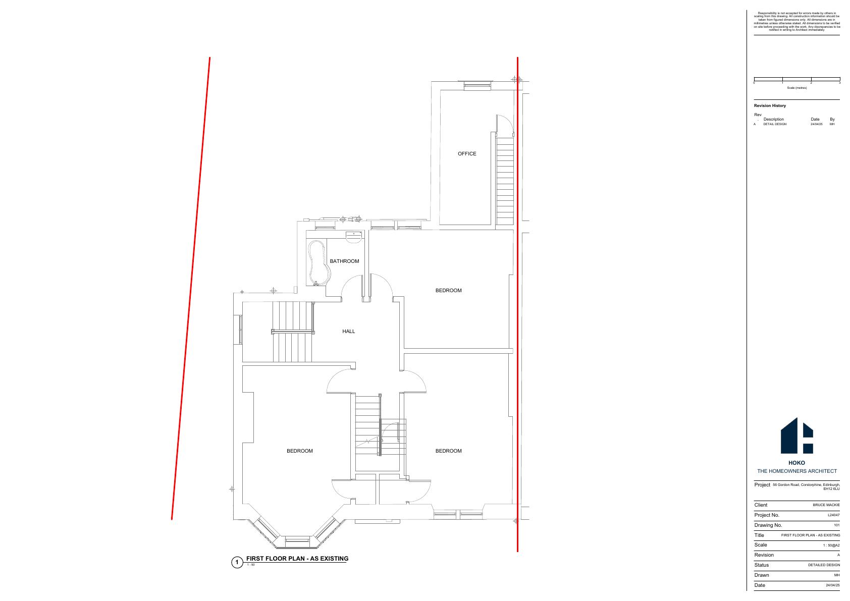
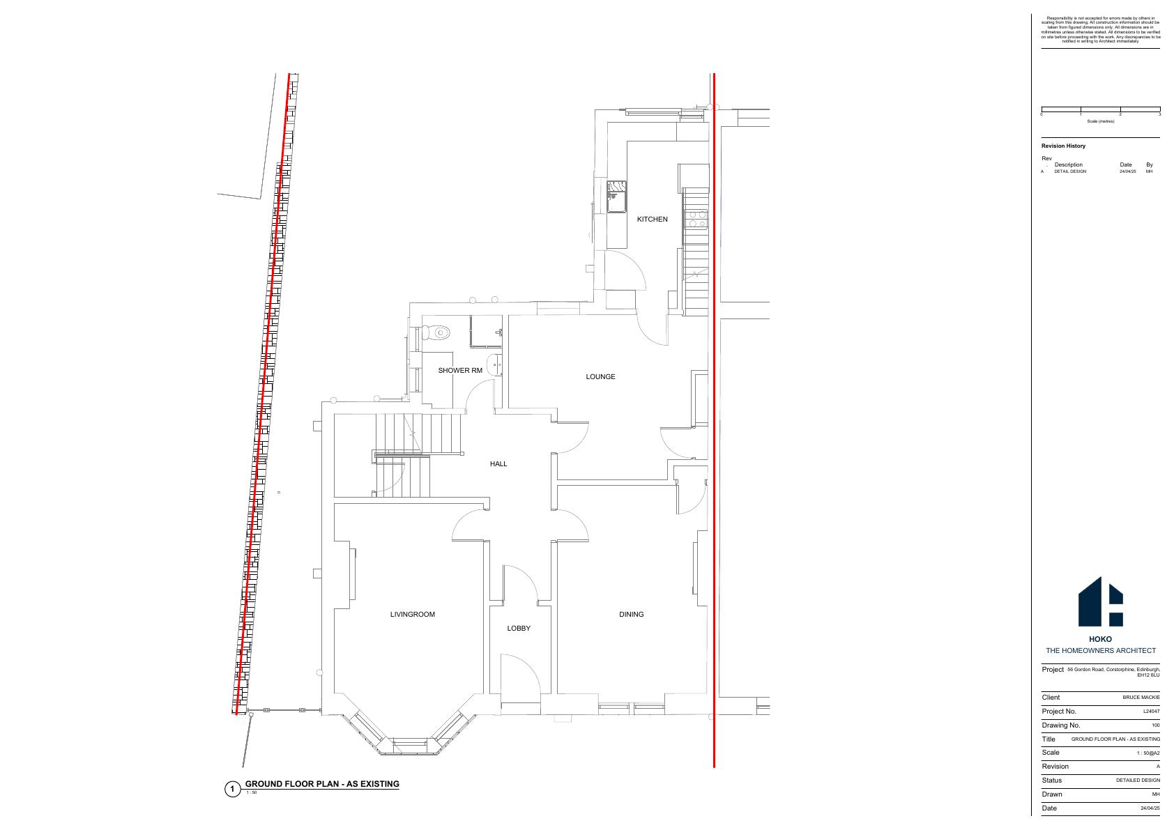
Single-storey rear add-on enlarges kitchen/living area within garden footprint, no roofline change or street impact. .

Status: Application GrantedCategory: Extensions & EnlargementsReceived: 29 April 2025

Core Details

Reference
25/02174/FUL
Address
56 Gordon Road Corstorphine Edinburgh EH12 6LU
Status
Application Granted
Category
Extensions & Enlargements
Impact Scale
2/10

Timeline

Received
Validated
Last Scraped
Record Created

Additional Application Data

Latitude
55.9431794
Longitude
-3.2738374

Application Summary

AI Summary

Single-storey rear add-on enlarges kitchen/living area within garden footprint, no roofline change or street impact. .

Original Description

Single storey rear extension.

Supporting Documents (5)