Planning application

25/02186/FUL

2 Brunstane Gardens Mews Joppa Edinburgh EH15 2QX

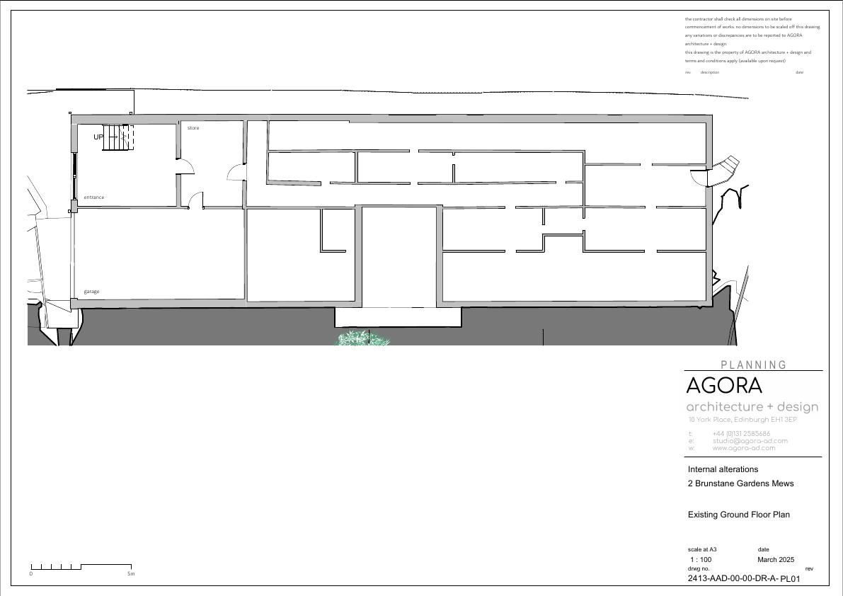
Reworks internal layout, turns the garage into living space and adds a new rear terrace; no change to building height or street frontage of the single-storey mews home. .

Status: Application GrantedCategory: Change of Use & ConversionsReceived: 29 April 2025

Core Details

Reference
25/02186/FUL
Address
2 Brunstane Gardens Mews Joppa Edinburgh EH15 2QX
Status
Application Granted
Category
Change of Use & Conversions
Impact Scale
3/10

Timeline

Received
Validated
Last Scraped
Record Created

Additional Application Data

Latitude
55.9466113
Longitude
-3.1017378

Application Summary

AI Summary

Reworks internal layout, turns the garage into living space and adds a new rear terrace; no change to building height or street frontage of the single-storey mews home. .

Original Description

Internal alterations to existing dwelling, new external rear terrace and conversion of existing garage.

Supporting Documents (5)