Planning application

25/02198/CLP

6 Ross Gardens Blackford Edinburgh EH9 3BS

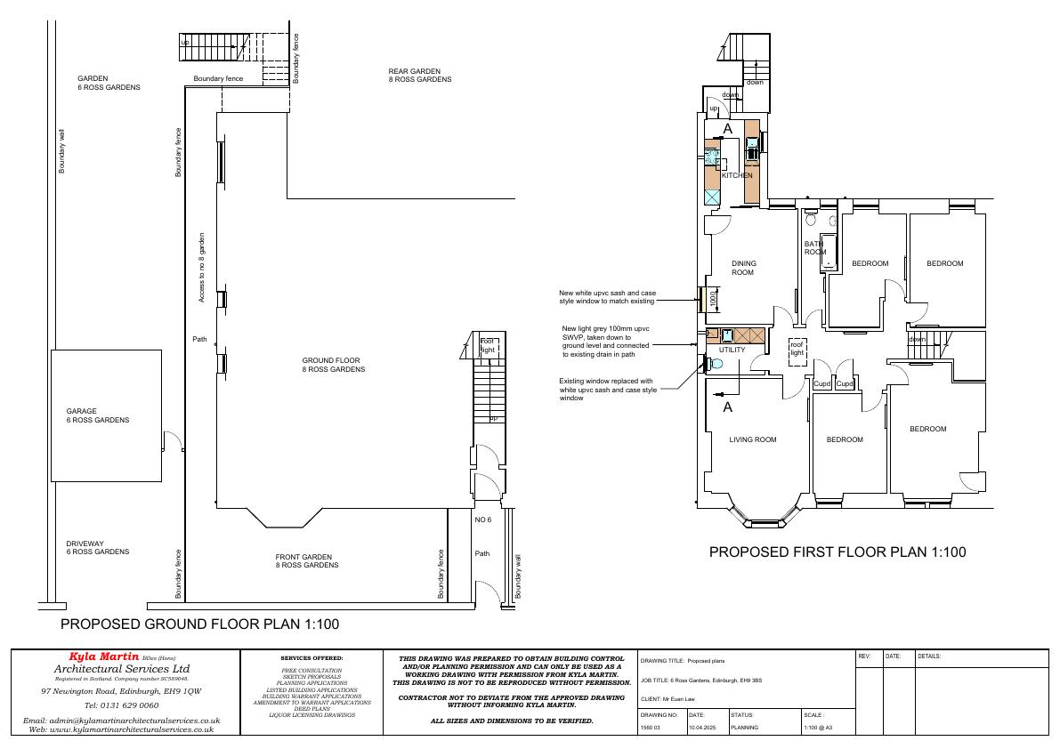
Side elevation to receive a single white uPVC sash-and-case window to brighten kitchen/utility; no footprint change or structural extension. .

Status: Application GrantedCategory: Windows, Doors & GlazingReceived: 29 April 2025

Core Details

Reference
25/02198/CLP
Address
6 Ross Gardens Blackford Edinburgh EH9 3BS
Status
Application Granted
Category
Windows, Doors & Glazing
Impact Scale
2/10

Timeline

Received
Validated
Last Scraped
Record Created

Additional Application Data

Latitude
55.9283178
Longitude
-3.1757981

Application Summary

AI Summary

Side elevation to receive a single white uPVC sash-and-case window to brighten kitchen/utility; no footprint change or structural extension. .

Original Description

Proposed side window.

Supporting Documents (5)